Бізнес
Продаж від забудовника
Без комісії
Підходить під вимоги єОселя
Відстань до найближчого міста: У місті
Поверховість: 3
Загальна площа: 135 м²
Кількість кімнат: 5
Площа ділянки: 1.20 соток
Тип будинку: Таунхаус
Кадастровий номер: 3210800000:01:047:0034
Рік побудови / здачі: Після 2015
Тип стін: Газоблок
Зовнішнє утеплення стін: Пінопласт
Тип покрівлі: Металочерепиця
Cанвузол: 2 і більше
Опалення: Індивідуальне газове
Ремонт: Після будівельників
Меблювання: Ні
Побутова техніка: Без побутової техніки
Мультимедіа: Кабельне, цифрове ТБ, Швидкісний інтернет
Комфорт: Автоматичні ворота, Огорожа
Комунікації: Асфальтована дорога, Центральна каналізація, Електрика, Вивіз відходів, Газ, Центральний водопровід
Інфраструктура (до 500 метрів): Відділення банку, банкомат, Кінотеатр, театр, Центр міста, Аптека, Лікарня, поліклініка, Дитячий садок, Парк, зелена зона, Дитячий майданчик, Відділення пошти, Ресторан, кафе, Школа, Магазин, кіоск, Супермаркет, ТРЦ, Зупинка транспорту
Ландшафт (до 1 км.): Ліс, Парк
Опис
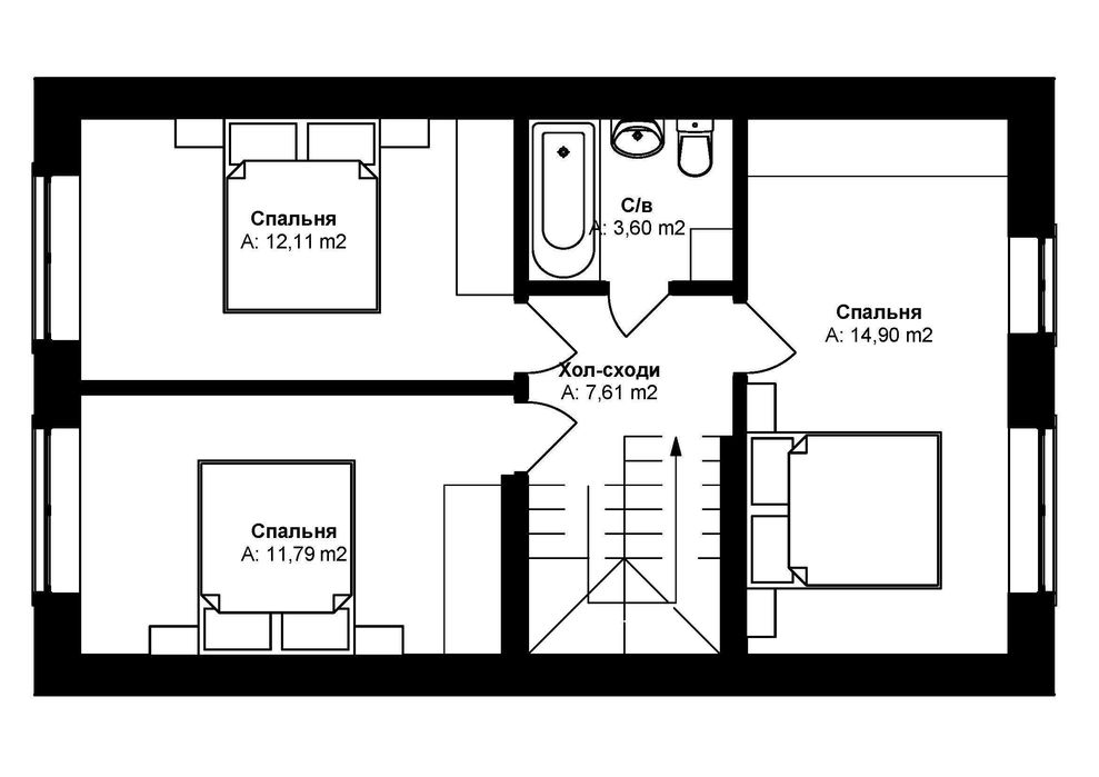
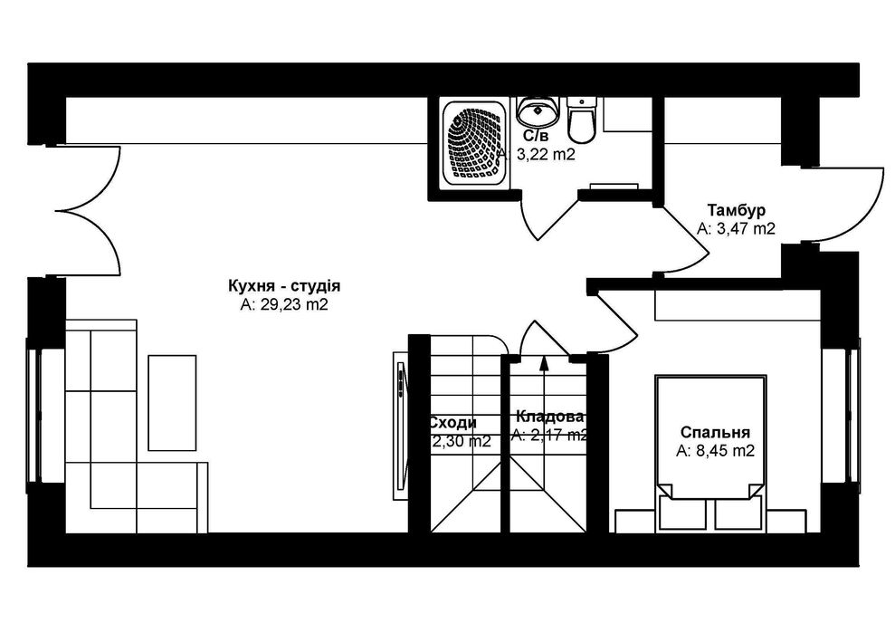
Параметри: 135/48/29кв.м.
Земельна ділянка - 1,2 сотки (внутрішня частина) + парковка окремо.
Планування: 1-й поверх: передпокій - 3,5м2, гостьова кімната / кабінет - 8,5м2, комора - 2м2, гостьовий санвузол - 3м2, кухня-студія – 29м2; 2-й поверх: хол - 7,5м2, санвузол - 3,5м2, спальня - 15м2, дві дитячих по 12м2; 3-й поверх: мансарда, вільне приміщення - 35м2. Сходи на 3-й поверх у вартість не входять.
У будинку центральні міські комунікації, індивідуальне газове опалення, електрика - 6,5квт.
Інфраструктура: будинок розташований в тихому, спокійному місці в оточенні зелених сосен і, в той же час, в пішій доступності від центра міста. Доступний виїзд на Варшавську трасу. Поруч з будинком: Новус, школа, садок, макдональдс, магазини, кафе. Для тих, хто користується громадським транспортом поруч проходить маршрутне таксі до Києва (№422 - Академмістечко і №421 - Героїв Дніпра).
Ціна за таунхаус з ділянкою 1,2 сотки - 80000$, оформлення від 2000$, умови по розстрочці індивідуально.
Додаткова інформація за телефоном.
З повагою, Сергій - центр продажів АН Квартал, працюємо для Вас з 9:00 до 20:00 без вихідних.
Зв’язатися з продавцем
xxx xxx xxx


