Бізнес
Поверховість: 3
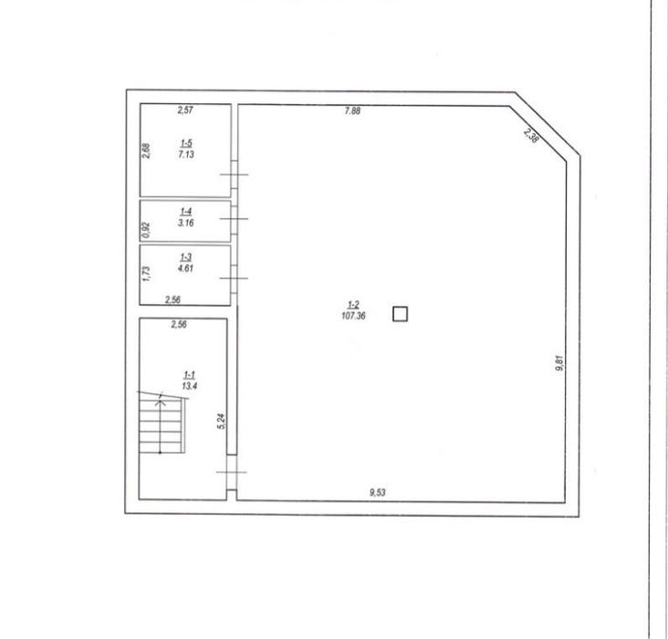
Загальна площа: 124 м²
Рік побудови / здачі: Після 2015
Опалення: Індивідуальне електро
Ремонт: Так
Комфорт: Відеоспостереження, Кондиціонер, Автономний електрогенератор
Меблювання: Так
Комунікації: Електрика
Інфраструктура (до 500 метрів): Відділення банку, банкомат, Автовокзал, Центр міста, Аптека, Ринок, Офіси, бізнес центр, Парк, зелена зона, Стоянка, парковка, гараж, Відділення пошти, Залізнична станція, Ресторан, кафе, бар, Супермаркет, ТРЦ, Транспортна розв'язка
Ландшафт (до 1 км.): Ліс, Парк
Опис
Здам приміщення 124м.кв. цокольний поверх
Центр міста , площа Михайлівська. Поруч всі основні вузли міста, торговий центр, магазини ,залізнична станція Боярка, кінцева всіх маршруток на Київ та передмістя . Нове приміщення
Центр міста , площа Михайлівська. Поруч всі основні вузли міста, торговий центр, магазини ,залізнична станція Боярка, кінцева всіх маршруток на Київ та передмістя . Нове приміщення
ID: 679656162
Зв’язатися з продавцем
xxx xxx xxx
Опубліковано 01 лютого 2026 р.
Оренда приміщення 124м.кв. ЦЕНТР!!!
450 грн.
Місцезнаходження
Боярка
Київська область
