Бізнес
Без комісії
Відстань до найближчого міста: У місті
Розташування: Частина будівлі
Тип об'єкта: Бізнес центр
Поверх: 3
Поверховість: 4
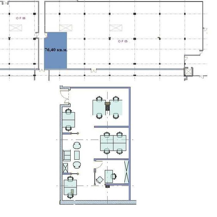
Загальна площа: 74.40 м²
Рік побудови / здачі: Після 2015
Cанвузол: Так
Тип офісу: Open space
Опалення: Тепловий насос
Клас офісу: Категорія A
Ремонт: Так
Комфорт: Відеоспостереження, Конс'ерж, Ліфт, Пожежна сигналізація, Підземний паркінг, Гостьовий паркінг, Панорамні вікна, Паркувальне місце, Охорона території, Сигналізація, Автономний електрогенератор
Меблювання: Ні
Комунікації: Асфальтована дорога, Електрика, Вивіз відходів, Газ, Центральний водопровід
Інфраструктура (до 500 метрів): Відділення банку, банкомат, Аптека, Шосе, траса, Житловий масив, Офіси, бізнес центр, Парк, зелена зона, Стоянка, парковка, гараж, Відділення пошти, Ресторан, кафе, бар, Навчальні заклади, Супермаркет, ТРЦ, Транспортна розв'язка
Ландшафт (до 1 км.): Парк
Опис
Загальна площа приміщення 76,4 м2 , клас - «А», планування Open Space, вхід з фасаду та з внутрішньої сторони ТРЦ через ресепшн по карткам контролю доступу, аварійні виходи на поверсі, індивідуальне опалення тепловим насосом, потужність світла 111 кВт, (збільшення по домовленості), централізоване кондиціювання та вентиляція, балкон, 2 генератори на офіси з загальною потужністю 900 кВт.
Прямий доступ в торгові зали ТРЦ та безкоштовний паркінг. Санвузли, кухня, ліфт та ресепшен на поверсі.
Оздоблювальні роботи – стеля відкрита в стилі Loft - 3,5 м., крок колон – 8 м х 8 м., фальш-підлога, вікна панорамні.
ТРК «Victoria Gardens» має власну інфраструктуру з магазинами, кінотеатром, аптекою, місцями відпочинку та розважальні комплекси, протипожежну сигналізацію, цілодобову охорону території, зручну транспортну розвʼязку, підземний паркінг на 3 поверхи та ліфти.
Інфраструктура поруч: Нова пошта, магазини техніки, ресторани, продуктовий маркет «Сільпо», кінотеатр «Multiplex», боулінг та більярд, магазини одягу - в комплексі, найближча заправка «ANP» - 260 м., найближча зупинка громадського транспорту - 200 м., парк Скнилівський - 700 м., парк ім. Івана Виговського - 710 м., озеро «Чорне» - 1 400 м., до оперного театру - 5,4 км.
Вартість оренди: 920$ або 12$ за м2. Без комісії для орендаря.
Дізнатись детальніше або домовитись про огляд можливо за телефоном:
+38************63 Віктор
Компанія Рентком, з любов'ю до Клієнтів
Зв’язатися з продавцем
xxx xxx xxx

