Бізнес
Поверх: 1
Поверховість: 10
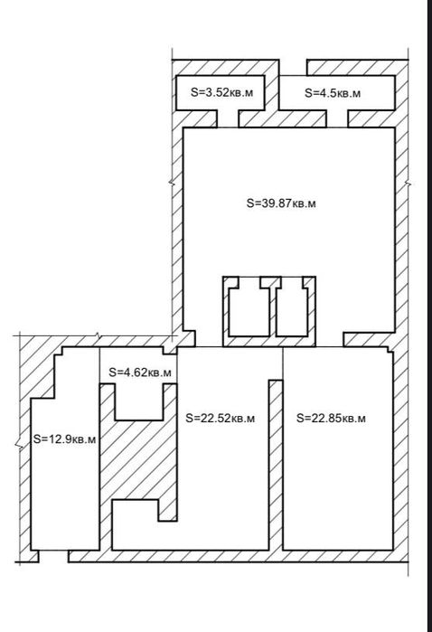
Загальна площа: 122 м²
Cанвузол: Так
Опалення: Індивідуальне газове
Ремонт: Так
Комфорт: Підігрів підлоги, Кондиціонер, Гостьовий паркінг
Інфраструктура (до 500 метрів): Стоянка, парковка, гараж, Навчальні заклади, Супермаркет, ТРЦ, Ресторан, кафе, бар, Аптека, Відділення банку, банкомат, Офіси, бізнес центр, Транспортна розв'язка, Відділення пошти
Опис
Оренда комерційного приміщення на Героїв Майдану 160. Гарне прохідне місце біля Чіабати та багато ін. магазинів
Площа 122 м2, приміщення цокольне, є вихід на вулицю і встановлення там генератору. Є санвузол.
10 кВт світла
Опалення тепла підлога та кондиціонер
Є система вентиляції з рекуперацією
Площа 122 м2, приміщення цокольне, є вихід на вулицю і встановлення там генератору. Є санвузол.
10 кВт світла
Опалення тепла підлога та кондиціонер
Є система вентиляції з рекуперацією
ID: 911560106
Зв’язатися з продавцем
xxx xxx xxx
Опубліковано 12 січня 2026 р.
Оренда комерційного приміщення на Героїв Майдану 160 (біля Чіабати)
800 $
Договірна
Місцезнаходження
Годилів
Чернівецька область