Бізнес
Без комісії
Відстань до найближчого міста: У місті
Розташування: Окрема будівля
Тип об'єкта: Адміністративна будівля
Поверх: 1
Поверховість: 4
Загальна площа: 1 123 м²
Рік побудови / здачі: 2011 - 2015
Cанвузол: Так
Опалення: Централізоване
Ремонт: Так
Опис
Окрема офісно-складська будівля (реконструкція 2015 року, свіжий ремонт).
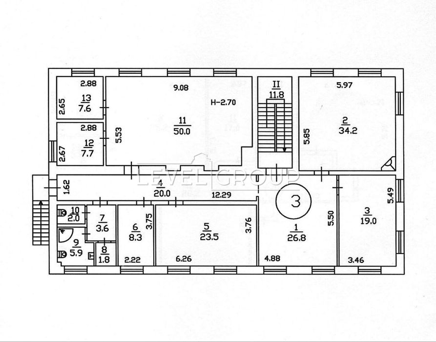
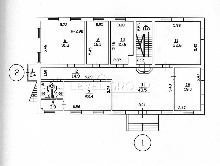
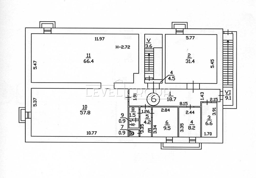
Поверховість: 4 поверхи + повноцінний підвал.
Ділянка: 21 сотка (велика рідкість для Києва в цьому бюджеті).
Ціна: $800 000 з торгом.
Логістика та склад (Унікальна перевага):
Будівля ідеально заточена під компанію з товарообігом.
У підвалі обладнано сухий склад.
Встановлено технологічний підйомний кран, що подає вантажі з вулиці прямо в склад. Це значно пришвидшує логістику та розвантаження.
Планування та автономність:
Кожен поверх спроєктовано як автономний юніт:
На кожному поверсі: свій кабінет керівника (директора), робочі зони та власна кухня.
Це дозволяє розділити департаменти або здавати поверхи в оренду різним орендарям без перетину потоків.
Територія (21 сотка):
Велика приватна ділянка закриває головний біль будь-якого бізнесу — паркування.
Місце для автопарку співробітників та клієнтів.
Можливість облаштування додаткової майстерні, гаражів або зони відпочинку.
Локація та інфраструктура:
Орієнтир: Куренівський парк.
Транспорт: 1-3 хвилини пішки до зупинок (трамвай, маршрутки), зручний доїзд до метро "Почайна" або "Тараса Шевченка".
Сервіси: АТБ, ресторани (Vanill), банки — все в радіусі 100 метрів.
Резюме аналітика:
Ціна $800 000 за об'єкт з такою землею та станом — це нижче ринкової вартості відтворення подібного об'єкта. Ви купуєте не просто метри, а землю та готову логістичну інфраструктуру.
Пиши/дзвони, організую перегляд. Об'єкт реальний.
Поверховість: 4 поверхи + повноцінний підвал.
Ділянка: 21 сотка (велика рідкість для Києва в цьому бюджеті).
Ціна: $800 000 з торгом.
Логістика та склад (Унікальна перевага):
Будівля ідеально заточена під компанію з товарообігом.
У підвалі обладнано сухий склад.
Встановлено технологічний підйомний кран, що подає вантажі з вулиці прямо в склад. Це значно пришвидшує логістику та розвантаження.
Планування та автономність:
Кожен поверх спроєктовано як автономний юніт:
На кожному поверсі: свій кабінет керівника (директора), робочі зони та власна кухня.
Це дозволяє розділити департаменти або здавати поверхи в оренду різним орендарям без перетину потоків.
Територія (21 сотка):
Велика приватна ділянка закриває головний біль будь-якого бізнесу — паркування.
Місце для автопарку співробітників та клієнтів.
Можливість облаштування додаткової майстерні, гаражів або зони відпочинку.
Локація та інфраструктура:
Орієнтир: Куренівський парк.
Транспорт: 1-3 хвилини пішки до зупинок (трамвай, маршрутки), зручний доїзд до метро "Почайна" або "Тараса Шевченка".
Сервіси: АТБ, ресторани (Vanill), банки — все в радіусі 100 метрів.
Резюме аналітика:
Ціна $800 000 за об'єкт з такою землею та станом — це нижче ринкової вартості відтворення подібного об'єкта. Ви купуєте не просто метри, а землю та готову логістичну інфраструктуру.
Пиши/дзвони, організую перегляд. Об'єкт реальний.
ID: 900859891
Зв’язатися з продавцем
xxx xxx xxx


