Бізнес
Без комісії
Готовий співпрацювати з ріелторами
Країна: Іспанія
Тип об'єкта: Квартира, апартаменти
Продаж або оренда: Продаж
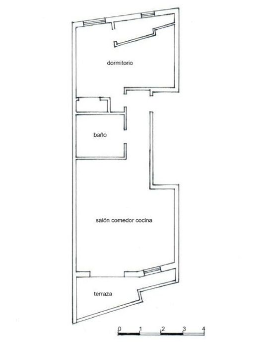
Загальна площа: 51 м²
Кількість кімнат: 2
Ремонт: Так
Побутова техніка: Пральна машина, Електрочайник, Холодильник, Варильна панель, Духова шафа, Плита
Комунікації: Асфальтована дорога, Центральна каналізація, Електрика, Вивіз відходів, Центральний водопровід
Інфраструктура (до 500 метрів): Відділення банку, банкомат, Центр міста, Аптека, Ринок, Парк, зелена зона, Парковка, Дитячий майданчик, Ресторан, кафе, бар, Пам'ятки, визначні місця, Супермаркет, магазин, Зупинка транспорту
Ландшафт (до 1 км.): Пляж, Місто, Острови, Парк, Море
Опис
Місцезнаходження: Кан-Пікафорт, Майорка, Іспанія!
Затишна квартира з 1 спальнею та 1 ванною кімнатою, ідеально підходить як другий будинок або інвестиція.
Відремонтована в 2018 році, нерухомість пропонує абсолютно нову електроенергію та воду, а також сучасну кухню.
Дуже світла квартира завдяки новим алюмінієвим вікнам з подвійним склінням; разом з кондиціонером (холодний / теплий) забезпечує приємну атмосферу цілий рік. Балкон, що виходить на захід, дозволяє насолоджуватися заходом сонця ввечері.
Розташування ідеальне, оскільки воно знаходиться поруч з усіма послугами та широким спектром місць відпочинку та ресторанів.
Цей пентхаус на другій лінії моря - це унікальна можливість насолодитися одним з найкращих пляжів на півночі Майорки.
Не пропустіть можливість зробити це місце своїм новим домом!
Житлова площа 51 кв.м
1 спальня
1 ванна кімната
Житлова та обідня зона
Балкон
Кондиціонер
За детальною інформацію звертайтеся!
Затишна квартира з 1 спальнею та 1 ванною кімнатою, ідеально підходить як другий будинок або інвестиція.
Відремонтована в 2018 році, нерухомість пропонує абсолютно нову електроенергію та воду, а також сучасну кухню.
Дуже світла квартира завдяки новим алюмінієвим вікнам з подвійним склінням; разом з кондиціонером (холодний / теплий) забезпечує приємну атмосферу цілий рік. Балкон, що виходить на захід, дозволяє насолоджуватися заходом сонця ввечері.
Розташування ідеальне, оскільки воно знаходиться поруч з усіма послугами та широким спектром місць відпочинку та ресторанів.
Цей пентхаус на другій лінії моря - це унікальна можливість насолодитися одним з найкращих пляжів на півночі Майорки.
Не пропустіть можливість зробити це місце своїм новим домом!
Житлова площа 51 кв.м
1 спальня
1 ванна кімната
Житлова та обідня зона
Балкон
Кондиціонер
За детальною інформацію звертайтеся!
ID: 911858394
Зв’язатися з продавцем
xxx xxx xxx
Опубліковано 15 січня 2026 р.
о. Майорка! Іспанія! Затишна квартира біля моря!
255 000 €
Місцезнаходження
Львів, Личаківський
Львівська область