Бізнес
Без комісії
Відстань до найближчого міста: до 20 км.
Поверховість: 2
Загальна площа: 186 м²
Кількість кімнат: 3
Площа ділянки: 10 соток
Тип будинку: Будинок
Тип стін: Цегляний
Зовнішнє утеплення стін: Мінеральна вата
Cанвузол: 2 і більше
Опалення: Індивідуальне газове
Ремонт: Під чистову обробку
Комфорт: Тераса, Охорона території
Комунікації: Газ, Каналізація септик, Асфальтована дорога, Центральний водопровід, Вивіз відходів, Свердловина
Інфраструктура (до 500 метрів): Парк, зелена зона, Зупинка транспорту, Дитячий садок, Ресторан, кафе, Відділення пошти, Дитячий майданчик
Ландшафт (до 1 км.): Пагорби, Річка, Ліс, Водосховище, Парк, Озеро
Опис
Будинок в сучасному стилі, розташований в сосновому лісі, на каналі Дніпра, з прекрасним видом на воду та сосни, чистим повітрям, чудовою природою і розвиненою інфраструктурою. Прямий вихід до каналу Дніпра та власний спуск на променад. Можливість облаштувати персональний причал для човнів.
Фундамент: утеплена залізобетонна плита.
Стіни: монолітно-каркасна конструкція, заповнення - червона цегла.
Утеплення: мінеральна вата.
Фасад: вентильований - керамограніт, деревина, декоративне освітлення.
Вікна - панорамні Reynaers(Бельгія)
У вартість входить облаштування та озеленення фасадної половини ділянки, полив газонів, облаштовані сходи для спуску на набережну Дніпра.
Коммунікації: вода - свердловина; опалення - газ; электрика- 25кВт; каналізація - індивідуальна.
Планування:
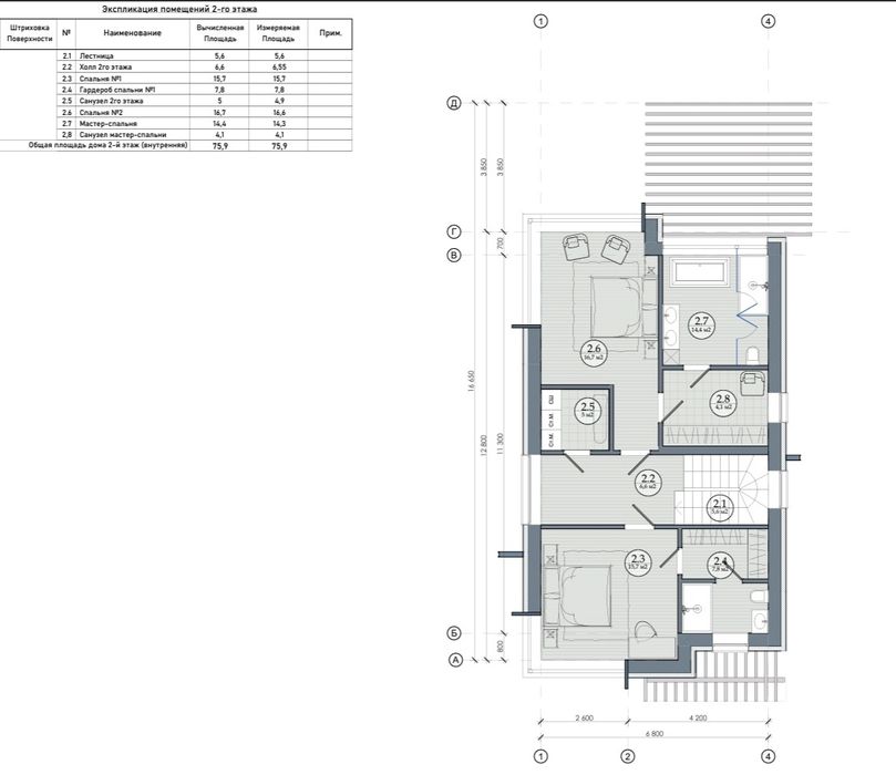
- Перший поверх: панорамна кухня-вітальня з виходом на терассу та воду, гостьова кімната, топкова-кладова, гостьова вбиральня.
- Другий поверх: дві свтлі просторі спальні, кожна з яких має власний гардероб та просторі вбиральні, вид на ліс та воду; кімната для прання.
Серце району — громадський простір Riviera Plaza c піщаними пляжами, басейнами, причалом. Котеджне містечко має 4 концептуальних райони: Lounge( сучасні брусові будинки і в стилі hi-tech
Інфраструктура
пляжі, басейни, набережна, причал, Клубний дім), Forest (сучасні будинки — hi-tech і шале
Інфраструктура
футбольне поле, волейбольний майданчик), Wellnes (сучасні будинки в стилі hi-tech
Інфраструктура
пляжі, басейни, набережна, причал, Клубний дім) і Villas(канал Дніпра, сосновий ліс, озеро з фонтанами
Архітектура
класичні, сучасні, брусові будинки
Інфраструктура
пляжі, ресторан з терасою біля води, літній клуб з 2 басейнами, школа-садок Clever Kids, тенісні корти, волейбольні майданчики).
Унікальне розташування містечка відкриває можливості для водних видів спорту — від вейксерфінгу до яхтингу.
На території також розташовані два волейбольних поля та два повноформатних тенісних корти, які легко трансформуються в поле для міні-футболу або баскетболу.
Дитячий садок з початковою школою Clever Kids навчає дітей, використовуючи ключові аспекти кращих світових практик в сфері раннього розвитку.
Riviera Club — це простір для найкращого літнього відпочинку. Територія клубу включає 2 відкриті басейни з підігрівом, літній бар, затишний лаундж, ігрові та спортивні зони для дітей і дорослих, обладнаний пляж і причал для водних видів транспорту.
Система охорони функціонує за принципом «Захищати і бути непомітними». Весь периметр Riviera забезпечений мобільною системою камер. Виняток — приватні володіння.
Власник, без комісії.
Фундамент: утеплена залізобетонна плита.
Стіни: монолітно-каркасна конструкція, заповнення - червона цегла.
Утеплення: мінеральна вата.
Фасад: вентильований - керамограніт, деревина, декоративне освітлення.
Вікна - панорамні Reynaers(Бельгія)
У вартість входить облаштування та озеленення фасадної половини ділянки, полив газонів, облаштовані сходи для спуску на набережну Дніпра.
Коммунікації: вода - свердловина; опалення - газ; электрика- 25кВт; каналізація - індивідуальна.
Планування:
- Перший поверх: панорамна кухня-вітальня з виходом на терассу та воду, гостьова кімната, топкова-кладова, гостьова вбиральня.
- Другий поверх: дві свтлі просторі спальні, кожна з яких має власний гардероб та просторі вбиральні, вид на ліс та воду; кімната для прання.
Серце району — громадський простір Riviera Plaza c піщаними пляжами, басейнами, причалом. Котеджне містечко має 4 концептуальних райони: Lounge( сучасні брусові будинки і в стилі hi-tech
Інфраструктура
пляжі, басейни, набережна, причал, Клубний дім), Forest (сучасні будинки — hi-tech і шале
Інфраструктура
футбольне поле, волейбольний майданчик), Wellnes (сучасні будинки в стилі hi-tech
Інфраструктура
пляжі, басейни, набережна, причал, Клубний дім) і Villas(канал Дніпра, сосновий ліс, озеро з фонтанами
Архітектура
класичні, сучасні, брусові будинки
Інфраструктура
пляжі, ресторан з терасою біля води, літній клуб з 2 басейнами, школа-садок Clever Kids, тенісні корти, волейбольні майданчики).
Унікальне розташування містечка відкриває можливості для водних видів спорту — від вейксерфінгу до яхтингу.
На території також розташовані два волейбольних поля та два повноформатних тенісних корти, які легко трансформуються в поле для міні-футболу або баскетболу.
Дитячий садок з початковою школою Clever Kids навчає дітей, використовуючи ключові аспекти кращих світових практик в сфері раннього розвитку.
Riviera Club — це простір для найкращого літнього відпочинку. Територія клубу включає 2 відкриті басейни з підігрівом, літній бар, затишний лаундж, ігрові та спортивні зони для дітей і дорослих, обладнаний пляж і причал для водних видів транспорту.
Система охорони функціонує за принципом «Захищати і бути непомітними». Весь периметр Riviera забезпечений мобільною системою камер. Виняток — приватні володіння.
Власник, без комісії.
ID: 801286562
Зв’язатися з продавцем
xxx xxx xxx
Опубліковано 18 січня 2026 р.
Новий будинок в Riviera Village з виходом на воду
499 000 $
Договірна
Місцезнаходження
Лебедівка
Київська область