Бізнес
Вид об'єкта: Новобудова
Без комісії
Готовий співпрацювати з ріелторами
Назва ЖК: The9
Поверх: 1
Поверховість: 3
Загальна площа: 57.70 м²
Тип угоди: Від забудовника
Площа кухні: 25 м²
Тип стін: Цегляний
Клас житла: Бізнес
Кількість кімнат: 1 кімната
Опалення: Індивідуальне газове
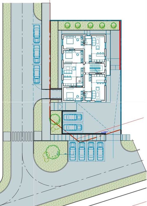
Комфорт: Гостьовий паркінг, Паркувальне місце
Комунікації: Центральна каналізація, Електрика, Газ, Центральний водопровід
Інфраструктура (до 500 метрів): Парк, зелена зона
Ландшафт (до 1 км.): Парк
Опис
Продається простора 1-кімнатна квартира в бутиковому житловому будинку The9 — у сучасному кварталі Винників, вул. Загадкова, 9 кв . 1 (район вул. Винна Гора)
Будонок зданий, є вже право власності на квартиру.
Комірка 2,6 м2 в подарунок!
Можливий продаж по перерахунку, єОселя, єВідновлення.
Характеристика квартири
Площа: 57.7 м²
Поверх: перший
Планування: спальня + простора кухня-вітальня, ванна кімната
Висота стель: 2.8м
Опалення: індивідуальне, двоконтурний котел
Квартира може бути розділена на 2х кімнатну
ЖК The 9 — бутиковий житловий будинок формату Boutique Condo на 9 квартир. Закрита територія з відеонаглядом, стримана сучасна архітектура, великі панорамні вікна та передбачені паркомісця для мешканців.
Також можливо придбати гараж-бокс або паркомісце з зарядкою для електромобіля.
Інфраструктура
Комплекс розташований у районі новобудов Винників з розвиненою інфраструктурою:
• 5–10 хв пішки: магазини, кав’ярні, ринок, школа, садок
• 8 хв пішки — зупинка громадського транспорту
• 10 хв на авто — багатофункціональний курорт Emily Resort
• 25 хв до площі Ринок у Львові
• Поруч парк, ліс, скелі та місця для відпочинку
Додатково
Доступна послуга інтер’єр-дизайну та ремонт «під ключ»
RE/MAX Community - Відділ продажу від забудовника – без комісії.
В наявності є ще квартири в цьому будинку, дивіться мої оголошення.
Будонок зданий, є вже право власності на квартиру.
Комірка 2,6 м2 в подарунок!
Можливий продаж по перерахунку, єОселя, єВідновлення.
Характеристика квартири
Площа: 57.7 м²
Поверх: перший
Планування: спальня + простора кухня-вітальня, ванна кімната
Висота стель: 2.8м
Опалення: індивідуальне, двоконтурний котел
Квартира може бути розділена на 2х кімнатну
ЖК The 9 — бутиковий житловий будинок формату Boutique Condo на 9 квартир. Закрита територія з відеонаглядом, стримана сучасна архітектура, великі панорамні вікна та передбачені паркомісця для мешканців.
Також можливо придбати гараж-бокс або паркомісце з зарядкою для електромобіля.
Інфраструктура
Комплекс розташований у районі новобудов Винників з розвиненою інфраструктурою:
• 5–10 хв пішки: магазини, кав’ярні, ринок, школа, садок
• 8 хв пішки — зупинка громадського транспорту
• 10 хв на авто — багатофункціональний курорт Emily Resort
• 25 хв до площі Ринок у Львові
• Поруч парк, ліс, скелі та місця для відпочинку
Додатково
Доступна послуга інтер’єр-дизайну та ремонт «під ключ»
RE/MAX Community - Відділ продажу від забудовника – без комісії.
В наявності є ще квартири в цьому будинку, дивіться мої оголошення.
ID: 895704577
Зв’язатися з продавцем
xxx xxx xxx