Бізнес
Вид об'єкта: Новобудова
Назва ЖК: Жк на Трускавецькій
Поверх: 8
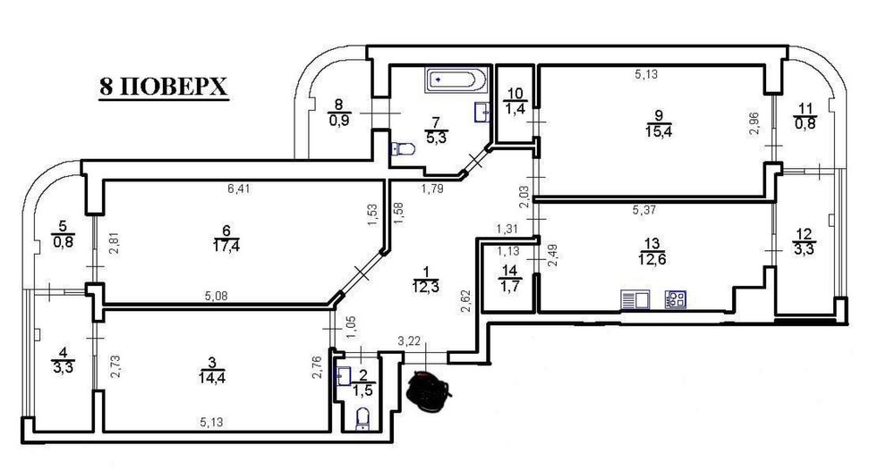
Поверховість: 14
Загальна площа: 91 м²
Площа кухні: 12.60 м²
Клас житла: Комфорт
Кількість кімнат: 3 кімнати
Планування: Роздільна
Cанвузол: Роздільний
Ремонт: Після будівельників
Меблювання: Ні
Комунікації: Газ, Вивіз відходів, Центральна каналізація, Електрика
Інфраструктура (до 500 метрів): Ринок, Школа, Парк, зелена зона, Дитячий садок, Відділення банку, банкомат, Супермаркет, ТРЦ, Аптека, Відділення пошти, Ресторан, кафе, Дитячий майданчик, Лікарня, поліклініка, Магазин, кіоск, Кінотеатр, театр
Опис
Краща ціна! Продаж 3 кімнати 91 м2 вул.Трускавецька ЗДАНИЙ БУДИНОК
Продається три кімнатна квартира ЖК на Трускавецькій
Поверх 8 / 14 (сонячна сторона), квартира світла та тепла.
Площа квартири 91 м2, дуже хороше планування: з 3 ізольованими кімнатами, 2 санвузла, 3 балкона, 2 засленні лоджії, комірка.
Велике наповнення від забудовника: чорнова стяжка та штукатурка стін, двухфункційний котел + радіатори опалення, броньовані двері, також заведені всі комунікації в квартиру.
Забудовник Галжитлобуд
Будинок Д ( будинок вже зданий, можна оформляти право власності та робити ремонт)
Продаж по переуступці (переуступку оплачує продавець)
Вартість: 95000 дол.
Телефонуйте: 06*********51 Тарас
Продається три кімнатна квартира ЖК на Трускавецькій
Поверх 8 / 14 (сонячна сторона), квартира світла та тепла.
Площа квартири 91 м2, дуже хороше планування: з 3 ізольованими кімнатами, 2 санвузла, 3 балкона, 2 засленні лоджії, комірка.
Велике наповнення від забудовника: чорнова стяжка та штукатурка стін, двухфункційний котел + радіатори опалення, броньовані двері, також заведені всі комунікації в квартиру.
Забудовник Галжитлобуд
Будинок Д ( будинок вже зданий, можна оформляти право власності та робити ремонт)
Продаж по переуступці (переуступку оплачує продавець)
Вартість: 95000 дол.
Телефонуйте: 06*********51 Тарас
ID: 895635452
Зв’язатися з продавцем
xxx xxx xxx

