Приватна особа
Продаж від забудовника
Без комісії
Готовий співпрацювати з ріелторами
Відстань до найближчого міста: до 5 км.
Поверховість: 2
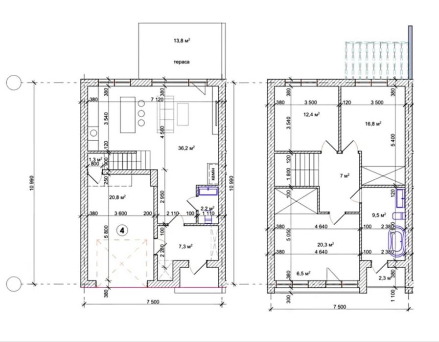
Загальна площа: 130 м²
Кількість кімнат: 4
Площа ділянки: 2.50 соток
Тип будинку: Таунхаус
Рік побудови / здачі: На етапі будівництва
Тип стін: Цегляний
Тип покрівлі: Інше
Cанвузол: 2 і більше
Комунікації: Асфальтована дорога, Електрика, Газ, Свердловина
Інфраструктура (до 500 метрів): Магазин, кіоск, Зупинка транспорту
Опис
Пропозиція від Власника! Без жодних додаткових платежів! Якість будівництва, якої більше немає на ринку Тернополя! БОНУС - в кінці опису!
*
Площа: 130 м²
Ділянка: 2.5 сотих
Повноцінний 2 поверх (не мансардний)
Стелі: 2.9 м (1 пов.), 2.7 м (2 пов.)
Енергоефективний керамоблок, утеплення фасаду
Залізобетонне перекриття - 2 поверхів (не буде шуму від дощу+краща теплоізоляція!)
Утеплений дах з мембраною
6 камерні вікна Aluplast (встановлені «теплим монтажем» - повністю ізольований фасад!)
Якісні вхідні двері+гаражні ворота
*
Власна свердловина-чиста і смачна вода
Очисна споруда-автономна каналізація (жодних септиків, ніколи не прийдеться викачувати!)
Газ, вода, електрика 7 кВт! - все заведено в будинок
Автоматичні ворота, закрита територія
Ландшафтний дизайн території (від бруківки до заднього двору включено у вартість!)
Відеоспостереження
*
с. Біла, до центру Тернополя 5-10 хв
Зручний заїзд по асфальтованій дорозі! 200м до зупинки гром.транспорту+магазин. З вікна красивий вигляд на вулицю с. Біла - велика рідкість в котеджах!
*
Планова здача будинку в експлуатацію: 4 квартал 2025 року
БОНУС! В ціну входить гіпсова штукатурка по маяках! (маєте можливість зробити перепланування, провести електрику і головне оцінити якість будівництва!)
*
Площа: 130 м²
Ділянка: 2.5 сотих
Повноцінний 2 поверх (не мансардний)
Стелі: 2.9 м (1 пов.), 2.7 м (2 пов.)
Енергоефективний керамоблок, утеплення фасаду
Залізобетонне перекриття - 2 поверхів (не буде шуму від дощу+краща теплоізоляція!)
Утеплений дах з мембраною
6 камерні вікна Aluplast (встановлені «теплим монтажем» - повністю ізольований фасад!)
Якісні вхідні двері+гаражні ворота
*
Власна свердловина-чиста і смачна вода
Очисна споруда-автономна каналізація (жодних септиків, ніколи не прийдеться викачувати!)
Газ, вода, електрика 7 кВт! - все заведено в будинок
Автоматичні ворота, закрита територія
Ландшафтний дизайн території (від бруківки до заднього двору включено у вартість!)
Відеоспостереження
*
с. Біла, до центру Тернополя 5-10 хв
Зручний заїзд по асфальтованій дорозі! 200м до зупинки гром.транспорту+магазин. З вікна красивий вигляд на вулицю с. Біла - велика рідкість в котеджах!
*
Планова здача будинку в експлуатацію: 4 квартал 2025 року
БОНУС! В ціну входить гіпсова штукатурка по маяках! (маєте можливість зробити перепланування, провести електрику і головне оцінити якість будівництва!)
ID: 907376955
Зв’язатися з продавцем
xxx xxx xxx
Опубліковано 23 листопада 2025 р.
Котедж, таунхауз - 130м2 КМ Австралія
83 000 $
Місцезнаходження
Біла
Тернопільська область