Бізнес
Продаж від забудовника
Без комісії
Підходить під вимоги єОселя
Відстань до найближчого міста: до 15 км.
Поверховість: 1
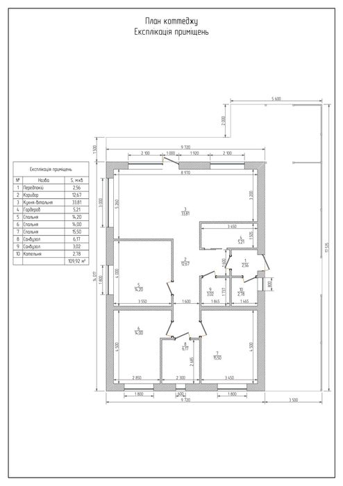
Загальна площа: 110 м²
Кількість кімнат: 4
Площа ділянки: 4.50 соток
Тип будинку: Котедж
Рік побудови / здачі: На етапі будівництва
Тип стін: Газоблок
Зовнішнє утеплення стін: Мінеральна вата
Тип покрівлі: Металочерепиця
Cанвузол: 2 і більше
Опалення: Комбіноване
Ремонт: Після будівельників
Меблювання: Ні
Побутова техніка: Без побутової техніки
Мультимедіа: Швидкісний інтернет
Комфорт: Відеоспостереження, Огорожа, Охорона території
Комунікації: Асфальтована дорога, Електрика, Вивіз відходів, Газ, Каналізація септик, Свердловина
Інфраструктура (до 500 метрів): Парк, зелена зона, Дитячий майданчик, Магазин, кіоск, Зупинка транспорту
Ландшафт (до 1 км.): Озеро, Річка
Опис
У комплексі будуть розташовані 39 котеджів та 62 дуплекси.
Унікальність проекту полягає у поєднанні всіх переваг заміського життя:
- еко-ставок для купання
- релакс зона
- 300 м до р. Десна
- територія під охороною
- дитячий майданчик
- воркаут зона
- лавка еко-продуктів
- 30 хв до м. Лісова
- Нове дорожнє покриття від Києва до містечка.
З особливою турботою команда Придесення БУД розробляла проект Gardd House, враховуючи попит та досвід будівництва в цьому регіоні, тому ми пропонуємо будинки від 95 кв.м та дуплекси 95 кв.м у закритій з цілодобовою охороною, власною інфраструктурою та керуючою компанією!
Характеристики котеджу Aster:
Загальна площа будинку – 110 кв.
Кількість поверхів 1
Ділянка від 4,5 до 6 соток *
Фундамент - стрічково-збірний з монолітною плитою
Зовнішні стіни – газоблок 300 мм.
Фасад - утеплення базальтовою ватою 100 мм, нанесення декоративної штукатурки та фарбування, планкен.
Покрівля – металочерепиця
Перекриття: збірно-монолітні з круглопустотних плит та монолітних ділянок.
Підлога - бетонна
Двері - Straj Stability Proof 1,8 / 120
Вікна - металопластиковий п'ятикамерний профіль, склопакети двокамерні з енергозберігаючим склом, фурнітура.
Електропостачання - введення кабельних ліній системи електропостачання, слаботочні кабельні лінії проводяться у розподільній коробці, вступний автомат потужністю 8 кВт, 3 фази.
Опалення - індивідуальне (газове/електро)
Водопостачання - автономна система водопостачання (свердловини 70м), встановлюється лічильник.
Каналізація - індивідуальна система Біосептик з переливом та дренажним полем.
Сантехніка - виконуються введення водопроводу та каналізації
Огородження - металевий паркан (штакетник), фасадна частина відкритого типу
Територія – укладання прибудинкової території ФЕМом, зелені насадження на передній частині будинку, підсипання території чорноземом шаром 10 см
*Земельна ділянка входить у вартість котеджу.
В продажу друга черга будівництва (ведуться покрівельні роботи)
Мінімальна ціна - 73500 при 100% оплаті.
Вартість при розтермінуванні 77400 дол.
Мінімальний внесок 30%.
Розтермінування до 18 місяців (без здорожчання).
Для військових - додаткова знижка.
Зробити прорахунок розстрочки можна на сайті проєкту: garddhouse.com.ua/rozstrochka
Будемо раді бачити Вас у нашому відділі продажів, який працює щодня з 10 до 18.
Зв’язатися з продавцем
xxx xxx xxx

