Бізнес
Відстань до найближчого міста: до 10 км.
Поверховість: 1
Загальна площа: 59 м²
Кількість кімнат: 2
Площа ділянки: 10.50 соток
Тип будинку: Будинок
Тип покрівлі: Черепиця (керамічна)
Опалення: Комбіноване
Ремонт: Житловий стан
Меблювання: Так
Побутова техніка: Холодильник, Плита
Мультимедіа: Швидкісний інтернет, Телевізор, Wi-Fi
Комфорт: Підсобні приміщення, Огорожа, Сад, город
Комунікації: Асфальтована дорога, Електрика, Вивіз відходів, Газ, Свердловина
Інфраструктура (до 500 метрів): Дитячий садок, Відділення пошти, Ресторан, кафе, Школа, Магазин, кіоск, Зупинка транспорту
Ландшафт (до 1 км.): Ліс, Пагорби, Гори
Опис
ПРОДАЖ НЕВЕЛИКОГО, КОМПАКТНОГО (59 КВ.М.) ОДНОПОВЕРХОВОГО 2-Х КІМНАТНОГО БУДИНКУ ТА НАЛЕЖНОЇ ДО НЬОГО ЗЕМЕЛЬНОЇ ДІЛЯНКИ 10.5 СОТОК НА ТИХІЙ, СПОКІЙНІЙ ВУЛИЦІ ПОБЛИЗУ МАЛЬОВНИЧОЇ ПРИРОДИ БЕЗПОСЕРЕДНЬО У ПЕРЕДМІСТІ БЕРЕГОВА (С. МУЖІЄВО НА БЕРЕГІВЩИНІ, ВСЬОГО 7 К.М. ДО МІСТА, ВЕСЬ ШЛЯХ ПОВНІСТЮ АСФАЛЬТОВАНИЙ)!
20999$
59 КВ.М.
10.5 СОТОК
ЖИТЛОВИЙ СТАН. ПОВНЕ МЕБЛЮВАННЯ, ПОБУТОВА ТЕХНІКА.
ДАХ З КЕРАМІЧНОЇ ЧЕРЕПИЦІ (СПРАВНИЙ, БЕЗ ПРОТІКАНЬ).
РАЦІОНАЛЬНЕ ПЛАНУВАННЯ ВНУТРІШНЬОГО ПРОСТОРУ.
КОМБІНОВАНЕ ОПАЛЕННЯ: ІНДИВІДУАЛЬНЕ ГАЗОВЕ, ЩО НЕЗАЛЕЖИТЬ ВІД НАЯВНОСТІ ЕЛЕКТРОЕНЕРГІЇ (КОНВЕКТОРИ) + КАФЕЛЬНА ПІЧ (ТВЕРДЕ ПАЛИВО).
ІНДВИВІДУАЛЬНЕ ВОДОПОСТАЧАННЯ (КОЛОДЯЗЬ З ПОДАЧОЮ ВОДИ ЗА ДОПОМОГОЮ ЕЛЕКТРИЧНОГО НАСОСУ).
ІНДИВІДУАЛЬНЕ ВОДОВІДВЕДЕННЯ (СЕПТИК).
БУДИНОК НА 2 ВХОДИ (ПЕРЕД КОЖНИМ Є НЕВЕЛИКИЙ НАВІС).
ДЕКІЛЬКА ГОСПОДАРСЬКИХ БУДІВЕЛЬ.
ГОРОД, ФРУКТОВИЙ САД.
ШИРОКИЙ ДВІР. ВПОРЯДКОВАНА (БЕТОНОВАНА) ТА ОЗЕЛЕНЕНА ПРИБУДИНКОВА ТЕРИТОРІЯ.
НАЯВНІ ПАРКОМІСЦЯ У ДВОРІ ДЛЯ ДЕКІЛЬКОХ АВТО.
ТИХА, ОЗЕЛЕНЕНА ВУЛИЦЯ. АСФАЛЬТОВАНИЙ ПІД'ЇЗД.
ПОРУЧ ВСЯ НЕОБХІДНА СОЦІАЛЬНА ІНФРАСТРУКТУРА.
Продам невеликий, компактний (59 кв.м.) одноповерховий 2-х кімнатний будинок та належну до нього земельну ділянку 10.5 соток!
Будинок знаходиться на тихій, спокійній, озелененій, забудованій та заселеній вулиці, поблизу мальовничої природи (недалеко від гори), безпосередньо у с. Мужієво Берегівського району, всього 7 к.м. до міста (весь шлях повністю асфальтований)!
Разом з тим, будинок знаходиться близько до центра села, де наявна необхідна соціальна інфраструктура: амбулаторія, дитячий садок, школа, магазини, відділення Нової пошти тощо.
Співвідношення місця розташування будинку з локаціями Берегівщини:
- 10 кілометрів до термального басейну УСБ «Закарпаття», оздоровчого комплексу із термальними водами «Жайворонок» та інших туристичних принад Берегова;
- 9 кілометрів до відомого еко-курорту «Дийда» із зонами відпочинку «Бумеранг» та «Бора-Бора» та міні аквапарку «Хорус»;
- 16 кілометрів до с. Косонь, де знаходиться комплекс «Термальні води «Косино» та інші оздоровчо-розважальні заклади;
- 11 кілометрів до КПП «Лужанка» на кордоні з Угорщиною;
- всі під’їзні шляхи від будинковолодіння до вищевказаних локацій асфальтовані.
Зазначене вище у поєднанні із наявністю великої прибудинкової території, робить дану локацію хорошим варіантом для проживання та спокійного відпочинку.
Будинок підійде для проживання невеликої родини, яка гідно оцінить переваги спокою та затишку життя поруч з мальовничою природою у сільській місцевості, маючи можливість вести власне підсобне господарство на власній земельній ділянці, однак, при цьому, проживати всього в межах 15-20 хв. їзди на авто як до центральної частини Берегова, так і більшості місць відпочинку та оздоровлення на території Берегівського району, що також підтверджує вдале розташування будинку.
ХАРАКТЕРИСТИКИ БУДИНКУ
Будинок розташований на широкій земельній ділянці практично правильної прямокутної форми загальною площею 10.5 соток.
Будинок має кам'яний фундамент.
Стіни будинку зовні оздоблені старою декоративною штукатуркою, яка наразі перебуває у хорошому стані.
Покриття даху з керамічної черепиці (справне, без протікань).
Даний будинок представляє собою хороший варіант компактного, економного житла з вдалим плануванням та раціональним використанням хоч і невеликого, але повністю функціонального внутрішнього простору помешкання, що сприяє комфортному проживанню та відпочинку.
Ремонт старий, але всі житлові приміщення будинку перебувають у хорошому стані, повністю придатному для проживання.
Будинок теплий, без сирості.
Будинок в оренду ніколи не здавалося, а використовувався виключно для власного проживання.
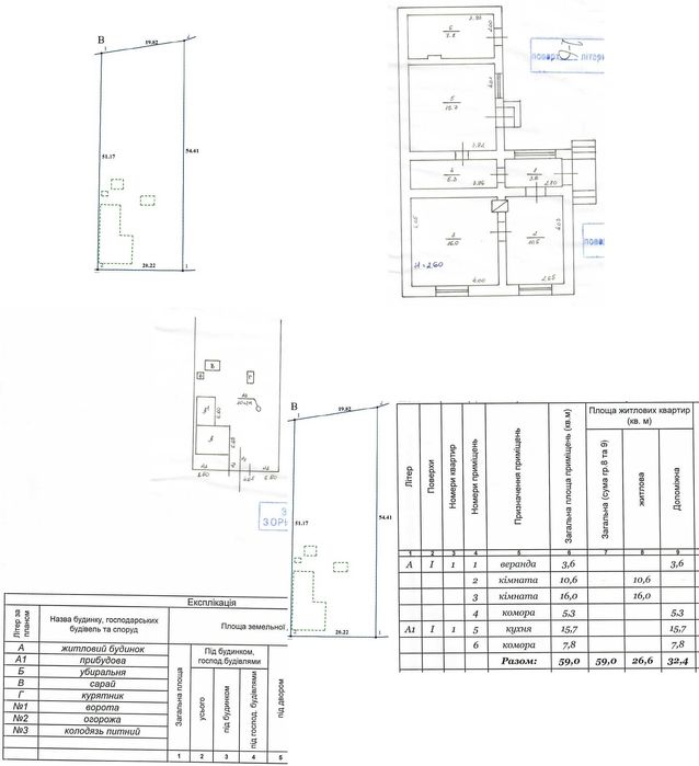
Загальна площа будинку - 59 кв.м.
Житлова площа - 26.6 кв.м.
Складові частини будинку:
- 2 кімнати
- коридор
- кухня
- 2 комори (5.3 кв.м. та 7.8 кв.м.).
Ванної кімнати у будинку немає, однак, з огляду на площі та конфігурацію приміщень будинку, раціональним є її влаштування на місці однієї з комор.
У дворі, відразу біля будинку, є колодязь, з якого вода подавалась на поверхню за допомогою електричного насосу. Однак, безпосередньо у будинок вода не заведена.
У дворі також є дощатий туалет, з якого нечистоти виводяться у бетонний септик.
У будинок є два входи, перед кожним з яких є навіс.
На подвір'ї також розташовано декілька господарських будівель.
Двір широкий, впорядкований (забетонований), озеленений, умовно розділений на декілька функціональних зон. Наявні паркомісця для декількох авто.
Будинок в оренду ніколи не здавалося, а використовувався виключно для власного проживання.
Задня частина ділянки зайнята городом та садом.
Наявне обладнання, комунікації:
- електропостачання;
- комбіноване опалення: індивідуальне газове, що незалежить від наявності електроенергії (конвектори) + кафельна піч між двома кімнатами (тверде паливо);
- індвивідуальне водопостачання (колодязь з подачею води за допомогою електричного насосу);
- індвивідуальне водовідведення (бетонний септик);
- лічильники на наявні комунікації.
Вартість - 20999$
Документи на будинок впорядковані, оформлена приватна власність.
Наявний відеоогляд будинку.
Детальніша інформація за телефонами: 09******43 та 06******95 (Віталій).
20999$
59 КВ.М.
10.5 СОТОК
ЖИТЛОВИЙ СТАН. ПОВНЕ МЕБЛЮВАННЯ, ПОБУТОВА ТЕХНІКА.
ДАХ З КЕРАМІЧНОЇ ЧЕРЕПИЦІ (СПРАВНИЙ, БЕЗ ПРОТІКАНЬ).
РАЦІОНАЛЬНЕ ПЛАНУВАННЯ ВНУТРІШНЬОГО ПРОСТОРУ.
КОМБІНОВАНЕ ОПАЛЕННЯ: ІНДИВІДУАЛЬНЕ ГАЗОВЕ, ЩО НЕЗАЛЕЖИТЬ ВІД НАЯВНОСТІ ЕЛЕКТРОЕНЕРГІЇ (КОНВЕКТОРИ) + КАФЕЛЬНА ПІЧ (ТВЕРДЕ ПАЛИВО).
ІНДВИВІДУАЛЬНЕ ВОДОПОСТАЧАННЯ (КОЛОДЯЗЬ З ПОДАЧОЮ ВОДИ ЗА ДОПОМОГОЮ ЕЛЕКТРИЧНОГО НАСОСУ).
ІНДИВІДУАЛЬНЕ ВОДОВІДВЕДЕННЯ (СЕПТИК).
БУДИНОК НА 2 ВХОДИ (ПЕРЕД КОЖНИМ Є НЕВЕЛИКИЙ НАВІС).
ДЕКІЛЬКА ГОСПОДАРСЬКИХ БУДІВЕЛЬ.
ГОРОД, ФРУКТОВИЙ САД.
ШИРОКИЙ ДВІР. ВПОРЯДКОВАНА (БЕТОНОВАНА) ТА ОЗЕЛЕНЕНА ПРИБУДИНКОВА ТЕРИТОРІЯ.
НАЯВНІ ПАРКОМІСЦЯ У ДВОРІ ДЛЯ ДЕКІЛЬКОХ АВТО.
ТИХА, ОЗЕЛЕНЕНА ВУЛИЦЯ. АСФАЛЬТОВАНИЙ ПІД'ЇЗД.
ПОРУЧ ВСЯ НЕОБХІДНА СОЦІАЛЬНА ІНФРАСТРУКТУРА.
Продам невеликий, компактний (59 кв.м.) одноповерховий 2-х кімнатний будинок та належну до нього земельну ділянку 10.5 соток!
Будинок знаходиться на тихій, спокійній, озелененій, забудованій та заселеній вулиці, поблизу мальовничої природи (недалеко від гори), безпосередньо у с. Мужієво Берегівського району, всього 7 к.м. до міста (весь шлях повністю асфальтований)!
Разом з тим, будинок знаходиться близько до центра села, де наявна необхідна соціальна інфраструктура: амбулаторія, дитячий садок, школа, магазини, відділення Нової пошти тощо.
Співвідношення місця розташування будинку з локаціями Берегівщини:
- 10 кілометрів до термального басейну УСБ «Закарпаття», оздоровчого комплексу із термальними водами «Жайворонок» та інших туристичних принад Берегова;
- 9 кілометрів до відомого еко-курорту «Дийда» із зонами відпочинку «Бумеранг» та «Бора-Бора» та міні аквапарку «Хорус»;
- 16 кілометрів до с. Косонь, де знаходиться комплекс «Термальні води «Косино» та інші оздоровчо-розважальні заклади;
- 11 кілометрів до КПП «Лужанка» на кордоні з Угорщиною;
- всі під’їзні шляхи від будинковолодіння до вищевказаних локацій асфальтовані.
Зазначене вище у поєднанні із наявністю великої прибудинкової території, робить дану локацію хорошим варіантом для проживання та спокійного відпочинку.
Будинок підійде для проживання невеликої родини, яка гідно оцінить переваги спокою та затишку життя поруч з мальовничою природою у сільській місцевості, маючи можливість вести власне підсобне господарство на власній земельній ділянці, однак, при цьому, проживати всього в межах 15-20 хв. їзди на авто як до центральної частини Берегова, так і більшості місць відпочинку та оздоровлення на території Берегівського району, що також підтверджує вдале розташування будинку.
ХАРАКТЕРИСТИКИ БУДИНКУ
Будинок розташований на широкій земельній ділянці практично правильної прямокутної форми загальною площею 10.5 соток.
Будинок має кам'яний фундамент.
Стіни будинку зовні оздоблені старою декоративною штукатуркою, яка наразі перебуває у хорошому стані.
Покриття даху з керамічної черепиці (справне, без протікань).
Даний будинок представляє собою хороший варіант компактного, економного житла з вдалим плануванням та раціональним використанням хоч і невеликого, але повністю функціонального внутрішнього простору помешкання, що сприяє комфортному проживанню та відпочинку.
Ремонт старий, але всі житлові приміщення будинку перебувають у хорошому стані, повністю придатному для проживання.
Будинок теплий, без сирості.
Будинок в оренду ніколи не здавалося, а використовувався виключно для власного проживання.
Загальна площа будинку - 59 кв.м.
Житлова площа - 26.6 кв.м.
Складові частини будинку:
- 2 кімнати
- коридор
- кухня
- 2 комори (5.3 кв.м. та 7.8 кв.м.).
Ванної кімнати у будинку немає, однак, з огляду на площі та конфігурацію приміщень будинку, раціональним є її влаштування на місці однієї з комор.
У дворі, відразу біля будинку, є колодязь, з якого вода подавалась на поверхню за допомогою електричного насосу. Однак, безпосередньо у будинок вода не заведена.
У дворі також є дощатий туалет, з якого нечистоти виводяться у бетонний септик.
У будинок є два входи, перед кожним з яких є навіс.
На подвір'ї також розташовано декілька господарських будівель.
Двір широкий, впорядкований (забетонований), озеленений, умовно розділений на декілька функціональних зон. Наявні паркомісця для декількох авто.
Будинок в оренду ніколи не здавалося, а використовувався виключно для власного проживання.
Задня частина ділянки зайнята городом та садом.
Наявне обладнання, комунікації:
- електропостачання;
- комбіноване опалення: індивідуальне газове, що незалежить від наявності електроенергії (конвектори) + кафельна піч між двома кімнатами (тверде паливо);
- індвивідуальне водопостачання (колодязь з подачею води за допомогою електричного насосу);
- індвивідуальне водовідведення (бетонний септик);
- лічильники на наявні комунікації.
Вартість - 20999$
Документи на будинок впорядковані, оформлена приватна власність.
Наявний відеоогляд будинку.
Детальніша інформація за телефонами: 09******43 та 06******95 (Віталій).
ID: 907441825
Зв’язатися з продавцем
xxx xxx xxx
Опубліковано 03 лютого 2026 р.
КОМПАКТНИЙ, НЕВЕЛИКИЙ 2-х кімнатний будинок 59 кв.м., житловий стан!
20 999 $
Місцезнаходження
Мужієво
Закарпатська область