Бізнес
Без комісії
Відстань до найближчого міста: У місті
Розташування: Частина будівлі
Тип об'єкта: Нежитлове приміщення у житловому фонді
Поверх: 1
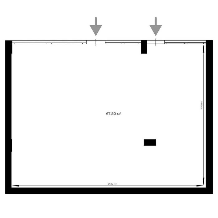
Загальна площа: 67.80 м²
Ремонт: Ні
Комфорт: Панорамні вікна, Паркувальне місце, Гостьовий паркінг
Комунікації: Центральний водопровід, Електрика, Центральна каналізація, Асфальтована дорога
Інфраструктура (до 500 метрів): Транспортна розв'язка, Парк, зелена зона, Навчальні заклади, Лікарня, поліклініка
Ландшафт (до 1 км.): Пагорби, Парк
Опис
Комерційне приміщення GHK 303 під магазин у ЖК GRAND HILLS — бізнес-клас в центрі подій
– Площа: 67,8 м²
– Призначення: магазин / торгівля / сервіс
– Поверх: 1
– Вартість м²: 2 000 $
– Повна вартість: 135 600 $
– Стан: будується / здача — IV кв. 2025
– Локація: Ужгород, найвища точка міста / престижний район
–– Переваги обʼєкта ––
• Перша лінія стилобату — активний трафік
• Прямий фасадний вхід
• Великі вітрини
• Вільне планування / зручно для зонування
• Підійде під продуктовий магазин, кав’ярню, аптеку, салон, шоурум
• Паркомісця біля входу
–– Про ЖК GRAND HILLS ––
• 7 секцій каскадної забудови
• 4570 м² комерційних приміщень
• 236 квартир / сформований трафік клієнтів
• Супермаркет / кав’ярні / спортзал у будинку
• Закрита територія / відеоспостереження / охорона
• Сейсмостійкість — 7 балів
–– Додатково ––
• Без комісії
• Продаж напряму від забудовника GAZDA
• Повний юридичний супровід
• Можливе розтермінування
• Доступні інші площі — за запитом
Телефонуйте для перегляду або консультації.
Переглядайте також інші обʼєкти від GAZDA у Grand Hills та інших ЖК.
– Площа: 67,8 м²
– Призначення: магазин / торгівля / сервіс
– Поверх: 1
– Вартість м²: 2 000 $
– Повна вартість: 135 600 $
– Стан: будується / здача — IV кв. 2025
– Локація: Ужгород, найвища точка міста / престижний район
–– Переваги обʼєкта ––
• Перша лінія стилобату — активний трафік
• Прямий фасадний вхід
• Великі вітрини
• Вільне планування / зручно для зонування
• Підійде під продуктовий магазин, кав’ярню, аптеку, салон, шоурум
• Паркомісця біля входу
–– Про ЖК GRAND HILLS ––
• 7 секцій каскадної забудови
• 4570 м² комерційних приміщень
• 236 квартир / сформований трафік клієнтів
• Супермаркет / кав’ярні / спортзал у будинку
• Закрита територія / відеоспостереження / охорона
• Сейсмостійкість — 7 балів
–– Додатково ––
• Без комісії
• Продаж напряму від забудовника GAZDA
• Повний юридичний супровід
• Можливе розтермінування
• Доступні інші площі — за запитом
Телефонуйте для перегляду або консультації.
Переглядайте також інші обʼєкти від GAZDA у Grand Hills та інших ЖК.
ID: 881725117
Зв’язатися з продавцем
xxx xxx xxx