Бізнес
Продаж від забудовника
Без комісії
Готовий співпрацювати з ріелторами
Підходить під вимоги єОселя
Відстань до найближчого міста: до 15 км.
Поверховість: 1
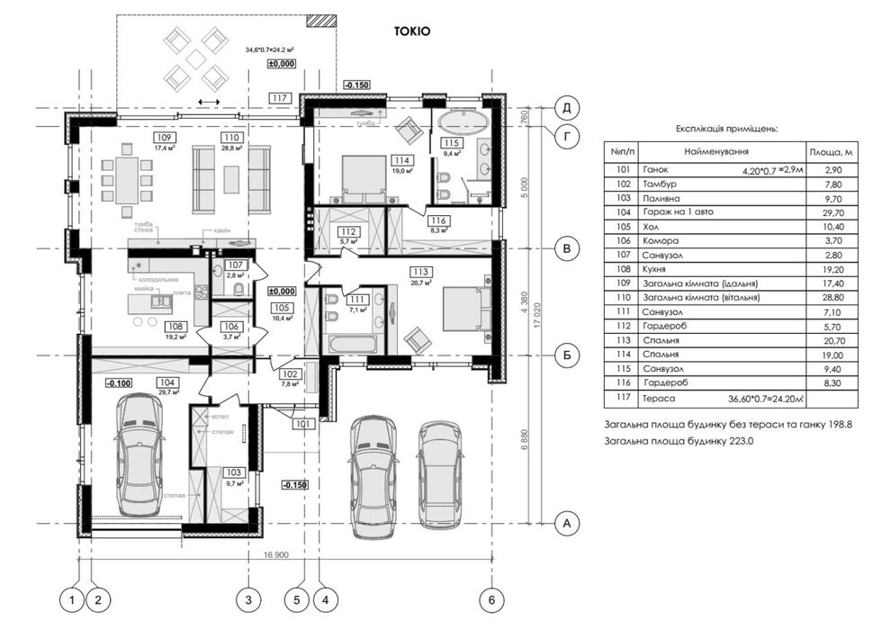
Загальна площа: 225 м²
Кількість кімнат: 3
Площа ділянки: 12 соток
Тип будинку: Будинок
Тип стін: Цегляний
Зовнішнє утеплення стін: Мінеральна вата
Тип покрівлі: Інше
Cанвузол: 2 і більше
Опалення: Інше
Ремонт: Під чистову обробку
Комфорт: Альтанка, мангал, Відеоспостереження, Підсобні приміщення, Гараж, Сад, город, Охорона території, Сигналізація, Автономний електрогенератор, Тераса
Ландшафт (до 1 км.): Парк, Річка
Опис
Котеджне містечко «RZ Deluxe» — сучасний простір для життя біля Дніпра.
Просторий одноповерховий будинок 225 м2, створений для комфортного та стильного життя. Продумане планування поєднує приватність, функціональність і відчуття простору.
У будинку дві майстер- спальні з власним санвузлом та гардеробною, що робить будинок ідеальним як для сім’ї, так і для прийому гостей.
Серцем дому є велика кухня з обідньою зоною та затишною вітальнею, звідки відкривається вихід на простору криту терасу — ідеальне місце для відпочинку, вечерь на свіжому повітрі або зустрічей з друзями.
Для зручності передбачені господарські приміщення та гараж на 1 автомобіль.
Сучасний будинок преміум-класу з продуманою архітектурою та високою якістю будівництва:
* Будівля зведена за монолітно-каркасною технологією на надійному фундаменті — шведській монолітній плиті, що забезпечує довговічність, енергоефективність та стабільність конструкції.
* Зовнішні стіни виконані з керамічної цегли товщиною 380 мм, а фасад обладнаний сучасною вентильованою системою з утепленням мінеральною ватою 150 мм та облицюванням композитними і HPL панелями. Така технологія гарантує відмінну теплоізоляцію, довговічність та сучасний архітектурний вигляд.
* Будинок має плоску монолітну покрівлю, утеплену пінополістиролом 200 мм та захищену ПВХ-мембраною, що забезпечує високий рівень гідроізоляції та енергоефективності.
* Встановлені преміальні алюмінієві віконні мультифункціональні панорамні розсувні системи «Reynaers», включаючи великі підйомно-розсувні двері, які наповнюють будинок світлом і створюють прямий вихід на терасу.
* Передбачені бетоновані тераса, ганок, під’їзд до гаража, вимощення та доріжки, що формують завершений та функціональний зовнішній простір.
* Територія навколо будинку повністю облаштована: виконано планування ділянки, підведено всі необхідні комунікації (вода, електрика, інтернет, каналізація), змонтовано контур заземлення. Ділянка озеленена — завезено чорнозем, укладено рулонний газон, встановлена система автоматичного поливу smart та висаджені декоративні дерева, зокрема блакитна ялина, сосни, листяні дерева та туї.
* Особливу атмосферу створює скляне огородження підпірної стінки з підсвічуванням та елегантні доріжки з гранітного покриття.
* Будинок продається з готовим сучасним фасадом і відмосткою. До будинку вже підведені всі необхідні комунікації: електрика, газ та вода.
Територія продумана для комфортного життя та відпочинку:
• затишний сквер;
• дитячий майданчик;
• вуличні тренажери;
• басейн на понтоні;
• прогулянкова набережна.
Локація та інфраструктура «RZ Deluxe»— це ультрасучасний котеджний квартал на березі Дніпра з власним причалом для яхт. Охоронювана закрита територія, власна обслуговуюча компанія, камери відеоспостереження, генератор з автоматичним безперебійним електропостачанням.
«RZ Deluxe» — це більше, ніж просто будинок.
Це стиль життя біля води, де сучасна архітектура, високоякісні матеріали та продуманий ландшафтний дизайн створюють ідеальний простір для комфортного життя в гармонії з природою!
Просторий одноповерховий будинок 225 м2, створений для комфортного та стильного життя. Продумане планування поєднує приватність, функціональність і відчуття простору.
У будинку дві майстер- спальні з власним санвузлом та гардеробною, що робить будинок ідеальним як для сім’ї, так і для прийому гостей.
Серцем дому є велика кухня з обідньою зоною та затишною вітальнею, звідки відкривається вихід на простору криту терасу — ідеальне місце для відпочинку, вечерь на свіжому повітрі або зустрічей з друзями.
Для зручності передбачені господарські приміщення та гараж на 1 автомобіль.
Сучасний будинок преміум-класу з продуманою архітектурою та високою якістю будівництва:
* Будівля зведена за монолітно-каркасною технологією на надійному фундаменті — шведській монолітній плиті, що забезпечує довговічність, енергоефективність та стабільність конструкції.
* Зовнішні стіни виконані з керамічної цегли товщиною 380 мм, а фасад обладнаний сучасною вентильованою системою з утепленням мінеральною ватою 150 мм та облицюванням композитними і HPL панелями. Така технологія гарантує відмінну теплоізоляцію, довговічність та сучасний архітектурний вигляд.
* Будинок має плоску монолітну покрівлю, утеплену пінополістиролом 200 мм та захищену ПВХ-мембраною, що забезпечує високий рівень гідроізоляції та енергоефективності.
* Встановлені преміальні алюмінієві віконні мультифункціональні панорамні розсувні системи «Reynaers», включаючи великі підйомно-розсувні двері, які наповнюють будинок світлом і створюють прямий вихід на терасу.
* Передбачені бетоновані тераса, ганок, під’їзд до гаража, вимощення та доріжки, що формують завершений та функціональний зовнішній простір.
* Територія навколо будинку повністю облаштована: виконано планування ділянки, підведено всі необхідні комунікації (вода, електрика, інтернет, каналізація), змонтовано контур заземлення. Ділянка озеленена — завезено чорнозем, укладено рулонний газон, встановлена система автоматичного поливу smart та висаджені декоративні дерева, зокрема блакитна ялина, сосни, листяні дерева та туї.
* Особливу атмосферу створює скляне огородження підпірної стінки з підсвічуванням та елегантні доріжки з гранітного покриття.
* Будинок продається з готовим сучасним фасадом і відмосткою. До будинку вже підведені всі необхідні комунікації: електрика, газ та вода.
Територія продумана для комфортного життя та відпочинку:
• затишний сквер;
• дитячий майданчик;
• вуличні тренажери;
• басейн на понтоні;
• прогулянкова набережна.
Локація та інфраструктура «RZ Deluxe»— це ультрасучасний котеджний квартал на березі Дніпра з власним причалом для яхт. Охоронювана закрита територія, власна обслуговуюча компанія, камери відеоспостереження, генератор з автоматичним безперебійним електропостачанням.
«RZ Deluxe» — це більше, ніж просто будинок.
Це стиль життя біля води, де сучасна архітектура, високоякісні матеріали та продуманий ландшафтний дизайн створюють ідеальний простір для комфортного життя в гармонії з природою!
ID: 830010758
Зв’язатися з продавцем
xxx xxx xxx
