Бізнес
Відстань до найближчого міста: до 5 км.
Поверховість: 2
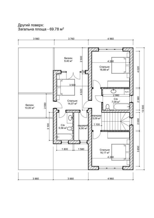
Загальна площа: 160 м²
Кількість кімнат: 4
Площа ділянки: 6 соток
Тип будинку: Будинок
Рік побудови / здачі: На етапі будівництва
Тип стін: Інше
Зовнішнє утеплення стін: Пінопласт
Тип покрівлі: Металочерепиця
Cанвузол: 2 і більше
Опалення: Індивідуальне газове
Ремонт: Під чистову обробку
Меблювання: Ні
Комунікації: Газ
Інфраструктура (до 500 метрів): Школа
Ландшафт (до 1 км.): Пагорби, Річка
Опис
Будинок в кращій локації с. Вовчинець з видом на Вовчинецькі пагорби!
Будинок на етапі будівництва ( є такий самий збудований проданий щоб побачити який він буде)
Ціна 195 000$
- площа 152 м.кв. + балкон та тераса
- ділянка 6 сотки
- Стіни керамо блок.
- Покрівля металочерепиця
- Перекриття між поверхами панелі
- Бетонні армовані сходи
- Підведені комунікації (світло 3фази 10квт, газ, вода скважена більше 20м, каналізація септик)
- Пісчано-вапняна штукатурка по маякам
- Базова стяжка
- Гідроізоляція фундаменту
- фасад пінопласт + клінкер, декоративка Баранник
- Бруківка + Озеленення та полив тереторії
- Вікна та балконні двері шестикамерний профіль
- Якісні вхідні двері
-огороджена тереторія
-автоматичні ворота
Хороша локація поруч Річка та Вовчинецькі пагорби,
а також є школа, дитячий садок, та найбільші ТЦ Міста.
Будинок на етапі будівництва ( є такий самий збудований проданий щоб побачити який він буде)
Ціна 195 000$
- площа 152 м.кв. + балкон та тераса
- ділянка 6 сотки
- Стіни керамо блок.
- Покрівля металочерепиця
- Перекриття між поверхами панелі
- Бетонні армовані сходи
- Підведені комунікації (світло 3фази 10квт, газ, вода скважена більше 20м, каналізація септик)
- Пісчано-вапняна штукатурка по маякам
- Базова стяжка
- Гідроізоляція фундаменту
- фасад пінопласт + клінкер, декоративка Баранник
- Бруківка + Озеленення та полив тереторії
- Вікна та балконні двері шестикамерний профіль
- Якісні вхідні двері
-огороджена тереторія
-автоматичні ворота
Хороша локація поруч Річка та Вовчинецькі пагорби,
а також є школа, дитячий садок, та найбільші ТЦ Міста.
ID: 895823654
Зв’язатися з продавцем
xxx xxx xxx
