Бізнес
Опис
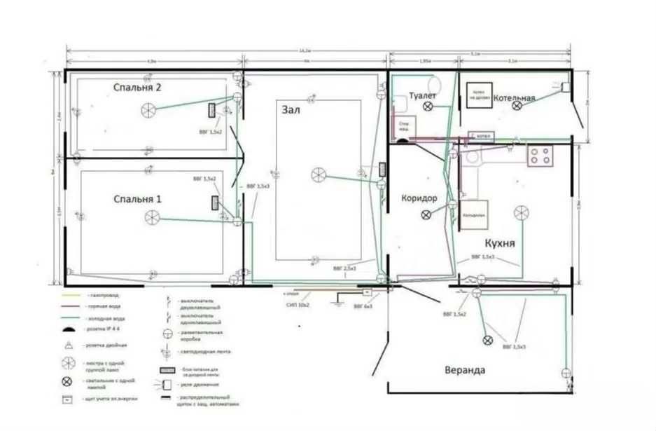
Частный мастер-электрик в Кривом Роге предлагает профессиональные услуги любой сложности. Выполняю качественный ремонт и монтаж электрики в квартирах, частных домах, офисах, магазинах и других помещениях. Работаю во всех районах города, обеспечиваю оперативный выезд на срочные вызовы. Работаю каждый день, звоните в любое время! Гарантирую надежность, безопасность и высокий уровень выполнения работ.
Услуги:
Установка и замена розеток, выключателей
Монтаж и подключение светильников, люстр, бра
Проектирование и прокладка новой электропроводки
Диагностика и ремонт существующей проводки
Полная или частичная замена старой электропроводки
Монтаж кабельных линий и штробление стен
Установка и сборка электрощитов
Подключение автоматических выключателей и УЗО
Монтаж систем защиты от перегрузок и короткого замыкания
Установка и настройка счетчиков электроэнергии
Подключение бытовой техники (стиральных машин, духовок, варочных панелей)
Установка и подключение бойлеров, водонагревателей
Монтаж систем освещения (внутреннего и наружного)
Установка датчиков движения и реле времени
Монтаж теплого пола
Ремонт и замена поврежденных кабелей
Устранение неисправностей в электросети (короткие замыкания, перебои)
Электромонтажные работы под ключ
Консультации по оптимизации электроснабжения
Срочный вызов, аккуратность и соблюдение всех норм безопасности — мои приоритеты. Обращайтесь, и ваша электрика будет в надежных руках!
Приватний майстер-електрик пропонує професійні послуги будь-якої складності. Виконую якісний ремонт та монтаж електрики у квартирах, приватних будинках, офісах, магазинах та інших приміщеннях. Працюю у всіх районах міста, забезпечую оперативний виїзд на термінові дзвінки. Працюю щодня, дзвоніть у будь-який час! Гарантую надійність, безпеку та високий рівень виконання робіт.
Послуги:
Встановлення та заміна розеток, вимикачів
Монтаж та підключення світильників, люстр, бра
Проектування та прокладання нової електропроводки
Діагностика та ремонт існуючої проводки
Повна або часткова заміна старої електропроводки
Монтаж кабельних ліній та штроблення стін
Установка та збирання електрощитів
Підключення автоматичних вимикачів та ПЗВ
Монтаж систем захисту від перевантажень та короткого замикання
Встановлення та налаштування лічильників електроенергії
Підключення побутової техніки (пральних машин, духовок, варильних панелей)
Установка та підключення бойлерів, водонагрівачів
Монтаж систем освітлення (внутрішнього та зовнішнього)
Установка датчиків руху та реле часу
Монтаж теплої підлоги
Ремонт та заміна пошкоджених кабелів
Усунення несправностей в електромережі (короткі замикання, перебої)
Електромонтажні роботи під ключ
Консультації з оптимізації електропостачання
Терміновий виклик, акуратність та дотримання всіх норм безпеки – мої пріоритети. Звертайтесь і ваша електрика буде в надійних руках!
Услуги:
Установка и замена розеток, выключателей
Монтаж и подключение светильников, люстр, бра
Проектирование и прокладка новой электропроводки
Диагностика и ремонт существующей проводки
Полная или частичная замена старой электропроводки
Монтаж кабельных линий и штробление стен
Установка и сборка электрощитов
Подключение автоматических выключателей и УЗО
Монтаж систем защиты от перегрузок и короткого замыкания
Установка и настройка счетчиков электроэнергии
Подключение бытовой техники (стиральных машин, духовок, варочных панелей)
Установка и подключение бойлеров, водонагревателей
Монтаж систем освещения (внутреннего и наружного)
Установка датчиков движения и реле времени
Монтаж теплого пола
Ремонт и замена поврежденных кабелей
Устранение неисправностей в электросети (короткие замыкания, перебои)
Электромонтажные работы под ключ
Консультации по оптимизации электроснабжения
Срочный вызов, аккуратность и соблюдение всех норм безопасности — мои приоритеты. Обращайтесь, и ваша электрика будет в надежных руках!
Приватний майстер-електрик пропонує професійні послуги будь-якої складності. Виконую якісний ремонт та монтаж електрики у квартирах, приватних будинках, офісах, магазинах та інших приміщеннях. Працюю у всіх районах міста, забезпечую оперативний виїзд на термінові дзвінки. Працюю щодня, дзвоніть у будь-який час! Гарантую надійність, безпеку та високий рівень виконання робіт.
Послуги:
Встановлення та заміна розеток, вимикачів
Монтаж та підключення світильників, люстр, бра
Проектування та прокладання нової електропроводки
Діагностика та ремонт існуючої проводки
Повна або часткова заміна старої електропроводки
Монтаж кабельних ліній та штроблення стін
Установка та збирання електрощитів
Підключення автоматичних вимикачів та ПЗВ
Монтаж систем захисту від перевантажень та короткого замикання
Встановлення та налаштування лічильників електроенергії
Підключення побутової техніки (пральних машин, духовок, варильних панелей)
Установка та підключення бойлерів, водонагрівачів
Монтаж систем освітлення (внутрішнього та зовнішнього)
Установка датчиків руху та реле часу
Монтаж теплої підлоги
Ремонт та заміна пошкоджених кабелів
Усунення несправностей в електромережі (короткі замикання, перебої)
Електромонтажні роботи під ключ
Консультації з оптимізації електропостачання
Терміновий виклик, акуратність та дотримання всіх норм безпеки – мої пріоритети. Звертайтесь і ваша електрика буде в надійних руках!
ID: 892533233
Зв’язатися з продавцем
xxx xxx xxx
Опубліковано 18 жовтня 2025 р.
Электрик Профессионал Срочный Вызов / Услуги Электрика Кривой Рог
Місцезнаходження