Бізнес
Вид об'єкта: Вторинний ринок
Без комісії
Тип будинку: Житловий фонд від 2021 р.
Поверх: 14
Поверховість: 15
Загальна площа: 355 м²
Площа кухні: 68 м²
Тип стін: Цегляний
Клас житла: Еліт
Кількість кімнат: 4 кімнати
Планування: Пентхаус
Cанвузол: 2 і більше
Опалення: Індивідуальне газове
Ремонт: Авторський проект
Меблювання: Ні
Комфорт: Відеоспостереження, Підземний паркінг, Панорамні вікна, Охорона території, Технологія "розумний будинок", Тераса, Гардероб
Комунікації: Асфальтована дорога, Центральна каналізація, Електрика, Газ, Центральний водопровід
Інфраструктура (до 500 метрів): Парк, зелена зона, Супермаркет, ТРЦ
Ландшафт (до 1 км.): Парк, Море
Опис
Предлагается к продаже эксклюзивный пентхаус общей площадью 355 м², расположенный в престижном Клубный доме на Азарова — одной из самых востребованных локаций у моря в Одессе.
Пентхаус занимает два уровня и предлагает панорамные виды на море и город из всех окон.
Формат недвижимости сочетает приватность, простор и статусный образ жизни в шаговой доступности к лучшим рекреационным зонам города.
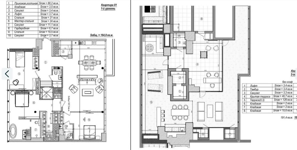
Планировка:
Первый уровень
Кухня-гостиная 68 м²
3 спальни
3 санузла
Гардеробная
Второй уровень
Открытая терраса 126 м²
Закрытая терраса 40 м²
Кладовые помещения
Санузел
Лифт на второй уровень
Террасы и виды:
Пентхаус располагает одной из самых впечатляющих террас в локации — идеальное пространство для отдыха, приёма гостей и наслаждения морским воздухом.
Панорама охватывает море и город, создавая ощущение абсолютной приватности над городом.
Инфраструктура и безопасность:
В доме функционирует подземный паркинг, который может использоваться как укрытие во время воздушных тревог — важное преимущество для комфортного и безопасного проживания.
Локация:
Самая востребованная точка для жизни и инвестиций:
море — пешком
Трасса здоровья
Французский бульвар
Отрада
Ланжерон
Аркадия
Идеальный баланс природы, статуса и городской инфраструктуры.
элитная недвижимость у моря
пентхаус с панорамным видом
двухуровневый пентхаус
пентхаус в клубном доме
недвижимость премиум класса
жилье с террасой у моря
Пентхаус занимает два уровня и предлагает панорамные виды на море и город из всех окон.
Формат недвижимости сочетает приватность, простор и статусный образ жизни в шаговой доступности к лучшим рекреационным зонам города.
Планировка:
Первый уровень
Кухня-гостиная 68 м²
3 спальни
3 санузла
Гардеробная
Второй уровень
Открытая терраса 126 м²
Закрытая терраса 40 м²
Кладовые помещения
Санузел
Лифт на второй уровень
Террасы и виды:
Пентхаус располагает одной из самых впечатляющих террас в локации — идеальное пространство для отдыха, приёма гостей и наслаждения морским воздухом.
Панорама охватывает море и город, создавая ощущение абсолютной приватности над городом.
Инфраструктура и безопасность:
В доме функционирует подземный паркинг, который может использоваться как укрытие во время воздушных тревог — важное преимущество для комфортного и безопасного проживания.
Локация:
Самая востребованная точка для жизни и инвестиций:
море — пешком
Трасса здоровья
Французский бульвар
Отрада
Ланжерон
Аркадия
Идеальный баланс природы, статуса и городской инфраструктуры.
элитная недвижимость у моря
пентхаус с панорамным видом
двухуровневый пентхаус
пентхаус в клубном доме
недвижимость премиум класса
жилье с террасой у моря
ID: 913656832
Зв’язатися з продавцем
xxx xxx xxx
Опубліковано 07 березня 2026 р.
Эксклюзивный пентхаус в клубном доме на Французском бульваре
820 000 $
Договірна
Місцезнаходження
Одеса, Приморський
Одеська область
