Бізнес
Вид об'єкта: Новобудова
Без комісії
Тип будинку: Житловий фонд від 2021 р.
Назва ЖК: Синергія Сіті
Поверх: 9
Рік введення в експлуатацію: 2 026
Поверховість: 9
Загальна площа: 80.25 м²
Тип угоди: Банківський кредит, Від забудовника, Розстрочка від забудовника
Площа кухні: 16.43 м²
Тип стін: Монолітний
Клас житла: Бізнес
Кількість кімнат: 2 кімнати
Планування: Багаторівнева
Cанвузол: 2 і більше
Опалення: Індивідуальне газове
Ремонт: Після будівельників
Комфорт: Відеоспостереження, Ліфт, Пожежна сигналізація, Гостьовий паркінг, Панорамні вікна, Паркувальне місце, Охорона території, Грузовий ліфт, Автономний електрогенератор, Тераса, Гардероб
Комунікації: Асфальтована дорога, Центральна каналізація, Електрика, Вивіз відходів, Газ, Центральний водопровід
Інфраструктура (до 500 метрів): Відділення банку, банкомат, Кінотеатр, театр, Лікарня, поліклініка, Дитячий садок, Ринок, Парк, зелена зона, Дитячий майданчик, Відділення пошти, Ресторан, кафе, Школа, Супермаркет, ТРЦ, Зупинка транспорту
Ландшафт (до 1 км.): Ліс, Парк, Річка
Інклюзивність: Ліфт розміром не менше 1,1х1,4 м., Голосові сповіщення у ліфті, Наявність контрастних маркувань, Вхід в рівень з вулицею, Тактильні смуги на підлозі
Опис
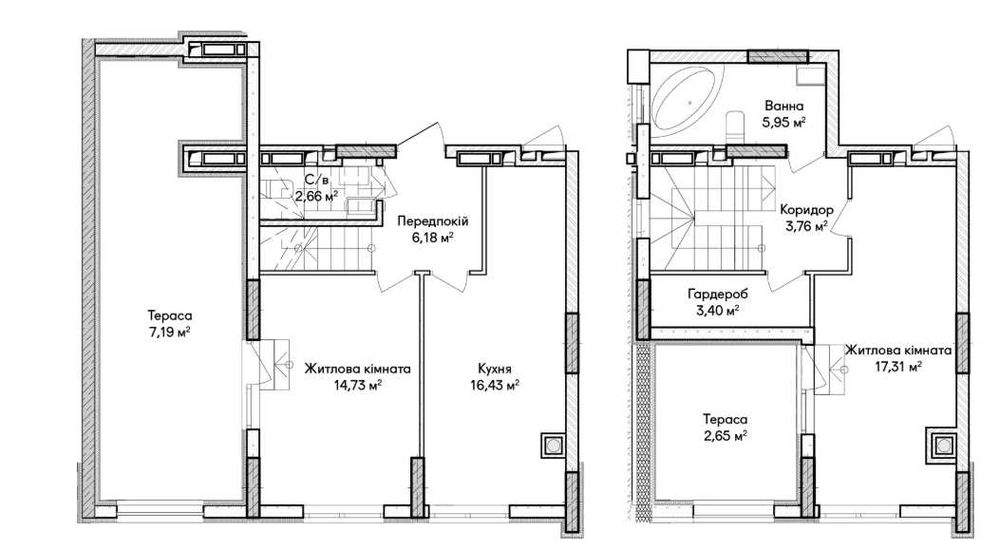
Будинок 35 / Поверх 9 / Квартира 53
Площа — 80.26 м²
Пропонується простора двоповерхова квартира у сучасному ЖК Synergia City — формат, який дарує відчуття власного дому, але з усіма перевагами комфортного комплексу.
Квартира має продумане планування:
• перший рівень — кухня 16.43 м², житлова кімната, санвузол та велика тераса 7.19 м²
• другий рівень — простора спальня 17.31 м², гардероб, ванна кімната та друга тераса 2.65 м²
Такий варіант ідеальний для пари чи сім’ї, яким важливо мати окремі зони відпочинку, робочий простір та можливість облаштувати літню лаунж-зону на власній терасі.
Переваги комплексу:
• безпека — відеонагляд, Face ID, двір без машин
• сучасні дитячі майданчики та Спорт Сіті
• набережна для прогулянок, пробіжок та відпочинку
• кав’ярні, магазини, фітнес-клуб, салони та сервіс поруч
• сформована інфраструктура та затишні зелені зони для мешканців
Квартира доступна до продажу. Телефонуйте — надамо деталі
3 8 0 9 3 1 7 0 7 7 0 7
Зв’язатися з продавцем
xxx xxx xxx

