Бізнес
Без комісії
Відстань до найближчого міста: У місті
Поверховість: 2
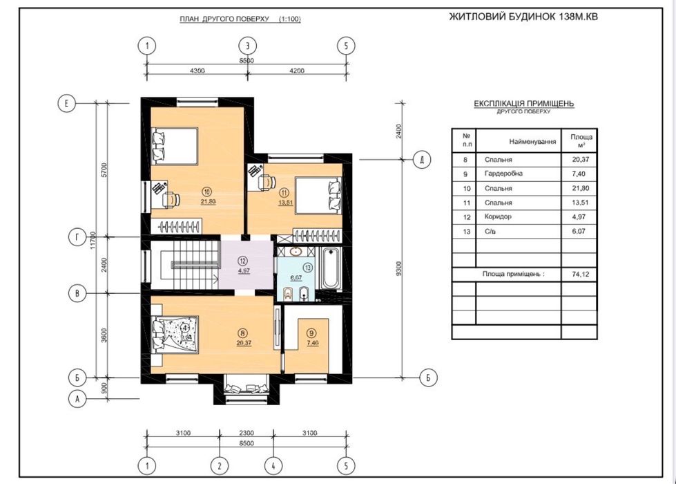
Загальна площа: 160 м²
Кількість кімнат: 4
Площа ділянки: 8 соток
Тип будинку: Будинок
Тип стін: Цегляний
Зовнішнє утеплення стін: Мінеральна вата
Тип покрівлі: Черепиця (керамічна)
Cанвузол: 2 і більше
Опалення: Індивідуальне газове
Ремонт: Після будівельників
Меблювання: Ні
Комфорт: Сигналізація, Автоматичні ворота, Тераса, Балкон, Відеоспостереження, Огорожа, Підсобні приміщення, Охорона території, Автонавіс
Комунікації: Газ, Електрика, Каналізація септик, Вивіз відходів, Асфальтована дорога, Центральний водопровід
Інфраструктура (до 500 метрів): Ресторан, кафе, Дитячий садок, Школа, Ринок, Центр міста, Магазин, кіоск, Парк, зелена зона, Аптека, Дитячий майданчик, Супермаркет, ТРЦ, Лікарня, поліклініка
Ландшафт (до 1 км.): Ліс, Парк, Озеро
Опис
Закрита територія, в'їзд через шлагбаум.
Вдале місце розташування, в оточенні лісу та Центрального Бучанського парку 42 Га.
Площа котеджу: 160 м2 + критий навіс під два автомобілі.
Ділянка: 8 соток ( правильної форми з соснами )
комфорт
вишуканий стиль
затишок
безпека
якість
надійність
Конструкція будинку.
Фундамент:
- стрічковий фундамент (100 на 30, два ряди ФБС, виробник Ковальська);
- гідроезоляція фундаменту (техноніколь мікро еласт);
- цоколь облицювальний камінь, виробник Ямпіль;
- цегла червона повнотіла, виробник Корсунь;
- фасад облицювальна плитка бельгійська ручного формування;
- архітектурні елементи (фасад декор);
- Утеплення базальтова вата 100 мм, щільність 150, виробник Parok LINIO 15;
Дах:
- брус оброблений вогне-біо захист, виробник Страж;
- черепиця цементно-піщана, виробник Braas, модель Франкфурт;
- Утеплення по стелі, базальтова вата 250 мм, щільність 35, виробник Beltep;
- гідробар'єр супердифізіонна мембрана 160 щільність, виробник Juta;
- парабар'єр плівка Strotex 110 щільність;
- підшив дерево та метал, щільність 0,5, виробник Ruukki;
- водосток метал, виробник Flamingo;
Будинок:
- Сходи бетонні;
- Вікна, виробник Rehau Geneo;
- Двері виробник Rehau Geneo;
- фурнітура Sigenia;
- перекриття бетонки виробництва Ковальської;
Комунікація:
- Електрика 16 кВт
- газ;
- водопостачання- міське.
- каналізація септик (переливні три резерви два відстійники і один дренаж) Об'єм 9 куб, по два кільця, діаметр 1,5.
Прибудинкова:
- паркан кований на бетонній основі з колонами з облицювальною плиткою (як на візуалізації);
- фемка (парко місце та навколо будинку);
- озеленення (чорнозем).
Додаткова інформації та запис на перегляд за телефоном
06*********22
Зв’язатися з продавцем
xxx xxx xxx

