Бізнес
Відстань до найближчого міста: до 5 км.
Тип об'єкта: Інше
Поверх: 2
Поверховість: 2
Загальна площа: 1 123 м²
Cанвузол: Так
Опалення: Інше
Ремонт: Ні
Комфорт: Гараж, Підземний паркінг, Паркувальне місце, Охорона території, Госп. приміщення, комора
Тип: Інший
Комунікації: Асфальтована дорога, Електрика, Вивіз відходів, Газ, Каналізація септик, Скважина
Інфраструктура (до 500 метрів): Шосе, траса, Стоянка, парковка, гараж, Транспортна розв'язка
Опис
Чудова пропозиція для інвестування
Продається готова будівля з великою ділянкою – ідеальне місце для ресторану, готелю, приватної клініки чи іншого бізнесу!(Колишній готельно-ресторанний комплекс Беркут)
Локація: Львівська область, Дрогобицький район, с. Почаєвичі, вул. Ігора Білозіра, 24
Цільове призначення: Землі під соціально-культурні об’єкти
Площа ділянки: 0.5335 га
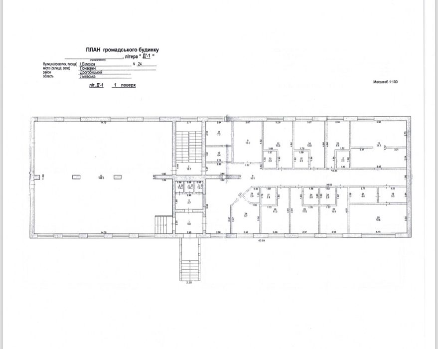
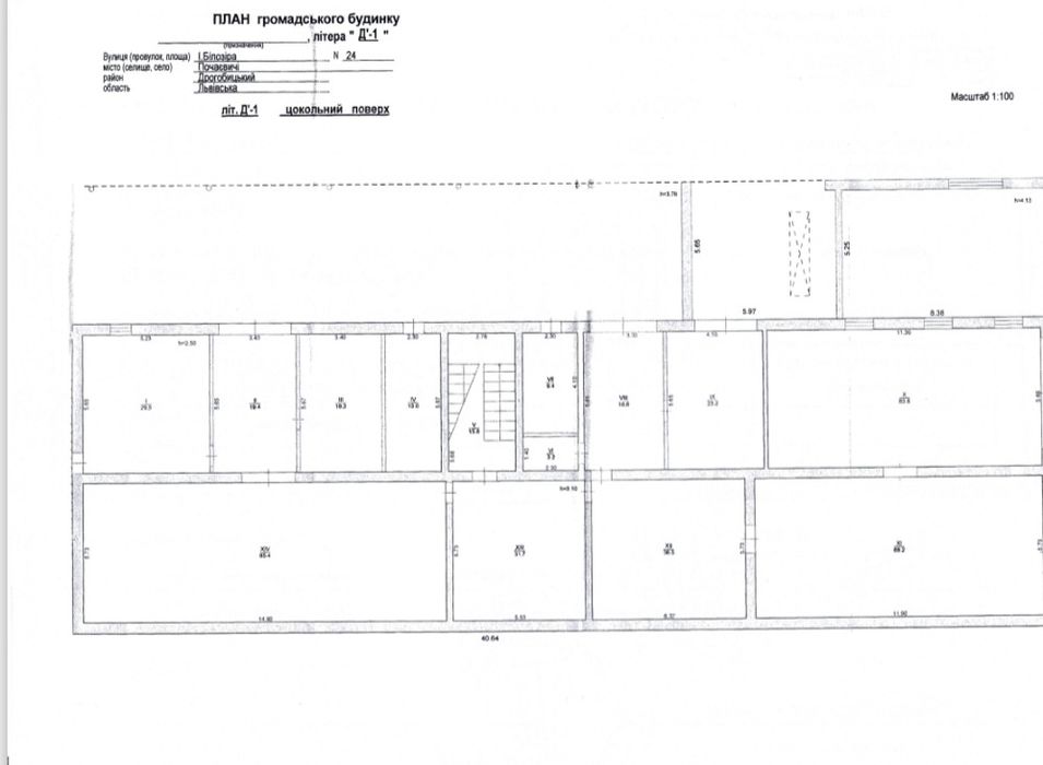
Площа будівлі: понад 1123м² (цоколь, 1-й пов.)
Переваги об'єкта:
Велика земельна ділянка з чітко оформленими межами – простір для тераси, парковки, зеленої зони, літнього майданчику чи прибудов.
Цегляна з зручним плануванням – понад 20 кімнат, великі приміщення під кухню, зал, санвузли,складські приміщення,підвал.
Гарна транспортна розв’язка(траса Львів-Дрогобич-Трускавець) асфальтований під’їзд,
Документи в порядку, проведене межування, об'єкт приватизований
Інвестиційний потенціал:
Велика площа дозволяє реалізувати будь-який проект – від хостелу до агротуризму
комунікації:газ,вода,світло,каналізація.
Об’єкт з потенціалом розвитку: навколо – зелена зона, зручна інфраструктура
Ціна: договірна – вигідна пропозиція для підприємців та інвесторів!
Також є можливісь викупити прилеглу територію з офісними площею 288 кв.м приміщеннями і ангаром площею 680 кв.м з великою територією.
Телефон для деталей: 09******30
Пишіть у приват або телефонуйте – домовимось про перегляд!
Продається готова будівля з великою ділянкою – ідеальне місце для ресторану, готелю, приватної клініки чи іншого бізнесу!(Колишній готельно-ресторанний комплекс Беркут)
Локація: Львівська область, Дрогобицький район, с. Почаєвичі, вул. Ігора Білозіра, 24
Цільове призначення: Землі під соціально-культурні об’єкти
Площа ділянки: 0.5335 га
Площа будівлі: понад 1123м² (цоколь, 1-й пов.)
Переваги об'єкта:
Велика земельна ділянка з чітко оформленими межами – простір для тераси, парковки, зеленої зони, літнього майданчику чи прибудов.
Цегляна з зручним плануванням – понад 20 кімнат, великі приміщення під кухню, зал, санвузли,складські приміщення,підвал.
Гарна транспортна розв’язка(траса Львів-Дрогобич-Трускавець) асфальтований під’їзд,
Документи в порядку, проведене межування, об'єкт приватизований
Інвестиційний потенціал:
Велика площа дозволяє реалізувати будь-який проект – від хостелу до агротуризму
комунікації:газ,вода,світло,каналізація.
Об’єкт з потенціалом розвитку: навколо – зелена зона, зручна інфраструктура
Ціна: договірна – вигідна пропозиція для підприємців та інвесторів!
Також є можливісь викупити прилеглу територію з офісними площею 288 кв.м приміщеннями і ангаром площею 680 кв.м з великою територією.
Телефон для деталей: 09******30
Пишіть у приват або телефонуйте – домовимось про перегляд!
ID: 884360461
Зв’язатися з продавцем
xxx xxx xxx
Опубліковано 24 грудня 2025 р.
Чудова пропозиція продажі готельно-ресторанного комплексу
130 000 $
Місцезнаходження
Дрогобич
Львівська область