Бізнес
Опис
KRESLYAR - мастерская чертежей на заказ.
Выполняем чертежи в AutoCad, ArhiCad и в ручную на бумаге любого формата.
Основные направления работ которые мы выполняем:
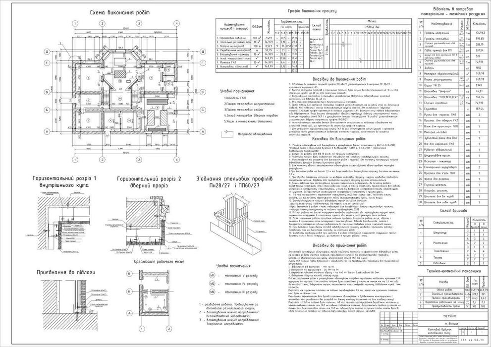
-Строительные чертежи: планы, разрезы, фасады, архитектура, ОРБК, ТСП, ТОСП, геологический разрез, техкарты и прочее.
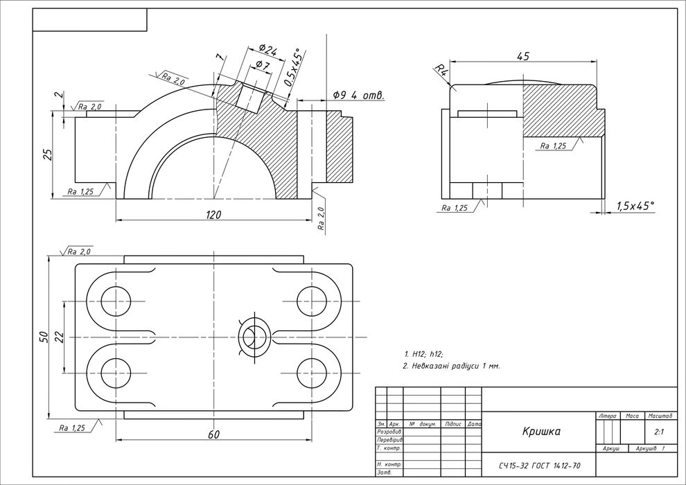
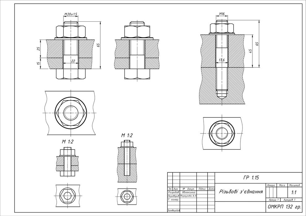
-Чертежи деталей: три вида, аксонометрия, изометрия, сборочный чертеж и другие.
-Инженерная графика: геометрическое черчение, проекционное, машиностроительное, элементы строительного черчения.
Помимо основных направлений, выполняем многое другое (перечертить с фото или пдф, лабораторные, контрольные работы по AutoCad, доделать/переделать чертежи и прочее.)
Для более детального ознакомления с примерами работ и отзывами переходите на наш сайт kreslyar.com.ua
Работаем по всей стране, готовые работы присылаем в электронном виде или по почте
Для заказа работы пишите в телеграм - k_kreslyar, или в вайбер по номеру телефона указаного в объявлении
На олх сообщение можем не ответить, так как заходим редко
Выполняем чертежи в AutoCad, ArhiCad и в ручную на бумаге любого формата.
Основные направления работ которые мы выполняем:
-Строительные чертежи: планы, разрезы, фасады, архитектура, ОРБК, ТСП, ТОСП, геологический разрез, техкарты и прочее.
-Чертежи деталей: три вида, аксонометрия, изометрия, сборочный чертеж и другие.
-Инженерная графика: геометрическое черчение, проекционное, машиностроительное, элементы строительного черчения.
Помимо основных направлений, выполняем многое другое (перечертить с фото или пдф, лабораторные, контрольные работы по AutoCad, доделать/переделать чертежи и прочее.)
Для более детального ознакомления с примерами работ и отзывами переходите на наш сайт kreslyar.com.ua
Работаем по всей стране, готовые работы присылаем в электронном виде или по почте
Для заказа работы пишите в телеграм - k_kreslyar, или в вайбер по номеру телефона указаного в объявлении
На олх сообщение можем не ответить, так как заходим редко
ID: 862780920
Зв’язатися з продавцем
xxx xxx xxx
Опубліковано 23 листопада 2025 р.
Чертежи под заказ
Місцезнаходження