Бізнес
Без комісії
Поверховість: 1
Загальна площа: 120 м²
Кількість кімнат: 4
Площа ділянки: 9 соток
Тип будинку: Будинок
Тип стін: Цегляний
Опалення: Індивідуальне газове
Ремонт: Після будівельників
Меблювання: Ні
Комунікації: Центральна каналізація, Електрика, Газ, Центральний водопровід
Інфраструктура (до 500 метрів): Аптека, Магазин, кіоск, Зупинка транспорту
Опис
Пропонується для продажу сучасний будинок, що знаходиться на етапі будівництва в селі Боратин. Це ідеальний варіант для тих, хто хоче отримати комфортне житло, з можливістю внести власні корективи в планування та оздоблення.
Код- #28801833
Основні характеристики:
Забудовник: Надійний, перевірений часом.
Матеріали: Будинок побудований з якісної цегли.
Площа землі: 9 сотих, ділянка повністю огороджена.
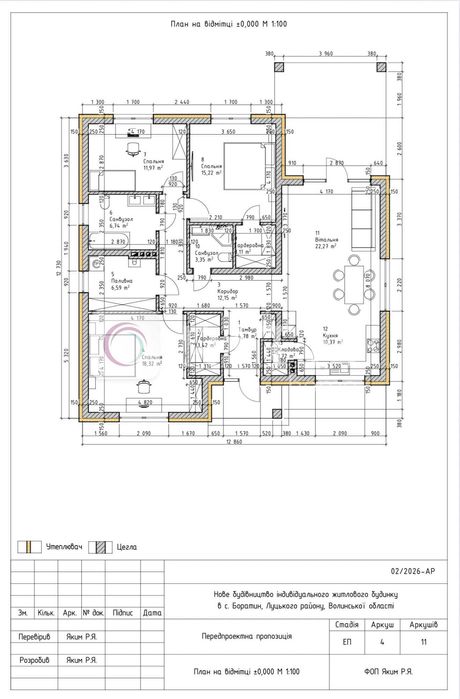
Площа будинку: 120 м² (загальна площа).
Інженерія: Заведено газ, індивідуальне газове опалення (встановлений котел).
Утеплення: Тепла підлога по периметру будинку, утеплення пінопластом (15 см), дах утеплений мінватою (20 см).
Септик: Переливний септик на 18 кубів.
Електрика: Розведена по всьому будинку.
Інфраструктура: Асфальтований доїзд до будинку.
Планування:
Кухня-вітальня: Простора кухня-вітальня площею 33 м² з виходом на терасу.
Спальні кімнати: 3 спальні кімнати:
Спальня 1 — 15.22 м²
Спальня 2 — 18.32 м²
Спальня 3 — 11.97 м²
Санвузли: 2 санвузли.
Гардеробні: 2 гардеробних кімнати.
Додаткові приміщення: Кладова на кухні, паливна кімната.
Чому варто купувати на етапі будівництва?
Це вигідно! Ви маєте можливість внести свої корективи в інтер'єр, планування та навіть оздоблення, щоб створити будинок, який повністю відповідатиме вашим вимогам і смакам.
Не пропустіть шанс стати власником сучасного, якісно побудованого житла в Боратині!
Код- #28801833
Основні характеристики:
Забудовник: Надійний, перевірений часом.
Матеріали: Будинок побудований з якісної цегли.
Площа землі: 9 сотих, ділянка повністю огороджена.
Площа будинку: 120 м² (загальна площа).
Інженерія: Заведено газ, індивідуальне газове опалення (встановлений котел).
Утеплення: Тепла підлога по периметру будинку, утеплення пінопластом (15 см), дах утеплений мінватою (20 см).
Септик: Переливний септик на 18 кубів.
Електрика: Розведена по всьому будинку.
Інфраструктура: Асфальтований доїзд до будинку.
Планування:
Кухня-вітальня: Простора кухня-вітальня площею 33 м² з виходом на терасу.
Спальні кімнати: 3 спальні кімнати:
Спальня 1 — 15.22 м²
Спальня 2 — 18.32 м²
Спальня 3 — 11.97 м²
Санвузли: 2 санвузли.
Гардеробні: 2 гардеробних кімнати.
Додаткові приміщення: Кладова на кухні, паливна кімната.
Чому варто купувати на етапі будівництва?
Це вигідно! Ви маєте можливість внести свої корективи в інтер'єр, планування та навіть оздоблення, щоб створити будинок, який повністю відповідатиме вашим вимогам і смакам.
Не пропустіть шанс стати власником сучасного, якісно побудованого житла в Боратині!
ID: 914758548
Зв’язатися з продавцем
xxx xxx xxx

