Бізнес
Продаж від забудовника
Відстань до найближчого міста: У місті
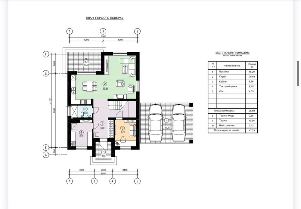
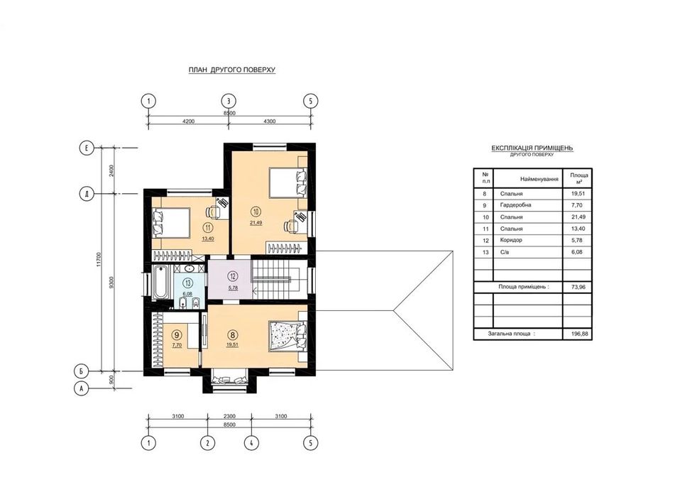
Поверховість: 2
Загальна площа: 197 м²
Кількість кімнат: 4
Площа ділянки: 8 соток
Тип будинку: Будинок
Рік побудови / здачі: Після 2015
Тип стін: Цегляний
Зовнішнє утеплення стін: Мінеральна вата
Тип покрівлі: Черепиця (керамічна)
Cанвузол: 2 і більше
Опалення: Індивідуальне газове
Ремонт: Після будівельників
Меблювання: Ні
Комфорт: Підсобні приміщення, Огорожа, Камін, Охорона території, Тераса
Комунікації: Асфальтована дорога, Електрика, Вивіз відходів, Газ, Каналізація септик, Центральний водопровід
Інфраструктура (до 500 метрів): Відділення банку, банкомат, Автовокзал, Кінотеатр, театр, Центр міста, Аптека, Лікарня, поліклініка, Дитячий садок, Ринок, Метро, Парк, зелена зона, Дитячий майданчик, Відділення пошти, Залізнична станція, Ресторан, кафе, Школа, Магазин, кіоск, Супермаркет, ТРЦ, Зупинка транспорту
Ландшафт (до 1 км.): Ліс, Парк
Опис
Ідеальний варіант для комфортного та безпечного життя поруч із природою.
Планування:
• простора кухня-студія з вітальнею
• вихід на терасу
• 4 окремі спальні
• 2 ванні кімнати
• навіс для 2 авто
• підготовлений вихід під камін
Характеристики будинку:
• стрічковий фундамент з гідроізоляцією Техноніколь
• цоколь з натурального каменю
• стіни — повнотіла цегла 38 см + утеплення базальтовою ватою PAROC
• фасад — бельгійська клінкерна плитка ручного формування
• дах — цементно-піщана черепиця BRAAS, утеплений
• дерев’яний підшив даху
• якісна металева водостічна система
• вікна REHAU (енергоефективні)
• перекриття — пустотні залізобетонні плити
• сходи — бетонні
Комунікації:
• електрика — 13 кВт, 3 фази
• газ (котел Vaillant)
• міське водопостачання
• автономна каналізація
Територія:
• кований паркан на бетонній основі
• колони з клінкерної цегли Wienerberger
• бруківка «Золотий Мандарин»
• завезений родючий чорнозем
Будинок збудований з дотриманням усіх норм та стандартів — якісне капітальне будівництво в одному з найкращих передмість Києва.
Телефонуйте для детальної інформації та перегляду.
Зв’язатися з продавцем
xxx xxx xxx

