Бізнес
Поверховість: 2
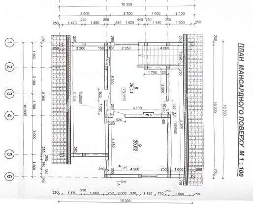
Загальна площа: 126 м²
Кількість кімнат: 4
Площа ділянки: 0.25 соток
Тип будинку: Будинок
Cанвузол: Суміжний
Опис
Прекрасне місце для усамітнення, відпочинку та ведення власної справи.
Хороше розташування, поруч магазини, салон краси, навчальні заклади (поруч дорога Т-26-03)
Опис:
- площа будинку - 126 м2;
- житлова площа - 54 м2;
- площа ділянки - 25 соток з них:
- 8 - під будівництво та обслуговування та 17- під с/г призначення;
- матеріал будинку - цегла;
- 2 поверхи (2й мансарда);
- дах - металочерепиця (утеплено);
- металопластикові вікна;
- газові комунікації наявні (25м);
- електроенергія (25м);
- вода (колодязь 20м);
- є підвал (до 11 м2);
- у дворі септик (бетонні кільця);
- побудовано 2023 р (53% готовності);
- на території є бесідка;
- є фруктовий сад.
Загальний стан - від забудовника!
Зроблені чорнові штукатурки, розведені електричні комунікації, утеплений дах (мінвата, плівка та ОСБІ).
Всі комунікації поруч до 30 метрів.
продаж без податку
Ціна доступна, телефонуйте та уточняйте деталі!
Код об'єкта: d108`355078`17. АН "Атланта".
Більше інформації та світлин за посиланням: https://www.atlanta.ua/chernovtsy/object/tip-doma-dom/355078
Хороше розташування, поруч магазини, салон краси, навчальні заклади (поруч дорога Т-26-03)
Опис:
- площа будинку - 126 м2;
- житлова площа - 54 м2;
- площа ділянки - 25 соток з них:
- 8 - під будівництво та обслуговування та 17- під с/г призначення;
- матеріал будинку - цегла;
- 2 поверхи (2й мансарда);
- дах - металочерепиця (утеплено);
- металопластикові вікна;
- газові комунікації наявні (25м);
- електроенергія (25м);
- вода (колодязь 20м);
- є підвал (до 11 м2);
- у дворі септик (бетонні кільця);
- побудовано 2023 р (53% готовності);
- на території є бесідка;
- є фруктовий сад.
Загальний стан - від забудовника!
Зроблені чорнові штукатурки, розведені електричні комунікації, утеплений дах (мінвата, плівка та ОСБІ).
Всі комунікації поруч до 30 метрів.
продаж без податку
Ціна доступна, телефонуйте та уточняйте деталі!
Код об'єкта: d108`355078`17. АН "Атланта".
Більше інформації та світлин за посиланням: https://www.atlanta.ua/chernovtsy/object/tip-doma-dom/355078
ID: 910187871
Зв’язатися з продавцем
xxx xxx xxx

