Бізнес
Продаж від забудовника
Відстань до найближчого міста: до 5 км.
Поверховість: 1
Загальна площа: 125 м²
Кількість кімнат: 4
Площа ділянки: 7 соток
Тип будинку: Будинок
Рік побудови / здачі: На етапі будівництва
Тип стін: Цегляний
Зовнішнє утеплення стін: Пінопласт
Тип покрівлі: Металочерепиця
Cанвузол: 2 і більше
Опалення: Індивідуальне електро
Меблювання: Ні
Опис
Пропонується до продажу будинок на стадії будівництва!
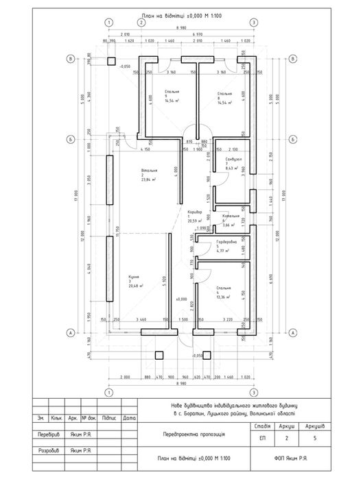
Площа будинку: 125 кв
Земельна ділянка: 7 соток
Локація: центральна вулиця ( Набережна) асфальтований доіз
Планування:
• 3 просторі спальні
• 2 санвузли
• гардеробна кімната
• кухня-вітальня з виходом на терасу
• підсобне приміщення
• невелика тераса для ранкової кави
Комунікації:
• міське світло
• скважина
• септик з переливом
• по вулиці газ
Будівельні роботи які входитимуть у вартість
• стіни поштукатурені
• зроблена електророзводка
• оздоблений фасад, утеплений пінопластом 15 см. Нанесений «бараник»
• дах накритий металочерепицею
Площа будинку: 125 кв
Земельна ділянка: 7 соток
Локація: центральна вулиця ( Набережна) асфальтований доіз
Планування:
• 3 просторі спальні
• 2 санвузли
• гардеробна кімната
• кухня-вітальня з виходом на терасу
• підсобне приміщення
• невелика тераса для ранкової кави
Комунікації:
• міське світло
• скважина
• септик з переливом
• по вулиці газ
Будівельні роботи які входитимуть у вартість
• стіни поштукатурені
• зроблена електророзводка
• оздоблений фасад, утеплений пінопластом 15 см. Нанесений «бараник»
• дах накритий металочерепицею
ID: 906287195
Зв’язатися з продавцем
xxx xxx xxx
Опубліковано 16 березня 2026 р.
Будинок ТОП локація Тарасове стадія будівництва
110 000 $
Договірна
Місцезнаходження
Тарасове
Волинська область
