Бізнес
Опис
Атмосфера деревʼяного будинку буде завжди приносити вам радість, приємну прохолоду в літню спеку та затишне тепло в зимову пору.
wonder-wood.com.ua/projects
ДЕРЕВʼЯНИЙ БУДИНОК зі ЗРУБУ на 1 поверх з високоякісного, екологічно чистого матеріалу – КАРПАТСЬКОЇ СМЕРЕКИ, яка має світлу деревину та надзвичайну міцність. Будівництво на замовлення.
ДІАМЕТР оциліндрованого брусу від 200 мм (220, 240), що є достатнім для круглорічної експлуатації будинку в кліматичних умовах України і Європи, адже такий брус відповідає 1000мм цегляної стіни і захищає приміщення від промерзання до -45°С.
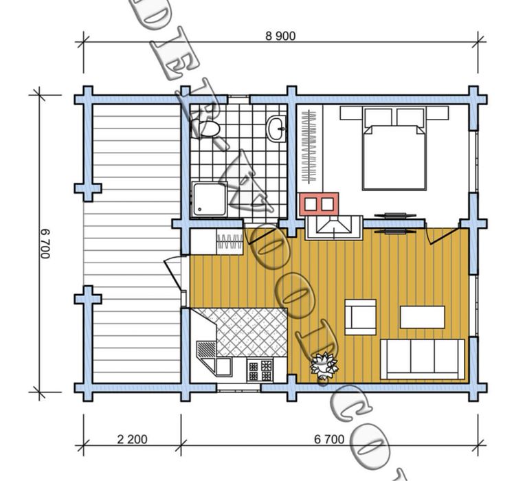
У будинку – кімната відпочинку з кухнею, спальня, ванна кімната, тераса.
ПЕРЕВАГОЮ такого будинку є якісно оброблена, шліфована ззовні і зсередини поверхня стін, яка не потребує додаткових облицювальних робіт – на відміну від цегляних будинків, де стіни потрібно штукатурити, шпаклювати, утепляти і тд.
wonder-wood.com.ua/projects
КОМПЛЕКТАЦІЇ:
"СТАНДАРТ» – ВІД 18.600 $:
КОРОБКА + ДАХ + ВОДОСТІЧНА СИСТЕМА + ЗОВНІШНЄ ФАБУВАННЯ.
- Підписання Договору.
- ескізний проект і 3-D модель.
- монтаж обвʼязочного брусу обробленого пігментним антисептиком Pinotex.
- монтаж стін з використанням букових нагелів для міцності конструкції.
- міжповерхове перекриття.
- обробка брусу антисептиком Remmers.
- утеплювач між брусом - полоса натурального льону.
- підготовлені проєми вікон/дверей.
- торцювання стін.
- стропильна система даху + обрешітка.
- монтаж повного комплекту дахового покриття (колір RAL на вибір):
металочерепиця 0,5 мм матова, снігозатримувачі та водосточна система.
- шліфовані стропила випусків даху.
- декоративна підшивка тераси та випусків даху дерев‘яною вагонкою 90 мм.
- фінішне фарбування зовнішніх стін в 2 шари Remmers (Німеччина), колір на вибір.
"ПІД КЛЮЧ" – ВІД 37.875 $:
ВІКНА + ДВЕРІ + ПІДЛОГА + СТЕЛЯ + ЕЛЕКТРИКА + ВОДА + ВНУТРІШНЄ ФАРБУВАННЯ.
Вікна: металопластикові Rehau / Salamander (деревʼяні – додатково), 5-ти камерний профіль, енергоефективні подвійні склопакети, аргон, двостороння ламінація, фурнітура Siegenia Німеччина.
– Вхідні та міжкімнатні двері.
– Комплект налічників на вікна / двері.
– Утеплення даху / перекриття / підлоги мінеральною базальтовою ватою, щільнісь 30 кг/м3.
– Монтаж фольгованої пароізоляційної мемебрани Strotex AL (Польща).
– Стеля: масивна натуральна дерев'яна вагонка 90 мм.
– Підлога: масивна натуральна деревʼяна дошка (паркетна дошка, плитка – додатково).
– Розводка точок електропостачання по будинку.
– Розводка точок водопостачання по будинку.
– Укладка герметика "теплий шов" Remmers – додатково.
– Фінішне фарбування внутрішніх стін захисним лакофарбовим покриттям Remmers (Німеччина) в 2 шари, колір на вибір.
Варіанти брусу:
- кругли оциліндрований діаметром 200, 220, 240 мм.
- прямокутний профільований брус товщиною 160, 190 мм.
- клеєний товщиною 200 мм.
Більше інформації в інших оголошеннях автора.
wonder-wood.com.ua/projects
wonder-wood.com.ua/projects
ДЕРЕВʼЯНИЙ БУДИНОК зі ЗРУБУ на 1 поверх з високоякісного, екологічно чистого матеріалу – КАРПАТСЬКОЇ СМЕРЕКИ, яка має світлу деревину та надзвичайну міцність. Будівництво на замовлення.
ДІАМЕТР оциліндрованого брусу від 200 мм (220, 240), що є достатнім для круглорічної експлуатації будинку в кліматичних умовах України і Європи, адже такий брус відповідає 1000мм цегляної стіни і захищає приміщення від промерзання до -45°С.
У будинку – кімната відпочинку з кухнею, спальня, ванна кімната, тераса.
ПЕРЕВАГОЮ такого будинку є якісно оброблена, шліфована ззовні і зсередини поверхня стін, яка не потребує додаткових облицювальних робіт – на відміну від цегляних будинків, де стіни потрібно штукатурити, шпаклювати, утепляти і тд.
wonder-wood.com.ua/projects
КОМПЛЕКТАЦІЇ:
"СТАНДАРТ» – ВІД 18.600 $:
КОРОБКА + ДАХ + ВОДОСТІЧНА СИСТЕМА + ЗОВНІШНЄ ФАБУВАННЯ.
- Підписання Договору.
- ескізний проект і 3-D модель.
- монтаж обвʼязочного брусу обробленого пігментним антисептиком Pinotex.
- монтаж стін з використанням букових нагелів для міцності конструкції.
- міжповерхове перекриття.
- обробка брусу антисептиком Remmers.
- утеплювач між брусом - полоса натурального льону.
- підготовлені проєми вікон/дверей.
- торцювання стін.
- стропильна система даху + обрешітка.
- монтаж повного комплекту дахового покриття (колір RAL на вибір):
металочерепиця 0,5 мм матова, снігозатримувачі та водосточна система.
- шліфовані стропила випусків даху.
- декоративна підшивка тераси та випусків даху дерев‘яною вагонкою 90 мм.
- фінішне фарбування зовнішніх стін в 2 шари Remmers (Німеччина), колір на вибір.
"ПІД КЛЮЧ" – ВІД 37.875 $:
ВІКНА + ДВЕРІ + ПІДЛОГА + СТЕЛЯ + ЕЛЕКТРИКА + ВОДА + ВНУТРІШНЄ ФАРБУВАННЯ.
Вікна: металопластикові Rehau / Salamander (деревʼяні – додатково), 5-ти камерний профіль, енергоефективні подвійні склопакети, аргон, двостороння ламінація, фурнітура Siegenia Німеччина.
– Вхідні та міжкімнатні двері.
– Комплект налічників на вікна / двері.
– Утеплення даху / перекриття / підлоги мінеральною базальтовою ватою, щільнісь 30 кг/м3.
– Монтаж фольгованої пароізоляційної мемебрани Strotex AL (Польща).
– Стеля: масивна натуральна дерев'яна вагонка 90 мм.
– Підлога: масивна натуральна деревʼяна дошка (паркетна дошка, плитка – додатково).
– Розводка точок електропостачання по будинку.
– Розводка точок водопостачання по будинку.
– Укладка герметика "теплий шов" Remmers – додатково.
– Фінішне фарбування внутрішніх стін захисним лакофарбовим покриттям Remmers (Німеччина) в 2 шари, колір на вибір.
Варіанти брусу:
- кругли оциліндрований діаметром 200, 220, 240 мм.
- прямокутний профільований брус товщиною 160, 190 мм.
- клеєний товщиною 200 мм.
Більше інформації в інших оголошеннях автора.
wonder-wood.com.ua/projects
ID: 424146244
Зв’язатися з продавцем
xxx xxx xxx
Опубліковано 09 листопада 2025 р.
Будинок, дача 60м2 від 18.600 $. Дерево смерека, брус. 2 комплектації
18 600 $
Місцезнаходження