Бізнес
Продаж від забудовника
Без комісії
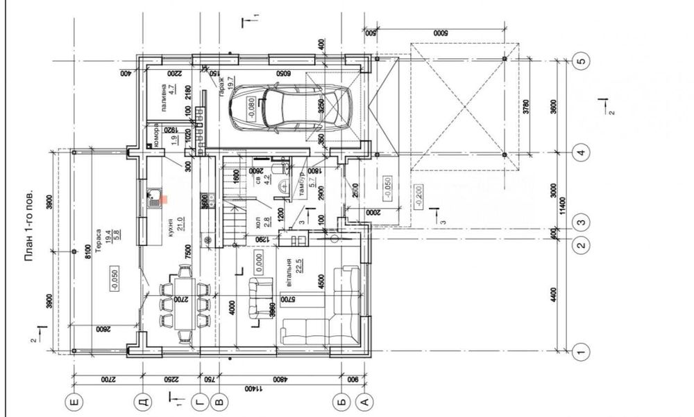
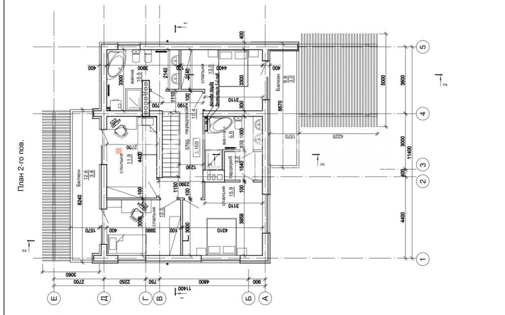
Поверховість: 2
Загальна площа: 150 м²
Кількість кімнат: 4
Площа ділянки: 5 соток
Тип будинку: Будинок
Тип стін: Газоблок
Зовнішнє утеплення стін: Пінопласт
Cанвузол: 2 і більше
Ремонт: Під чистову обробку
Комфорт: Підсобні приміщення, Автоматичні ворота, Балкон, Цоколь, підвал, Огорожа, Гараж, Тераса
Комунікації: Асфальтована дорога, Електрика, Вивіз відходів, Газ, Каналізація септик, Свердловина
Інфраструктура (до 500 метрів): Аптека, Дитячий садок, Дитячий майданчик, Відділення пошти, Школа, Магазин, кіоск, Супермаркет, ТРЦ, Зупинка транспорту
Ландшафт (до 1 км.): Ліс
Опис
Продаж нового якісного будинку в передмісті Києва!
Будинок поєднує сучасний дизайн, функціональне планування та комфорт для всієї родини.
Площа будинку - 150 м2, ділянка - 5 соток
Основні характеристики:
• Два повноцінні поверхи з продуманим розташуванням кімнат.
• Простора вітальня з великими панорамними вікнами та виходом на терасу.
• Кухня-їдальня з можливістю зонування.
• Чотири спальні, три з яких з виходом на балкон.
• Два санвузли (на кожному поверсі).
• Гараж з окремим входом до будинку, тех.приміщення та велике підвальне приміщення.
• Сучасний фасад у стриманому стилі.
Стан будинку:
• Всі комунікації підведені: 17 кВт електрики, свердловина, септик переливний, газ.
• Виконано чистове оздоблення з розведенням комунікацій – ви зможете облаштувати інтер’єр відповідно до власного смаку.
Зручний під’їзд, асфальтована дорога.
Локація та інфраструктура:
• Будинок розташований у тихому та затишному районі, де поєднується свіже повітря та комфорт міської інфраструктури.
• Поруч знаходяться магазини та супермаркети, школа та дитячий садок, аптека, громадський транспорт, що забезпечує швидке сполучення з містом.
Це чудовий варіант для тих, хто хоче жити у власному будинку, але не втрачати зручностей міського життя.
За додатковою інформацією, тетефонуйте!
Перегляд в зручний для Вас час!
Будинок поєднує сучасний дизайн, функціональне планування та комфорт для всієї родини.
Площа будинку - 150 м2, ділянка - 5 соток
Основні характеристики:
• Два повноцінні поверхи з продуманим розташуванням кімнат.
• Простора вітальня з великими панорамними вікнами та виходом на терасу.
• Кухня-їдальня з можливістю зонування.
• Чотири спальні, три з яких з виходом на балкон.
• Два санвузли (на кожному поверсі).
• Гараж з окремим входом до будинку, тех.приміщення та велике підвальне приміщення.
• Сучасний фасад у стриманому стилі.
Стан будинку:
• Всі комунікації підведені: 17 кВт електрики, свердловина, септик переливний, газ.
• Виконано чистове оздоблення з розведенням комунікацій – ви зможете облаштувати інтер’єр відповідно до власного смаку.
Зручний під’їзд, асфальтована дорога.
Локація та інфраструктура:
• Будинок розташований у тихому та затишному районі, де поєднується свіже повітря та комфорт міської інфраструктури.
• Поруч знаходяться магазини та супермаркети, школа та дитячий садок, аптека, громадський транспорт, що забезпечує швидке сполучення з містом.
Це чудовий варіант для тих, хто хоче жити у власному будинку, але не втрачати зручностей міського життя.
За додатковою інформацією, тетефонуйте!
Перегляд в зручний для Вас час!
ID: 902640334
Зв’язатися з продавцем
xxx xxx xxx

