Бізнес
Продаж від забудовника
Без комісії
Відстань до найближчого міста: до 5 км.
Поверховість: 2
Загальна площа: 105 м²
Кількість кімнат: 4
Площа ділянки: 2 соток
Тип будинку: Дуплекс
Тип стін: Газоблок
Зовнішнє утеплення стін: Пінопласт
Тип покрівлі: Металочерепиця
Cанвузол: 2 і більше
Опалення: Індивідуальне електро
Ремонт: Після будівельників
Меблювання: Ні
Комфорт: Балкон, Тераса, Огорожа, Автоматичні ворота
Комунікації: Свердловина, Електрика, Каналізація септик, Вивіз відходів, Асфальтована дорога
Інфраструктура (до 500 метрів): Дитячий садок, Школа, Зупинка транспорту, Магазин, кіоск, Супермаркет, ТРЦ, Аптека, Відділення пошти, Відділення банку, банкомат
Ландшафт (до 1 км.): Озеро, Ліс
Опис
Продам в затишному місці дуплекс 128м² в с. Гатне, ділянка - 2.8сот
Будинок, побудований з газоблоку, утеплений пінопластом 100мм.
Фасад - декоративна штукатурка, монолітне перекриття та сходи, другий поверх - утеплений мінватою 200мм.
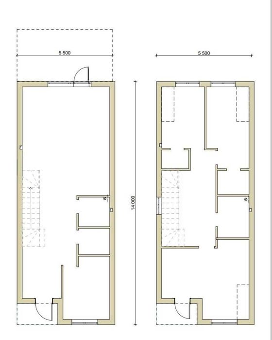
планування:
1 поверх
- При вході зручне місце під гардероб верхнього одягу
- Гостьовий санвузол з місцем під душову
- Гардеробна кімната
- Гостьова кімната або кабінет
- Простора кухня вітальня з виходом на терасу
2 поверх
- Хол
- Основна спальня з виходом на балкон
- Ванна кімната
- Дитяча кімната №1
- Дитяча кімната №2
Комунікації - газ, електрика,
каналізація (септик з переливом).
Водопостачання - власна свердловина.
Відкатні ворота.
Інфраструктура максимально розвинена, адже дуплекси знаходяться у центрі села, де поруч усе необхідне.- Центральна частина Гатного, поряд з сільською радою!
- Поряд зупинка громадського транспорту, магазини, школа, дитячий садочок!
- Зручне сполучення з києвом (Виїзд можливий одразу на Одеську трасу, або через Крюківщину на Кільцеву дорогу)!
Телефонуйте! Ми завжди раді Вам допомогти! Ми надаємо повний спектр послуг з купівлі та продажу квартир та будинків. Великий досвід угод по купівлі-продажу квартир та будинків за державними програмами: єОселя 3-7%, єВідновлення та інші державні програми для ВПО та військових (постанова 280 та 719).
З нами швидко, якісно, безпечно!
№ 22-402-047
Будинок, побудований з газоблоку, утеплений пінопластом 100мм.
Фасад - декоративна штукатурка, монолітне перекриття та сходи, другий поверх - утеплений мінватою 200мм.
планування:
1 поверх
- При вході зручне місце під гардероб верхнього одягу
- Гостьовий санвузол з місцем під душову
- Гардеробна кімната
- Гостьова кімната або кабінет
- Простора кухня вітальня з виходом на терасу
2 поверх
- Хол
- Основна спальня з виходом на балкон
- Ванна кімната
- Дитяча кімната №1
- Дитяча кімната №2
Комунікації - газ, електрика,
каналізація (септик з переливом).
Водопостачання - власна свердловина.
Відкатні ворота.
Інфраструктура максимально розвинена, адже дуплекси знаходяться у центрі села, де поруч усе необхідне.- Центральна частина Гатного, поряд з сільською радою!
- Поряд зупинка громадського транспорту, магазини, школа, дитячий садочок!
- Зручне сполучення з києвом (Виїзд можливий одразу на Одеську трасу, або через Крюківщину на Кільцеву дорогу)!
Телефонуйте! Ми завжди раді Вам допомогти! Ми надаємо повний спектр послуг з купівлі та продажу квартир та будинків. Великий досвід угод по купівлі-продажу квартир та будинків за державними програмами: єОселя 3-7%, єВідновлення та інші державні програми для ВПО та військових (постанова 280 та 719).
З нами швидко, якісно, безпечно!
№ 22-402-047
ID: 863130705
Зв’язатися з продавцем
xxx xxx xxx

