Бізнес
Продаж від забудовника
Без комісії
Відстань до найближчого міста: до 5 км.
Поверховість: 3
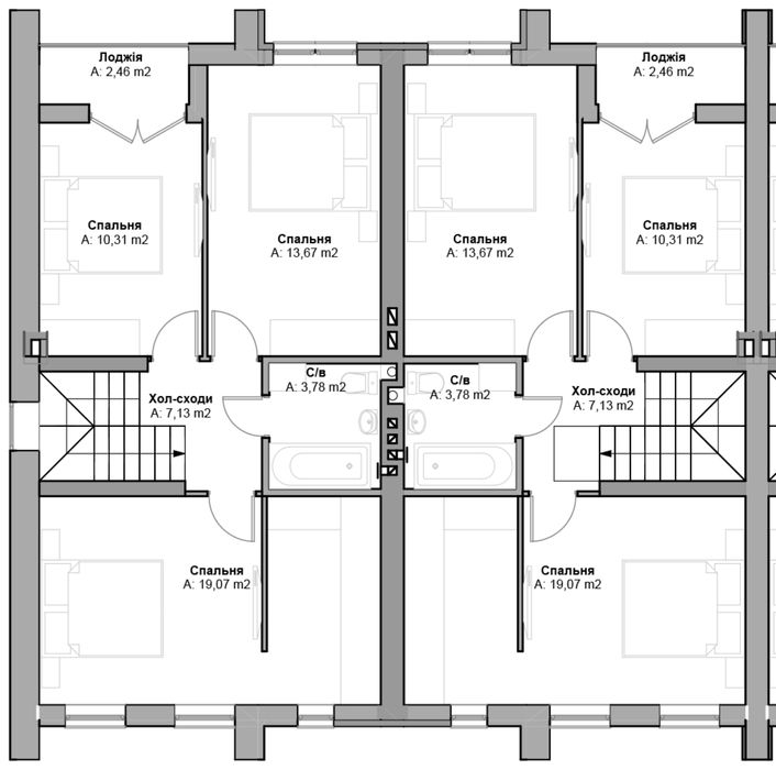
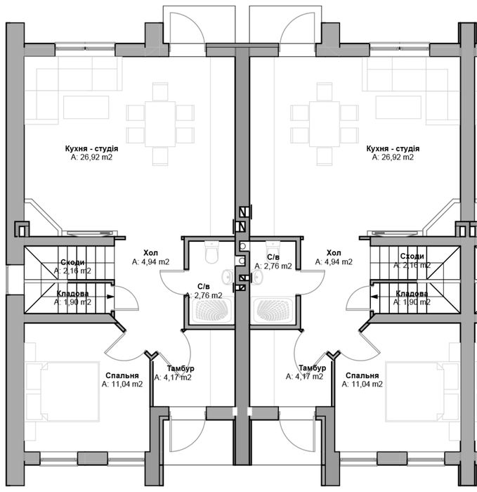
Загальна площа: 148 м²
Кількість кімнат: 5
Площа ділянки: 1.20 соток
Тип будинку: Таунхаус
Кадастровий номер: 3222484000:02:002:6265
Рік побудови / здачі: На етапі будівництва
Тип стін: Цегляний
Зовнішнє утеплення стін: Пінопласт
Тип покрівлі: Металочерепиця
Cанвузол: 2 і більше
Опалення: Індивідуальне газове
Ремонт: Після будівельників
Меблювання: Ні
Мультимедіа: Швидкісний інтернет
Комунікації: Асфальтована дорога, Центральна каналізація, Електрика, Вивіз відходів, Газ, Центральний водопровід
Інфраструктура (до 500 метрів): Дитячий садок, Зупинка транспорту
Опис
BestBud - Реалізує новий Проект - Закрите котеджне містечко Beverly Hills!
Ще більше комфорту для Вашої родини!
Наш пріоритет Якість!
- Будівництво з цегли - 2nf Озера пустотілий (найдорожчий на ринку)
- утеплення стін: пінопласт 15 см.
- утеплення та шумоізоляція даху 400 мм мінеральної вати!
- монолітне перекриття
- Армований пояс по периметру всього фундаменту.
Переваги житя в Котеджному містечку:
- закрита територія з цілодобовою охороною;
- в'їзд в КМ тільки через пункт охорони;
- малоповерхова забудова;
- відсутність розділення на рівні та класи, що сприяє добросусідству;
- можно знайти багато нових сусідів, які згодом можуть стати друзями;
- сучасний парк для господарів, дітей та їх друзів, що дозволяє відпочити від інтернетної рутини;
- цілодобове відноспостереження, що убезпечує перебування в КМ та дає можливість мамам одночасно дивитися за дітьми та займатися домашніми справами;
- Завжди можно поїхати на відпочинок або у відрядженя та не хвилюватись за власне майно яке завжди під наглядом;
- за димократичну ціну: прибиранням, озелененням, освітленням, обслуговуванням комунікаційних мереж займаються професійно навчений персонал;
- гостьови паркінг для Вас, Ваших близьких та знайомих;
Для комфорту можливо замовити комплекс робот у наших будівельників що включає:
- Індивідуальне опалення (котел + радіатори);
- Тепла підлога перший поверх + с\у на другому;
- Чистове оздоблення стін під шпалери;
- Лазерне стягування підлоги;
Підведення в будинок води, світла та газу
Горищне приміщення в подарунок(38 квадратів)
Ми даруємо Затишок!
Ще більше комфорту для Вашої родини!
Наш пріоритет Якість!
- Будівництво з цегли - 2nf Озера пустотілий (найдорожчий на ринку)
- утеплення стін: пінопласт 15 см.
- утеплення та шумоізоляція даху 400 мм мінеральної вати!
- монолітне перекриття
- Армований пояс по периметру всього фундаменту.
Переваги житя в Котеджному містечку:
- закрита територія з цілодобовою охороною;
- в'їзд в КМ тільки через пункт охорони;
- малоповерхова забудова;
- відсутність розділення на рівні та класи, що сприяє добросусідству;
- можно знайти багато нових сусідів, які згодом можуть стати друзями;
- сучасний парк для господарів, дітей та їх друзів, що дозволяє відпочити від інтернетної рутини;
- цілодобове відноспостереження, що убезпечує перебування в КМ та дає можливість мамам одночасно дивитися за дітьми та займатися домашніми справами;
- Завжди можно поїхати на відпочинок або у відрядженя та не хвилюватись за власне майно яке завжди під наглядом;
- за димократичну ціну: прибиранням, озелененням, освітленням, обслуговуванням комунікаційних мереж займаються професійно навчений персонал;
- гостьови паркінг для Вас, Ваших близьких та знайомих;
Для комфорту можливо замовити комплекс робот у наших будівельників що включає:
- Індивідуальне опалення (котел + радіатори);
- Тепла підлога перший поверх + с\у на другому;
- Чистове оздоблення стін під шпалери;
- Лазерне стягування підлоги;
Підведення в будинок води, світла та газу
Горищне приміщення в подарунок(38 квадратів)
Ми даруємо Затишок!
ID: 697850312
Зв’язатися з продавцем
xxx xxx xxx

