Бізнес
Продаж від забудовника
Без комісії
Відстань до найближчого міста: У місті
Поверховість: 2
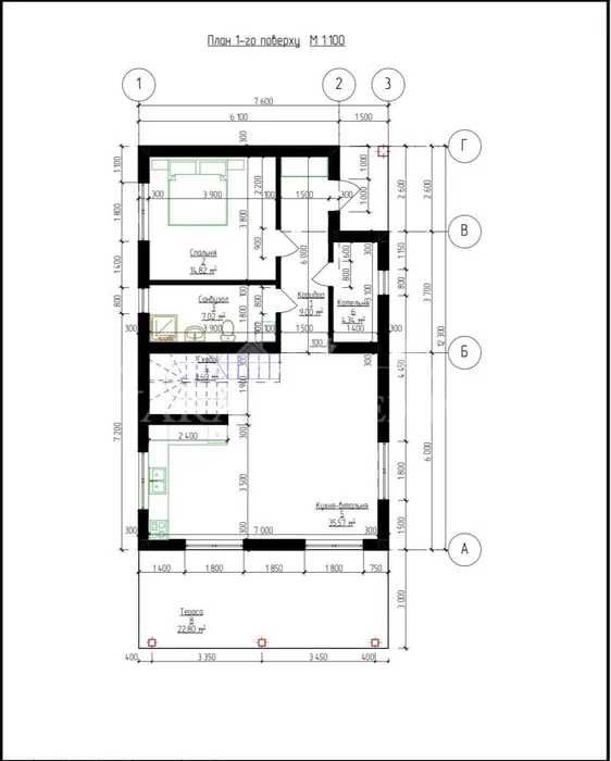
Загальна площа: 150 м²
Кількість кімнат: 4
Площа ділянки: 5 соток
Тип будинку: Будинок
Рік побудови / здачі: Після 2015
Тип стін: Газоблок
Зовнішнє утеплення стін: Пінопласт
Тип покрівлі: Металочерепиця
Cанвузол: 2 і більше
Опалення: Індивідуальне електро
Ремонт: Під чистову обробку
Комунікації: Електрика, Каналізація септик, Свердловина
Інфраструктура (до 500 метрів): Відділення банку, банкомат, Парк, зелена зона, Відділення пошти, Ресторан, кафе, Магазин, кіоск, Супермаркет, ТРЦ, Зупинка транспорту
Ландшафт (до 1 км.): Ліс, Парк
Опис
Продам двоповерховий будинок 150 м² на ділянці 5 соток! + тераса 22 м2. Закрите котеджне містечко в м.Буча.
-Будинок із МАКСИМАЛЬНИМ чистовим оздобленням — готовий до ремонту!
-Проведені всі комунікації
- Зручне планування для комфортного життя ( 4 спальних кімнати)
- Простора територія для відпочинку або ландшафтного дизайну
Ідеальне місце для створення вашого затишного будинку!
Фундамент - стрічковий, зверху закритий армованою плитою
Зовнішні стіни - газобетон D400, товщина 300мм
Внутрішні стіни - газобетон D400/D500, товщина 100мм
Перекриття між 1-м та 2-м поверхом - З/б плити
Перекриття між 2-м поверхом та горищем - дерев'яні балки утеплені базальтовою ватою, товщиною 200мм. Стропильна система та перекриття оброблені вогне/біозахістом "Байріс"
Висота стелі першого поверху - 2.9 м
Висота стелі другого поверху - 2.75 м
Вентеляційні канали гільзовані пластиковою трубою
ФАСАДНЕ ОЗДОБЛЕННЯ:
Утеплення фасаду - ПСП-25 100мм,
акрилова фінішна штукатурка білого кольору
Утеплення фундаменту - 50мм Паркан внутрішній - дерев'яний сірого кольору
Паркан зовнішній - блок рваний та дерев'яна дошка сірого кольору
Хвіртка - металева з електромеханічнім замком
Ворота - металеві без електроприводу
Вікна - Rehau Evro 70, двокамерні склопакети товщиною 40мм,з енергозберигаючім склом, зовнішня ламінація кольору "антрацит"
Фурнітура вікон першого поверху Siegenia - антизламна
Віконні відливи - металеві в колір вікон
Дах - Omega 30, колір RAL7024/RAL7016
Софітна частина - колір RAL7024/RAL7016 Система водовідводу - Izabella сірого кольору
Елементи фасаду оздоблені керамічною плиткою
Мощення території - тротуарна плитка
ВНУТРІШНЄ ОБЛАДНАННЯ БУДИНКУ:
Електромережі - розведені по будинку згідно проектної документації
Каналізація - розведена по будинку згідно проектної документації
Холодна та гаряча вода - розведені по будинку згідно проектної документації
Опалення першого поверху - тепла підлога
Опалення другого поверху - тепла підлога та радіатори
Чистова заливка підлоги
Гіпсова штукатурка стін - Knauf MP75 або Plato
В санвузлах та котельні - цементно-піщана штукатурка
В комплектацію входить терасса !
КОММУНІКАЦІЇ:
Опалення - індивідуальне електро (можливість заведення газу!+ 5000$)
Електромережі - 17кВт;
Каналізація - септичні колодязі
Водопостачання - свердловина
Перегляд 24/7
Індивідуальний торг, розглянемо розтермінування.
Пропозиція без комісії, прямий продаж від забудовника.
-Будинок із МАКСИМАЛЬНИМ чистовим оздобленням — готовий до ремонту!
-Проведені всі комунікації
- Зручне планування для комфортного життя ( 4 спальних кімнати)
- Простора територія для відпочинку або ландшафтного дизайну
Ідеальне місце для створення вашого затишного будинку!
Фундамент - стрічковий, зверху закритий армованою плитою
Зовнішні стіни - газобетон D400, товщина 300мм
Внутрішні стіни - газобетон D400/D500, товщина 100мм
Перекриття між 1-м та 2-м поверхом - З/б плити
Перекриття між 2-м поверхом та горищем - дерев'яні балки утеплені базальтовою ватою, товщиною 200мм. Стропильна система та перекриття оброблені вогне/біозахістом "Байріс"
Висота стелі першого поверху - 2.9 м
Висота стелі другого поверху - 2.75 м
Вентеляційні канали гільзовані пластиковою трубою
ФАСАДНЕ ОЗДОБЛЕННЯ:
Утеплення фасаду - ПСП-25 100мм,
акрилова фінішна штукатурка білого кольору
Утеплення фундаменту - 50мм Паркан внутрішній - дерев'яний сірого кольору
Паркан зовнішній - блок рваний та дерев'яна дошка сірого кольору
Хвіртка - металева з електромеханічнім замком
Ворота - металеві без електроприводу
Вікна - Rehau Evro 70, двокамерні склопакети товщиною 40мм,з енергозберигаючім склом, зовнішня ламінація кольору "антрацит"
Фурнітура вікон першого поверху Siegenia - антизламна
Віконні відливи - металеві в колір вікон
Дах - Omega 30, колір RAL7024/RAL7016
Софітна частина - колір RAL7024/RAL7016 Система водовідводу - Izabella сірого кольору
Елементи фасаду оздоблені керамічною плиткою
Мощення території - тротуарна плитка
ВНУТРІШНЄ ОБЛАДНАННЯ БУДИНКУ:
Електромережі - розведені по будинку згідно проектної документації
Каналізація - розведена по будинку згідно проектної документації
Холодна та гаряча вода - розведені по будинку згідно проектної документації
Опалення першого поверху - тепла підлога
Опалення другого поверху - тепла підлога та радіатори
Чистова заливка підлоги
Гіпсова штукатурка стін - Knauf MP75 або Plato
В санвузлах та котельні - цементно-піщана штукатурка
В комплектацію входить терасса !
КОММУНІКАЦІЇ:
Опалення - індивідуальне електро (можливість заведення газу!+ 5000$)
Електромережі - 17кВт;
Каналізація - септичні колодязі
Водопостачання - свердловина
Перегляд 24/7
Індивідуальний торг, розглянемо розтермінування.
Пропозиція без комісії, прямий продаж від забудовника.
ID: 895961701
Зв’язатися з продавцем
xxx xxx xxx
Опубліковано 04 березня 2026 р.
Акція! Будинок 150м2 на 5 сотках в Бучі, 4 кімнати, ГАЗ - 170000
170 000 $
Місцезнаходження
Буча
Київська область