Бізнес
Вид об'єкта: Новобудова
Тип будинку: Житловий фонд від 2021 р.
Назва ЖК: ЖК "Французький Бульвар"
Поверх: 9
Поверховість: 11
Загальна площа: 40.50 м²
Площа кухні: 12.10 м²
Тип стін: Монолітний
Кількість кімнат: 1 кімната
Планування: Роздільна
Cанвузол: Роздільний
Опалення: Індивідуальне газове
Опис
Пропонується простора 1-кімнатна квартира в новому, затишному житловому комплексі комфорт-класу!
Будинок введено в експлуатацію у 2025 році. Знаходиться в екологічно чистому районі — мальовничий Вишгород, поруч з водоймою Бутилка, Київським морем і Національним парком Межигір'я
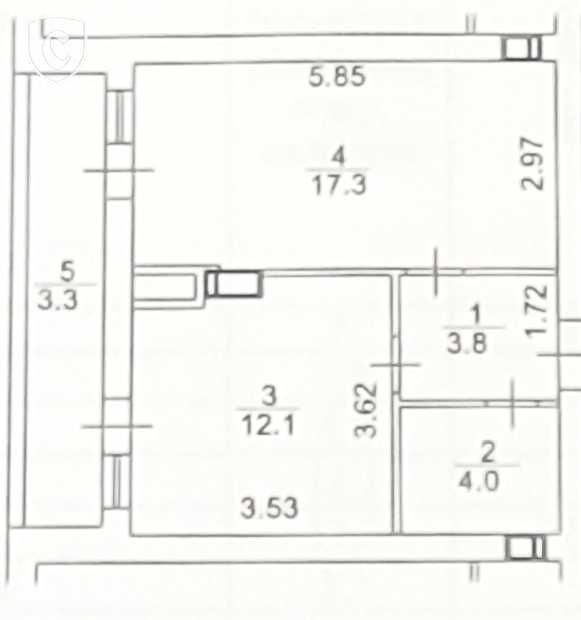
Площа квартири — 40,5 м²
Кімната — 17,3 м²
Кухня — 12,1 м²
Санвузол суміщений — 4 м²
Лоджія — 3,3 м² (з коефіцієнтом 50%)
Поверх — 9/11
Будинок:
Монолітно-каркасний, утеплений, цегляні стіни
Автономне газове опалення (встановлений двоконтурний котел)
Лічильники на газ, воду, електроенергію
Є можливість перепланування (наприклад, кухня-вітальня + дитяча)
Інфраструктура:
Двір з дитячим майданчиком, парковка, озеленення
Зупинка маршруток на Київ поруч
У комплексі є магазини, кафе, неподалік супермаркет Новус.
Вартість: $ 38,000
Продаж можливий за Державними програмами!
Забезпечуємо повний юридичний супровід угоди.
Телефонуйте або пишіть: 06*********04 Людмила, АН "Старгород"
Будинок введено в експлуатацію у 2025 році. Знаходиться в екологічно чистому районі — мальовничий Вишгород, поруч з водоймою Бутилка, Київським морем і Національним парком Межигір'я
Площа квартири — 40,5 м²
Кімната — 17,3 м²
Кухня — 12,1 м²
Санвузол суміщений — 4 м²
Лоджія — 3,3 м² (з коефіцієнтом 50%)
Поверх — 9/11
Будинок:
Монолітно-каркасний, утеплений, цегляні стіни
Автономне газове опалення (встановлений двоконтурний котел)
Лічильники на газ, воду, електроенергію
Є можливість перепланування (наприклад, кухня-вітальня + дитяча)
Інфраструктура:
Двір з дитячим майданчиком, парковка, озеленення
Зупинка маршруток на Київ поруч
У комплексі є магазини, кафе, неподалік супермаркет Новус.
Вартість: $ 38,000
Продаж можливий за Державними програмами!
Забезпечуємо повний юридичний супровід угоди.
Телефонуйте або пишіть: 06*********04 Людмила, АН "Старгород"
ID: 899071364
Зв’язатися з продавцем
xxx xxx xxx

