Бізнес
Вид об'єкта: Вторинний ринок
Без комісії
Тип будинку: Житловий фонд 2011-2020-і
Назва ЖК: БаскВіль
Поверх: 4
Поверховість: 4
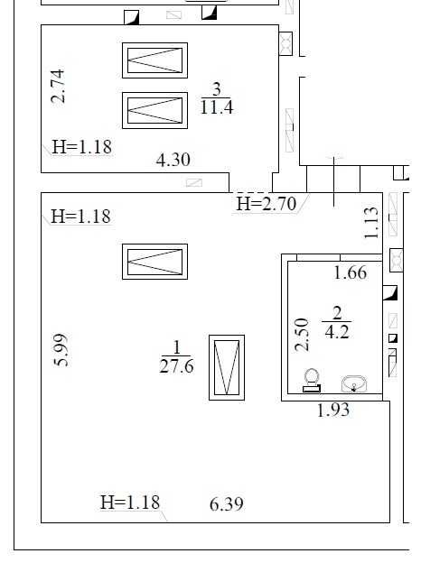
Загальна площа: 43 м²
Площа кухні: 11 м²
Тип стін: Цегляний
Кількість кімнат: 1 кімната
Планування: Двостороння
Cанвузол: Суміжний
Опалення: Індивідуальне електро
Меблювання: Ні
Комфорт: Гараж, Гостьовий паркінг, Госп. приміщення, комора
Комунікації: Асфальтована дорога, Центральна каналізація, Електрика, Вивіз відходів, Скважина
Інфраструктура (до 500 метрів): Дитячий садок, Парк, зелена зона, Бювет, Магазин, кіоск, Зупинка транспорту
Ландшафт (до 1 км.): Ліс, Озеро, Парк, Річка
Опис
Будинок заселений.
Без % розстрочка на 2,5 роки з першим внеском від 10 000.
Ідеально підходять як під здачу, так і для проживання. Вимагають мінімальних витрат на ремонт.
Теплий цегляний малоповерховий будинок. Мансардні вікна.
Є можливість придбати комору, яка може використовуватися як укриття.
Перспективний тихий мікрорайон Ірпеня, поряд озеро, ліс, нові гаражні бокси (можна придбати за додаткову оплату). Також можна додатково придбати комору. Стіни керамоблок з утеплювачем, фасад з цегли. Можливість обладнання теплої підлоги для додаткової економії. Комфортна невелика кількість квартир у під'їздах. Комплекс введено в експлуатацію, усі комунікації.
Свіже та чисте повітря – це рай для сімей з дітьми та для домашніх улюбленців.
Автомобілем 15 хвилин до Києва.
Поряд із комплексом проходить маршрутне таксі #400 на Київ.
Дуже близько знаходяться приватний дитячий садок, зупинка транспорту, кілька магазинів, кафе, спортивний комплекс.
Записуйтеся на перегляд заздалегідь за номером телефону.
Телефон: 06*********00
Без % розстрочка на 2,5 роки з першим внеском від 10 000.
Ідеально підходять як під здачу, так і для проживання. Вимагають мінімальних витрат на ремонт.
Теплий цегляний малоповерховий будинок. Мансардні вікна.
Є можливість придбати комору, яка може використовуватися як укриття.
Перспективний тихий мікрорайон Ірпеня, поряд озеро, ліс, нові гаражні бокси (можна придбати за додаткову оплату). Також можна додатково придбати комору. Стіни керамоблок з утеплювачем, фасад з цегли. Можливість обладнання теплої підлоги для додаткової економії. Комфортна невелика кількість квартир у під'їздах. Комплекс введено в експлуатацію, усі комунікації.
Свіже та чисте повітря – це рай для сімей з дітьми та для домашніх улюбленців.
Автомобілем 15 хвилин до Києва.
Поряд із комплексом проходить маршрутне таксі #400 на Київ.
Дуже близько знаходяться приватний дитячий садок, зупинка транспорту, кілька магазинів, кафе, спортивний комплекс.
Записуйтеся на перегляд заздалегідь за номером телефону.
Телефон: 06*********00
ID: 555375325
Зв’язатися з продавцем
xxx xxx xxx
Опубліковано 27 лютого 2026 р.
1-ком 43м² в заселеному ЖК. Розстрочка 3 роки. 1 внесок від 10 000 $
29 000 $
Місцезнаходження
Ірпінь
Київська область