Бізнес
Вид об'єкта: Новобудова
Без комісії
Підходить під вимоги єОселя
Назва ЖК: Форвард
Поверх: 7
Поверховість: 11
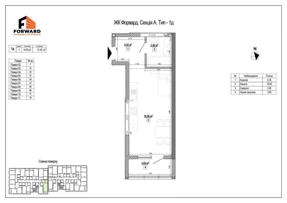
Загальна площа: 31.35 м²
Тип угоди: Від забудовника
Площа кухні: 19.50 м²
Клас житла: Комфорт
Кількість кімнат: 1 кімната
Cанвузол: Суміжний
Комунікації: Асфальтована дорога, Центральна каналізація, Електрика, Вивіз відходів, Центральний водопровід
Інфраструктура (до 500 метрів): Відділення банку, банкомат, Аптека, Лікарня, поліклініка, Дитячий садок, Парк, зелена зона, Дитячий майданчик, Відділення пошти, Ресторан, кафе, Школа, Магазин, кіоск, Супермаркет, ТРЦ, Зупинка транспорту
Опис
Вас вітає особистий менеджер з нерухомості РІЕЛ, працюємо з 2003 року.
Пропонуємо до уваги Однокімнатну квартиру площею 31.35 м2 у ЖК Форвард за адресою: вул. Ростиславська (Маршала Рибалка), 5а.
Шевченківський район Києва, ЖК класу комфорт з власним підземним паркінгом.
Однокімнатна квартира має таке планування.
Кімната 19,50 кв.м, коридор 4,35 кв.м, санвузол 3,90 кв.м, лоджія 3,60 кв.м.
Готова квартира, будинок введено в експлуатацію.
Будинок монолітно-каркасний, стіни з газобетону з додатковим утепленням мінватою.
Будинок отримав сертифікат готовності. Квартира з документами.
Стан квартири - під ремонт, після будівельників.
У вартість входить монтаж та підключення інженерних систем, зокрема, влаштування автономного опалення в квартирі, встановлення вхідних дверей, вікон зі склопакетами, влаштування бетонної стяжки та штукатурки, встановлення необхідних лічильників, підведення інженерних мереж без внутрішньої розводки.
Район, де розташований ЖК, має розвинуту інфраструктуру, власний підземний паркінг, закриту територію, неподалеку парки, кафе, дитячі та спортивні майданчики, школи, дит.садки та лікарні.
Пропонуємо до уваги Однокімнатну квартиру площею 31.35 м2 у ЖК Форвард за адресою: вул. Ростиславська (Маршала Рибалка), 5а.
Шевченківський район Києва, ЖК класу комфорт з власним підземним паркінгом.
Однокімнатна квартира має таке планування.
Кімната 19,50 кв.м, коридор 4,35 кв.м, санвузол 3,90 кв.м, лоджія 3,60 кв.м.
Готова квартира, будинок введено в експлуатацію.
Будинок монолітно-каркасний, стіни з газобетону з додатковим утепленням мінватою.
Будинок отримав сертифікат готовності. Квартира з документами.
Стан квартири - під ремонт, після будівельників.
У вартість входить монтаж та підключення інженерних систем, зокрема, влаштування автономного опалення в квартирі, встановлення вхідних дверей, вікон зі склопакетами, влаштування бетонної стяжки та штукатурки, встановлення необхідних лічильників, підведення інженерних мереж без внутрішньої розводки.
Район, де розташований ЖК, має розвинуту інфраструктуру, власний підземний паркінг, закриту територію, неподалеку парки, кафе, дитячі та спортивні майданчики, школи, дит.садки та лікарні.
ID: 847476305
Зв’язатися з продавцем
xxx xxx xxx
Опубліковано 15 серпня 2025 р.
1-к квартира 31.35 м² в ЖК Форвард Ростиславська 5а
62 400 $
Місцезнаходження
Київ, Шевченківський
Київська область