Бизнес
Вид объекта: Новостройка
Готов сотрудничать с риэлторами
Подходит под требования єОселя
Тип дома: Жилой фонд от 2021 р.
Название ЖК: Жовтневый
Этаж: 4
Этажность: 12
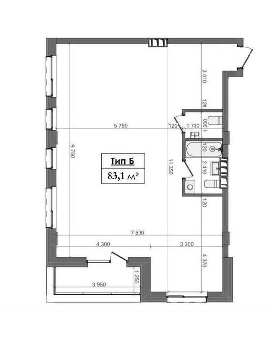
Общая площадь: 83.10 м²
Площадь кухни: 20 м²
Тип стен: Кирпичный
Класс жилья: Бизнес
Количество комнат: 3 комнаты
Планировка: Раздельная
Санузел: 2 и более
Отопление: Индивидуальное электро
Ремонт: После строителей
Меблирование: Нет
Бытовая техника: Без бытовой техники
Мультимедиа: Скоростной интернет
Комфорт: Видеонаблюдение, Балкон, лоджия, Консъерж, Лифт, Пожарная сигнализация, Подземный паркинг, Панорамные окна, Охраняемая территория, Грузовой лифт, Гардероб
Коммуникации: Асфальтированная дорога, Центральная канализация, Электричество, Вывоз отходов, Центральный водопровод
Инфраструктура (до 500 метров): Отделение банка, банкомат, Кинотеатр, театр, Центр города, Аптека, Больница, поликлиника, Детский сад, Рынок, Парк, зелёная зона, Отделение почты, Ресторан, кафе, Школа, Магазин, киоск, Супермаркет, ТРЦ
Ландшафт (до 1 км.): Холмы, Острова, Парк, Река
Описание
Подходит под программу е-Осэля (дому менее 3-х лет)
Общая Площадь 83 м2 (6 окон)
Этаж 4/12
Есть балкон
Комплектация:
• Установленна высококачественная бронированная дверь с шумоизоляцией и итальянской фурнитурой
• Заведён кабель интернета
• Мощность электричества 18 кВт
Из всех квартир в этом ЖК (да и не только в этом), данная планировка является наилучшей из возможных, ввиду своей ширины аж в 7,56 и длины 10,1 метров и отсутствии колон, что позволит более комфортно и правильно спланировать комнаты в отличии от других квартир подобной площади, во всех других ЖК нашего города, так как там 95 % квартир примерно такой же площади часто имеют колоны и неудобно расположенные стояки и вентканалы, что будет сильно ограничивать Вас в выборе планировочных решений при реализации ремонта и будет неудобно располагать мебель, технику и другие предметы интерьера. Данные слова Вам подтвердит любой дизайнер и прораб. Так что данная планировка с таким удачным пространством является идеальной в своём сегменте.
Основные Плюсы (тэзисно):
- Широкая/просторная
- Нет колон и ненужных перегородок
- Два стояка и два вентканала по разные стороны
- Панорамные окна 6 шт.
- Большое меж-оконное пространство (комфортно для планировки)
- Балкон
- Не высокий этаж (актуально в наше "время")
- Подземный паркинг
- Монолитно каркасный дом, заполнение стен кирпич
- Самая тихая улица в соборном районе
Инфраструктура ЖК:
В пешей доступности 10 мин. Ля Сильпо, огромное количество ресторанов и кафе в радиусе 300-500 метров, парк им Шевченко, магазины Дэмарт, Варус, Сильпо, АТБ, Нагорный рынок, школы, университеты, академии, ЦУМ, Пассаж, Каскад Плаза, Мост-Сити. Остановки общественного транспорта в любую точку города.
Также рядом расположены такие известные комплексы, магазины, кафе и Рестораны как: Бартоломео (Bartolomeo), Новодворянский, Башни, Маяк, Панорама, Комфорт Сити (Comfort City), Лофт (Loft Project), Лофт Вайт (Loft White), Парк Резиденс (Park Residence), Небосхилл (Neboshill), Женева (Geneve), IQ House, К-12 (Кучеревского), Дуэт, Дельмар (Delmar), Дельмар Люкс, Екатеринославский, Дэлайт Холл (DeLight Hall), Фестивальный, Моцарт (Mozart), Жовтневый, Жуковский, Гончара, Лофт Смарт, Loft Egoist.
Связаться с продавцом
xxx xxx xxx


