Бизнес
Вид объекта: Вторичка
Без комиссии
Тип дома: Жилой фонд от 2021 р.
Название ЖК: Unit Home
Этаж: 16
Этажность: 23
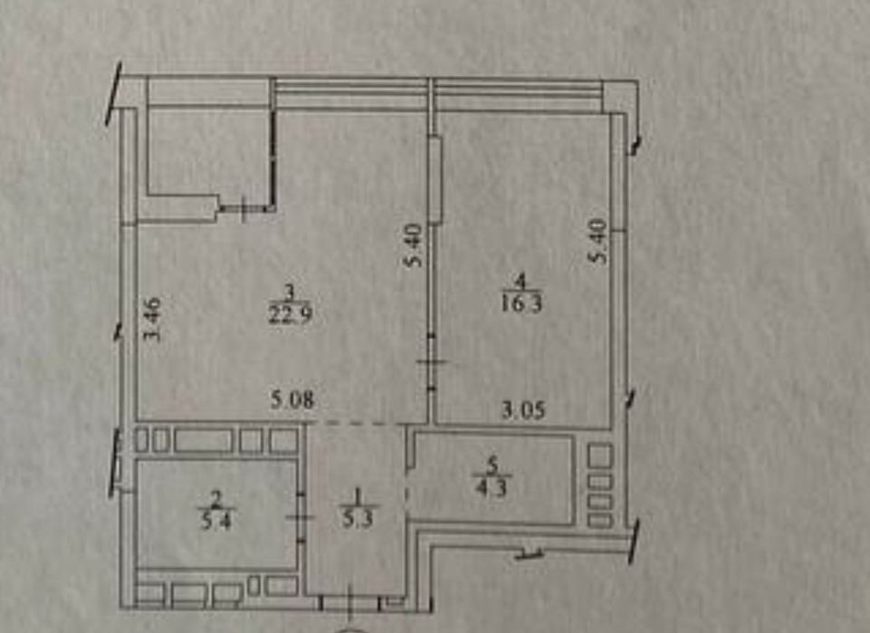
Общая площадь: 56 м²
Площадь кухни: 23 м²
Тип стен: Кирпичный
Класс жилья: Бизнес
Количество комнат: 1 комната
Планировка: Раздельная
Санузел: Смежный
Отопление: Централизованное
Ремонт: После строителей
Комфорт: Лифт, Грузовой лифт, Гардероб
Коммуникации: Асфальтированная дорога, Электричество, Вывоз отходов
Инфраструктура (до 500 метров): Супермаркет, ТРЦ
Описание
Продам видовую 1-ю квартиру на 16 этаже Метраж 55,8м/16,3/22,9 ЖК Unit Home - комплекс бізнес-класу з унікальним дизайном, побудований за концепцією "місто в місті". Територія охороняється 24/7 з відеоспостереженням. Подвіря без машин. Швидкісні ліфти спускаються до паркінгу. У будинку встановлено систему управління "розумний будинок" та систему безпеки Ajax (пожежна сигналізація, датчики відкриття дверей, руху та затоплення). Квартира розташована в найвищій секції.
ЖК Unit Home розташований у серці проекту - першого в Україні інноваційного парку. Територія парку складатиметься з житлових кварталів, офісних будівель, дитячого простору та гостьового готелю. Поруч знаходяться станції метро Дорогожичі, Шулявська та Лукянівська. Також у парку є медичний центр, школа, дитячий садок, фітнес-центр, паркінги, велопрокат, зарядні станції для авто, ситуаційний центр 24/7, сервісна підтримка 24/7, BMS - сучасна автоматизована система управління, SMART Lightening - енергоефективне освітлення, SMART Home - автоматизована система обліку та контролю. Є власна служба безпеки, відеоспостереження, патрульний дрон та захищена мережа інтернету.
Ціна 120000 у.е
ЖК Unit Home розташований у серці проекту - першого в Україні інноваційного парку. Територія парку складатиметься з житлових кварталів, офісних будівель, дитячого простору та гостьового готелю. Поруч знаходяться станції метро Дорогожичі, Шулявська та Лукянівська. Також у парку є медичний центр, школа, дитячий садок, фітнес-центр, паркінги, велопрокат, зарядні станції для авто, ситуаційний центр 24/7, сервісна підтримка 24/7, BMS - сучасна автоматизована система управління, SMART Lightening - енергоефективне освітлення, SMART Home - автоматизована система обліку та контролю. Є власна служба безпеки, відеоспостереження, патрульний дрон та захищена мережа інтернету.
Ціна 120000 у.е
ID: 887766267
Связаться с продавцом
xxx xxx xxx
