Бизнес
Вид объекта: Вторичка
Без комиссии
Готов сотрудничать с риэлторами
Тип дома: Жилой фонд от 2021 р.
Название ЖК: Сирецькі Сади
Этаж: 19
Этажность: 20
Общая площадь: 88.55 м²
Тип сделки: Переуступка
Площадь кухни: 15 м²
Количество комнат: 3 комнаты
Планировка: Раздельная
Санузел: 2 и более
Описание
ЖК Сирецькі сади
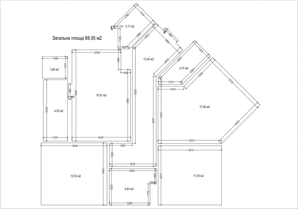
Продається двостороння 3-кімнатна квартира в будинку 10Ж.
Функціональне двостороннє планування:
-загальна площа квартири 88,55 м²;
-житлова 55,1 м2;
-кухня-студія - 15,91 м2.
-три кімнати – 12,52; 11,50 та 17,59 м2;
-засклений та відкритий балкони;
-2 санвузла.
В квартирі виконано лазерну стяжку підлоги, чорнову гіпсову штукатурку стін, встановлено радіатори, металопластикові двокамерні склопакети, протиударні вхідні двері.
Будинок теплий, збудований по монолітно-каркасній технологіі, стіни - керамоблок, утеплювач.
У ЖК своя котельня, встановлено лічильники на тепло, воду та електрику. Проводяться роботи щодо встановлення газового генератору задля забезпечення живлення лфіфтів, подачі води і тепла під час відключення світла. Більш детальну інформацію надам при особистому спілкуванні.
Будинок введений в експлуатацію.
В квартирі є комора в підвалі, площею 2,3 м2
Закрита територія, охорона, відеоспостереження. Вхід до будинку з обох сторін. Безліч дитячих та спортивних майданчиків. Три пости охорони на в'їзд на територію, для всласників квартир зроблена зручна внутрішня дорога для заїзду з вул. Сирецької, охорона у під'їздах, цілодобове відеоспостереження, укриття.
Комплекс з автономною інфрастуктурою - 5 маркетів, аптека, фітнес зала, 3 кав'ярні, тощо.
Поряд будують метро - станція Мостицька. 10 хв на машині до метро Сирець.
Перепоступка
Продається двостороння 3-кімнатна квартира в будинку 10Ж.
Функціональне двостороннє планування:
-загальна площа квартири 88,55 м²;
-житлова 55,1 м2;
-кухня-студія - 15,91 м2.
-три кімнати – 12,52; 11,50 та 17,59 м2;
-засклений та відкритий балкони;
-2 санвузла.
В квартирі виконано лазерну стяжку підлоги, чорнову гіпсову штукатурку стін, встановлено радіатори, металопластикові двокамерні склопакети, протиударні вхідні двері.
Будинок теплий, збудований по монолітно-каркасній технологіі, стіни - керамоблок, утеплювач.
У ЖК своя котельня, встановлено лічильники на тепло, воду та електрику. Проводяться роботи щодо встановлення газового генератору задля забезпечення живлення лфіфтів, подачі води і тепла під час відключення світла. Більш детальну інформацію надам при особистому спілкуванні.
Будинок введений в експлуатацію.
В квартирі є комора в підвалі, площею 2,3 м2
Закрита територія, охорона, відеоспостереження. Вхід до будинку з обох сторін. Безліч дитячих та спортивних майданчиків. Три пости охорони на в'їзд на територію, для всласників квартир зроблена зручна внутрішня дорога для заїзду з вул. Сирецької, охорона у під'їздах, цілодобове відеоспостереження, укриття.
Комплекс з автономною інфрастуктурою - 5 маркетів, аптека, фітнес зала, 3 кав'ярні, тощо.
Поряд будують метро - станція Мостицька. 10 хв на машині до метро Сирець.
Перепоступка
ID: 869443701
Связаться с продавцом
xxx xxx xxx
Опубликовано 06 марта 2026 г.
ЖК Сирецькі сади вул.Виговського,10С
98 000 $
Местоположение
Киев, Подольский
Киевская область
