Бизнес
Вид объекта: Новостройка
Тип дома: Жилой фонд от 2021 р.
Название ЖК: КРИШТАЛЕВІ ДЖЕРЕЛА
Этаж: 3
Год ввода в эксплуатацию: 2 022
Этажность: 9
Общая площадь: 40.30 м²
Площадь кухни: 12 м²
Тип стен: Монолитный
Класс жилья: Комфорт
Количество комнат: 1 комната
Планировка: Раздельная
Санузел: Смежный
Отопление: Собственная котельная
Ремонт: После строителей
Меблирование: Нет
Бытовая техника: Без бытовой техники
Мультимедиа: Без мультимедиа
Комфорт: Видеонаблюдение, Балкон, лоджия, Лифт, Пожарная сигнализация, Гостевой паркинг, Охраняемая территория, Грузовой лифт
Коммуникации: Асфальтированная дорога, Центральная канализация, Электричество, Вывоз отходов, Газ, Центральный водопровод, Скважина
Инфраструктура (до 500 метров): Отделение банка, банкомат, Автовокзал, Кинотеатр, театр, Аптека, Больница, поликлиника, Детский сад, Рынок, Метро, Парк, зелёная зона, Детская площадка, Отделение почты, Бювет, Ресторан, кафе, Школа, Магазин, киоск, Супермаркет, ТРЦ, Остановка транспорта
Ландшафт (до 1 км.): Лес, Озеро, Парк
Описание
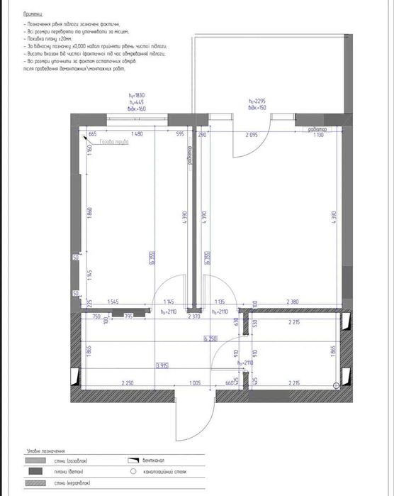
Квартира на 3 поверсі з 9, з видом у тихий внутрішній дворик. Загальна площа — 40,3 м². Стан — після будівельників. Є газ. Планування та точні заміри — на фото.
Закрита територія ЖК з охороною, наявні місця для паркування. У пішій доступності парк Феофанія, супермаркет, комерційні заклади.
Додатково розроблений дизайн-проєкт (на фото) — ремонтні роботи ще не проводились.
Одна з найкращих пропозицій з документами у цьому ЖК! Телефонуйте для перегляду.
Связаться с продавцом
xxx xxx xxx

