Бизнес
Продажа от застройщика
Без комиссии
Расстояние до ближайшего города: до 5 км.
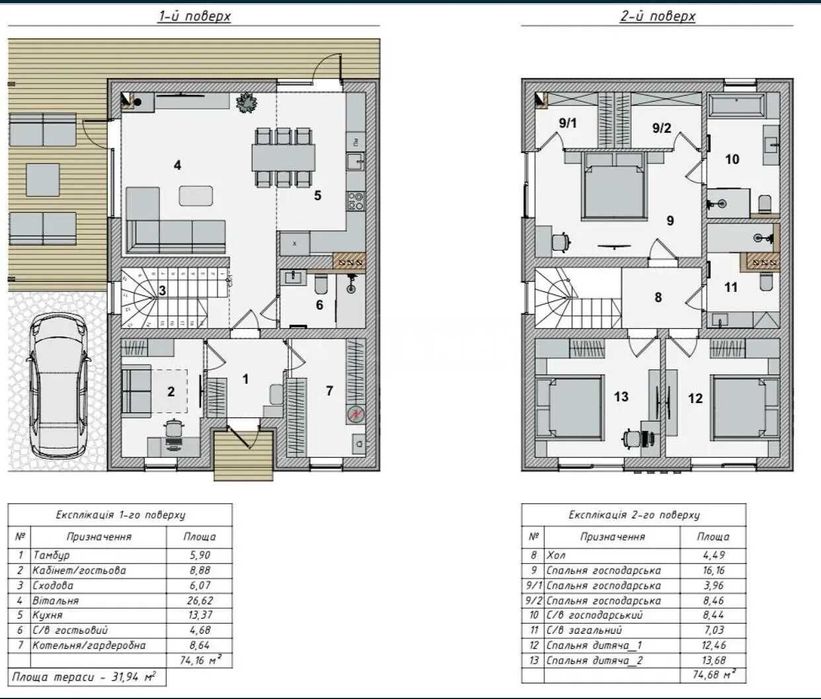
Этажность: 2
Общая площадь: 150 м²
Количество комнат: 3
Площадь участка: 4 соток
Тип дома: Дом
Год постройки / сдачи: После 2015
Тип стен: Кирпичный
Внешнее утепление стен: Пенопласт
Тип кровли: Другое
Санузел: 2 и более
Отопление: Индивидуальное газовое
Ремонт: Под чистовую отделку
Описание
Пропонуємо сучасні будинки, в клубному містечку Qvartet у яких хочеться жити та насолоджуватися.
Елітний район(не саме село), район «Гірка».
Земельна ділянка загальної площі 15 сотих, розподілена по 4 сотих на кожний будинок і 3 сотих- загального користування.
Характеристики:
~ Продумане, до дрібниць, планування.
~Три санвузла.
~ Будівництво з цегли.
~ Зовнішнє утеплення базальтової ватою 10см.
~ Підключення до міських комунікацій.
~ На воду додатково зроблено скважину у кожному будинку та підключено мотор.
~ Розведення електрики, води-каналізації.
~ Стіни- гіпсова шпаклівка.
~ Двоконтурний котел Baxi(опалення +гаряча вода) та зроблено опалення по будинку.
~ Чистова рівна стяжка.
~ Закрита територія з автоматичними воротами, камерами відеоспостереження.
~ Облаштування благоустрою території.
При 100% оплаті готові говорити по ціні.
Можливе розтермінування(фіксована ціна)
Для отримання додаткової інформації, дзвоніть.
Елітний район(не саме село), район «Гірка».
Земельна ділянка загальної площі 15 сотих, розподілена по 4 сотих на кожний будинок і 3 сотих- загального користування.
Характеристики:
~ Продумане, до дрібниць, планування.
~Три санвузла.
~ Будівництво з цегли.
~ Зовнішнє утеплення базальтової ватою 10см.
~ Підключення до міських комунікацій.
~ На воду додатково зроблено скважину у кожному будинку та підключено мотор.
~ Розведення електрики, води-каналізації.
~ Стіни- гіпсова шпаклівка.
~ Двоконтурний котел Baxi(опалення +гаряча вода) та зроблено опалення по будинку.
~ Чистова рівна стяжка.
~ Закрита територія з автоматичними воротами, камерами відеоспостереження.
~ Облаштування благоустрою території.
При 100% оплаті готові говорити по ціні.
Можливе розтермінування(фіксована ціна)
Для отримання додаткової інформації, дзвоніть.
ID: 903566257
Связаться с продавцом
xxx xxx xxx

