Бизнес
Продажа от застройщика
Без комиссии
Расстояние до ближайшего города: до 5 км.
Этажность: 2
Общая площадь: 120 м²
Количество комнат: 3
Площадь участка: 3 соток
Тип дома: Дуплекс
Год постройки / сдачи: После 2015
Тип стен: Газоблок
Внешнее утепление стен: Пенопласт
Тип кровли: Металлочерепица
Отопление: Индивидуальное газовое
Ремонт: После строителей
Инфраструктура (до 500 метров): Аптека, Детский сад, Парк, зелёная зона, Детская площадка, Отделение почты, Ресторан, кафе, Школа, Супермаркет, ТРЦ, Остановка транспорта
Описание
White-Blackie Duplex — Від забудовника
Сучасне котеджне містечко у передмісті Києва з відкритим продажем дуплексів ( квартир )
Київська обл., Бучанський р-н., с. Білогородка
Площа будинку: 120 м²
Поверховість: 2 поверхи
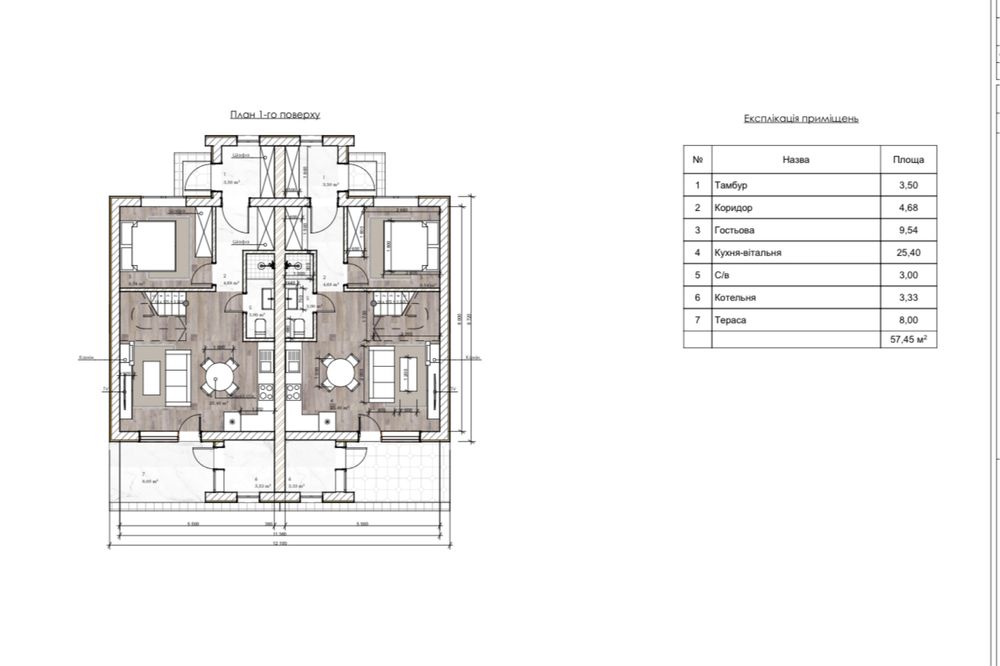
• Кількість кімнат: 4 (3 спальні + кухня-вітальня)
Санвузли: 2
• Ділянка: 3 сотки (1,5 сотки приватної території біля будинку + 1,5 сотки спільної території комплексу)
• Міські комунікації
• Територія комплексу:
Закрите котеджне містечко з асфальтованими внутрішніми дорогами
Доступ до інфраструктури КМ «VILLAGGO»
Власна вхідна група для кожного дуплексу
Паркомісце біля будинку
Зона для відпочинку та барбекю на ділянці
• Планування:
1 поверх – кухня-вітальня з виходом на терасу, санвузол, гардеробна, технічне приміщення
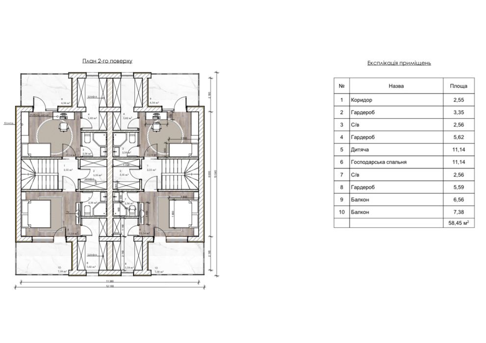
2 поверх – три спальні, санвузол, коридор із вікном
• Технічні характеристики:
Стіни – газоблок 300 мм + утеплювач 100 мм
Фундамент – монолітна плита
Перекриття – моноліт
Дах – металочерепиця з утепленням
Вікна – енергозберігаючі двокамерні
Електрика – 10 кВт (3 фази)
Вода - центральне водопостачання
Каналізація - центральна
Газ
• Переваги:
Міські комунікації
Сучасна архітектура у стилі black & white
Панорамні вікна у вітальні
Асфальтований під’їзд
Закрита територія та безпека
Оптимальна площа без зайвих метрів
• Чому варто купити:
White-Blackie Duplex — це дім, де кожен вкладений долар виправданий якістю будівництва, продуманим плануванням та престижною архітектурою, що виділяється серед конкурентів.
Поруч знаходяться с. Стоянка, Чайки, Житомирський напрямок. Зручна транспортна розвʼязка та інфраструктура. Будинок, таунхаус, дуплекс в Білогородці
Телефонуйте для перегляду та консультації.
Продажа дуплексов ( дом коттедж ) в с. Белогородка
Городские коммуникации, газ
Без комисси и дополнительных платежей
От застройщика
Сучасне котеджне містечко у передмісті Києва з відкритим продажем дуплексів ( квартир )
Київська обл., Бучанський р-н., с. Білогородка
Площа будинку: 120 м²
Поверховість: 2 поверхи
• Кількість кімнат: 4 (3 спальні + кухня-вітальня)
Санвузли: 2
• Ділянка: 3 сотки (1,5 сотки приватної території біля будинку + 1,5 сотки спільної території комплексу)
• Міські комунікації
• Територія комплексу:
Закрите котеджне містечко з асфальтованими внутрішніми дорогами
Доступ до інфраструктури КМ «VILLAGGO»
Власна вхідна група для кожного дуплексу
Паркомісце біля будинку
Зона для відпочинку та барбекю на ділянці
• Планування:
1 поверх – кухня-вітальня з виходом на терасу, санвузол, гардеробна, технічне приміщення
2 поверх – три спальні, санвузол, коридор із вікном
• Технічні характеристики:
Стіни – газоблок 300 мм + утеплювач 100 мм
Фундамент – монолітна плита
Перекриття – моноліт
Дах – металочерепиця з утепленням
Вікна – енергозберігаючі двокамерні
Електрика – 10 кВт (3 фази)
Вода - центральне водопостачання
Каналізація - центральна
Газ
• Переваги:
Міські комунікації
Сучасна архітектура у стилі black & white
Панорамні вікна у вітальні
Асфальтований під’їзд
Закрита територія та безпека
Оптимальна площа без зайвих метрів
• Чому варто купити:
White-Blackie Duplex — це дім, де кожен вкладений долар виправданий якістю будівництва, продуманим плануванням та престижною архітектурою, що виділяється серед конкурентів.
Поруч знаходяться с. Стоянка, Чайки, Житомирський напрямок. Зручна транспортна розвʼязка та інфраструктура. Будинок, таунхаус, дуплекс в Білогородці
Телефонуйте для перегляду та консультації.
Продажа дуплексов ( дом коттедж ) в с. Белогородка
Городские коммуникации, газ
Без комисси и дополнительных платежей
От застройщика
ID: 892909455
Связаться с продавцом
xxx xxx xxx


