Бизнес
Продажа от застройщика
Без комиссии
Готов сотрудничать с риэлторами
Расстояние до ближайшего города: до 5 км.
Этажность: 1
Общая площадь: 40 м²
Количество комнат: 2
Площадь участка: 0.10 соток
Тип дома: Модульные дома
Год постройки / сдачи: После 2015
Тип стен: Деревянный
Внешнее утепление стен: Минеральная вата
Тип кровли: Битумная черепица
Санузел: Смежный
Отопление: Индивидуальное электро
Ремонт: Авторский проект
Меблирование: Да
Мультимедиа: Wi-Fi
Комфорт: Камин, Гостевой, летний дом, Душевая кабина, Терраса
Описание
Продається дизайнерський модульний будинок готовий для проживання (занось меблі та живи)
Компанія BleckBlockHouse займаєтья проектуванням та виробництвом модульних будинків, домокомплектів, а також виробництвом дерев’яних ферм покрівлі.
Головна «фішка» наших будиків це увага до деталей, будинки виконані з якісних матеріалів, професійними майстрами, з педантичною точністю.
Будинок BBH-1 готовий до перевезення на Вашу ділянку.
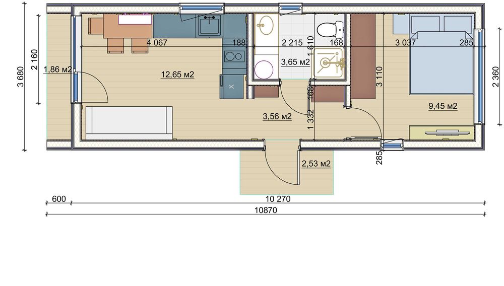
Площа будинку 40м2 і включає в себе вітальню з кухнею, спальню, с/у, а також прибудовану терасу.
Характеристики будинку:
Довжина:10,9м
Ширина:3,7м
Висота:3,3м
Вага:7800кг
Площа приміщень :
Вітальня-кухня 12,65м2
Коридор 3,56м2
С/у 3,65м2
Спальня 9,45м2
накрита тераса 1,86м2
Будинок енергоефективний оздоблений ззовні шліфованим планкеном з смереки покритий 3 шарами датської олії, накритий бітумною черепицею, в середині оздоблений Естонською фанерою вищого сорту на Італійськими стіновими панелями.
Наші технології, та характеристики:
1. Каркас виготовлений за технологією ферм, що дозволило використовувати менше деревини і більше утеплювача, що в свою чергу покращує характеристики енергоефективності. Включає в себе калібровану дошку покриту вогнебіозахистом і має 145 профіль стін та 195 профіль стелі та підлоги, утеплені мінераловатним утеплювачем, закритий контур в середені фольгованою пароізоляцією проклеєною гермитично стрічкою. Ззовні 15мм ОСБ а також супердифузійна мембрана
2. Зовні планкен смереки, 1сорту шліфований , покритий шаром біозахисту і двома шарами датским маслом.
3.Зовнішнє оздоблення:
-вітальні стіни і стеля це Естонська фанера 0го сорту покрита трьома шарами екологічним маслом. Підлога 22осб покрита гідроізоляцією в зоні кухні і коридора та покрита високоякісним вінілом
-спальні стіни і стелі з італьйських стінових панелей SAVIOLA Glazed. Підлога вініл
-с/у стіни плитка + стінові панелі. Стеля штукатурка з вбудованою лед підсвіткою. Підлога керамограніт.
4. В С/у зроблена гідроізоляція підлоги і стін, розуклон до трапа, проведені всі комунікації, вмонтована інсталяція гіберіт, встановлена сантехніка, скляна перегородка душевої, та трап. Підготовлена ніша для бойлера та пральноїмашини.
5. Двері фарбовані, прихованого монтажу з чорним алюмінеим профілем та прихованими петлями.
5.Будинок має панорамні вікна та вхідні двері з пофіля Rehau 70. склопакет двокамерний заповнений аргоном з склом 4 мм покритий енергосберігаючою плівкою , оздоблениі ламінацією з двох сторін.
6. Покрівля виконана з двошарової бітумної черепиці, під нею підкладочний гідроізоляційний килим, ОСБ 15мм.
10. Електрика .має всі необхідні розетки, якісний кабель ВВГ НГ в гофрі, на розетки з підвищеними навантаженнями окремі автомати в щитовій. Щитова має окрему приховану нішу з місцем для роутера.
11. Освітлення LED потолочне і стінове. Прохідні виключателі у спальні. Вулечне освітлення вхідної зони та тераси.
12. Проведені всі сантехнічні і каналізаційні точки, підключені фільтри для води.
13. Опалення електричне Керамічне.
Додаткові опції: меблі в кухню,і спальню,продовжена тераса, ганок при вході, обігрівачі.
Побудуємо для Вас такий будинок за 25000$ або 30’000 за готове рішення.
Також можемо розглянути варіанти інших комплектацій під Ваш бюджет починаючи від 7000$ за домокомплект конструктор
Гарне рішення для Вашого дачного відпочинку, або здачі в оренду. Телефонуйте чи приїжджайте на перегляд, контакти в оголошені.
більше фото в нашому instagram black_block_house
Також можете обрати Інший проект з нашого каталогу, або пропрацювати власний з нашим дизайнером.
Виготовляємо модульні будинки за 90днів на своєму виробництві.
Компанія BleckBlockHouse займаєтья проектуванням та виробництвом модульних будинків, домокомплектів, а також виробництвом дерев’яних ферм покрівлі.
Головна «фішка» наших будиків це увага до деталей, будинки виконані з якісних матеріалів, професійними майстрами, з педантичною точністю.
Будинок BBH-1 готовий до перевезення на Вашу ділянку.
Площа будинку 40м2 і включає в себе вітальню з кухнею, спальню, с/у, а також прибудовану терасу.
Характеристики будинку:
Довжина:10,9м
Ширина:3,7м
Висота:3,3м
Вага:7800кг
Площа приміщень :
Вітальня-кухня 12,65м2
Коридор 3,56м2
С/у 3,65м2
Спальня 9,45м2
накрита тераса 1,86м2
Будинок енергоефективний оздоблений ззовні шліфованим планкеном з смереки покритий 3 шарами датської олії, накритий бітумною черепицею, в середині оздоблений Естонською фанерою вищого сорту на Італійськими стіновими панелями.
Наші технології, та характеристики:
1. Каркас виготовлений за технологією ферм, що дозволило використовувати менше деревини і більше утеплювача, що в свою чергу покращує характеристики енергоефективності. Включає в себе калібровану дошку покриту вогнебіозахистом і має 145 профіль стін та 195 профіль стелі та підлоги, утеплені мінераловатним утеплювачем, закритий контур в середені фольгованою пароізоляцією проклеєною гермитично стрічкою. Ззовні 15мм ОСБ а також супердифузійна мембрана
2. Зовні планкен смереки, 1сорту шліфований , покритий шаром біозахисту і двома шарами датским маслом.
3.Зовнішнє оздоблення:
-вітальні стіни і стеля це Естонська фанера 0го сорту покрита трьома шарами екологічним маслом. Підлога 22осб покрита гідроізоляцією в зоні кухні і коридора та покрита високоякісним вінілом
-спальні стіни і стелі з італьйських стінових панелей SAVIOLA Glazed. Підлога вініл
-с/у стіни плитка + стінові панелі. Стеля штукатурка з вбудованою лед підсвіткою. Підлога керамограніт.
4. В С/у зроблена гідроізоляція підлоги і стін, розуклон до трапа, проведені всі комунікації, вмонтована інсталяція гіберіт, встановлена сантехніка, скляна перегородка душевої, та трап. Підготовлена ніша для бойлера та пральноїмашини.
5. Двері фарбовані, прихованого монтажу з чорним алюмінеим профілем та прихованими петлями.
5.Будинок має панорамні вікна та вхідні двері з пофіля Rehau 70. склопакет двокамерний заповнений аргоном з склом 4 мм покритий енергосберігаючою плівкою , оздоблениі ламінацією з двох сторін.
6. Покрівля виконана з двошарової бітумної черепиці, під нею підкладочний гідроізоляційний килим, ОСБ 15мм.
10. Електрика .має всі необхідні розетки, якісний кабель ВВГ НГ в гофрі, на розетки з підвищеними навантаженнями окремі автомати в щитовій. Щитова має окрему приховану нішу з місцем для роутера.
11. Освітлення LED потолочне і стінове. Прохідні виключателі у спальні. Вулечне освітлення вхідної зони та тераси.
12. Проведені всі сантехнічні і каналізаційні точки, підключені фільтри для води.
13. Опалення електричне Керамічне.
Додаткові опції: меблі в кухню,і спальню,продовжена тераса, ганок при вході, обігрівачі.
Побудуємо для Вас такий будинок за 25000$ або 30’000 за готове рішення.
Також можемо розглянути варіанти інших комплектацій під Ваш бюджет починаючи від 7000$ за домокомплект конструктор
Гарне рішення для Вашого дачного відпочинку, або здачі в оренду. Телефонуйте чи приїжджайте на перегляд, контакти в оголошені.
більше фото в нашому instagram black_block_house
Також можете обрати Інший проект з нашого каталогу, або пропрацювати власний з нашим дизайнером.
Виготовляємо модульні будинки за 90днів на своєму виробництві.
ID: 870301010
Связаться с продавцом
xxx xxx xxx
Опубликовано 08 марта 2026 г.
Якісний модульний будинок 40м2 готовий до відвантаження/ Виробники
24 999 $
Договорная
Местоположение
Киев, Голосеевский
Киевская область