Бизнес
Вид объекта: Новостройка
Без комиссии
Этаж: 7
Этажность: 9
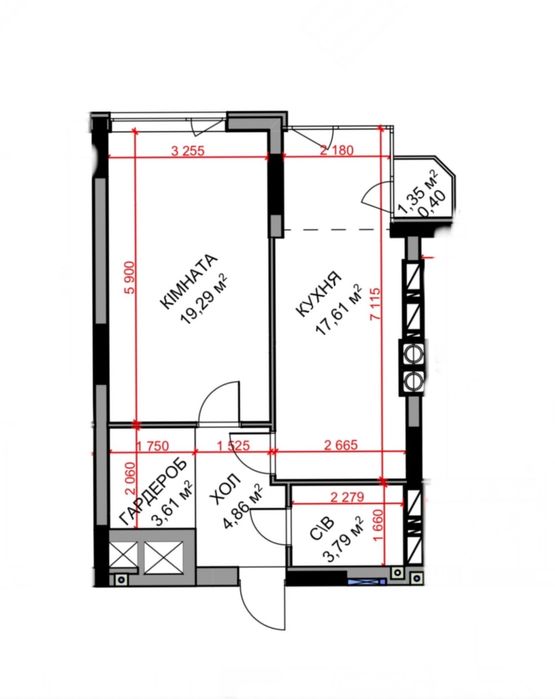
Общая площадь: 50 м²
Площадь кухни: 17 м²
Класс жилья: Бизнес
Количество комнат: 1 комната
Отопление: Индивидуальное газовое
Меблирование: Нет
Бытовая техника: Без бытовой техники
Мультимедиа: Без мультимедиа
Комфорт: Балкон, лоджия, Панорамные окна, Пожарная сигнализация, Охраняемая территория, Парковочное место, Гостевой паркинг, Лифт
Коммуникации: Газ, Центральный водопровод, Электричество, Центральная канализация, Вывоз отходов, Асфальтированная дорога
Инфраструктура (до 500 метров): Школа, Остановка транспорта, Магазин, киоск, Парк, зелёная зона, Ресторан, кафе, Отделение почты
Ландшафт (до 1 км.): Парк, Лес
Описание
Гостомель
Велика Євро 2кк
Площа 50м2
Поверх 7/8
Ціна 55400$
Ціна Вказана під ключ з Оформленням
Індивідуальне газове опалення
Вид на сосни
Держ Програми - Так
Связаться с продавцом
xxx xxx xxx
Євродвушка 50м2 в зданому будинку,Держпрограми-так,ціна з оформленням!
55 400 $
Договорная
Местоположение
Гостомель
Киевская область
