Бизнес
Без комиссии
Расстояние до ближайшего города: В городе
Расположение: Отдельное здание
Этажность: 2
Общая площадь: 432 м²
Санузел: Да
Отопление: Централизованное
Комфорт: Терраса, Панорамные окна, Сигнализация, Пожарная сигнализация, Парковочное место, Гостевой паркинг, Хоз. помещение, кладовка
Коммуникации: Центральный водопровод, Электричество, Центральная канализация, Вывоз отходов, Асфальтированная дорога
Инфраструктура (до 500 метров): Офисы, бизнес центр, Транспортная развязка, Метро, Рынок, Супермаркет, ТРЦ, Стоянка, парковка, гараж, Жилой массив, Парк, зелёная зона, Аптека, Шоссе, трасса, Отделение банка, банкомат, Отделение почты
Описание
Собственник, без комиссии.
До м. Нивки 5 мин. пешком!
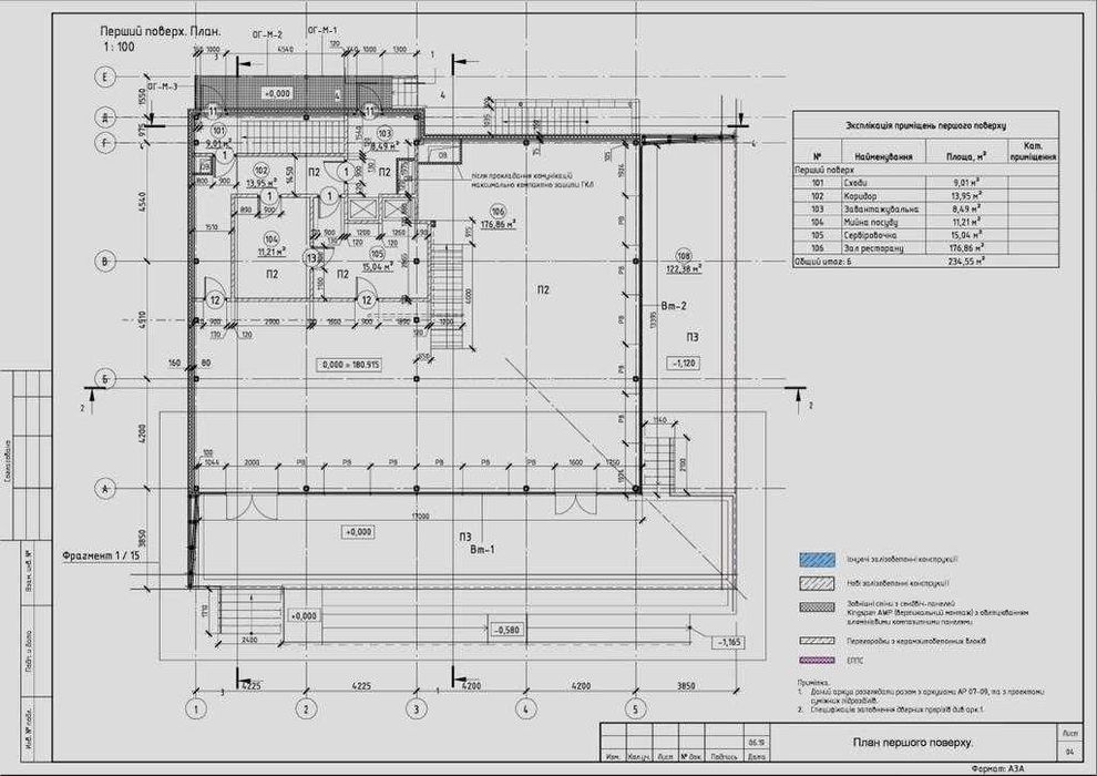
Сдам отдельно-стоящее двухэтажное здание 432 м2., Берестейский проспект,67 (бывший проспект Победы,67).
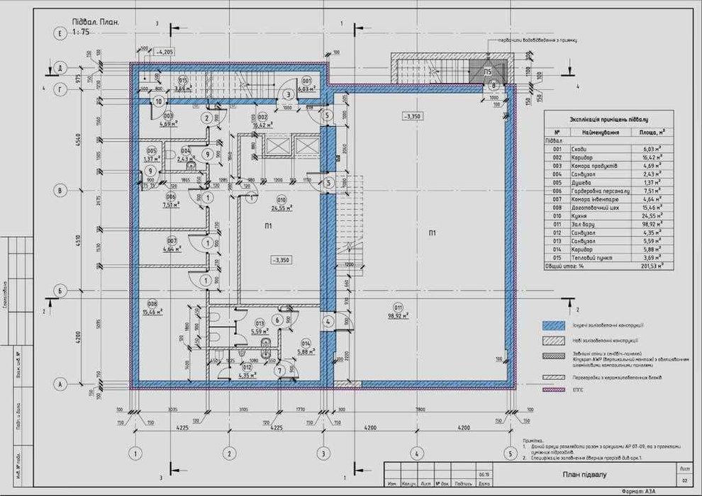
Первый этаж 232 м2. и цокольный этаж 200 м2.
Два центральных входа на первом этаже.
Три входа в цокольный этаж: один с улицы и два с первого этажа.
Залы, кухонная зона, складские помещения, комната персонала, кладовка.
С/узлы на каждом этаже.
Высота потолков на первом этаже 3,6 м. Высота потолков в цокольном этаже 3,2 м.
В цокольном этаже есть два маленьких окошка.
Есть летняя терраса 120 м2.
Паркинг.
Централизованное отопление и водоснабжение.
Заведенная мощность электричества 120 кВт.
Состояние помещения: под чистовую отделку.
Даются ремонтные каникулы.
Рядом БЦ "Нивки-Сити", новый жилой квартал, магазины, ULTRAMARKET, McDonald’s, Lviv Croissants, спорт-клуб "ОЛІМП", зеленая зона и др.
Арендная ставка 9$ за м2. + НДС + эксплуатация + коммунальные.
Видео скину по запросу.
До м. Нивки 5 мин. пешком!
Сдам отдельно-стоящее двухэтажное здание 432 м2., Берестейский проспект,67 (бывший проспект Победы,67).
Первый этаж 232 м2. и цокольный этаж 200 м2.
Два центральных входа на первом этаже.
Три входа в цокольный этаж: один с улицы и два с первого этажа.
Залы, кухонная зона, складские помещения, комната персонала, кладовка.
С/узлы на каждом этаже.
Высота потолков на первом этаже 3,6 м. Высота потолков в цокольном этаже 3,2 м.
В цокольном этаже есть два маленьких окошка.
Есть летняя терраса 120 м2.
Паркинг.
Централизованное отопление и водоснабжение.
Заведенная мощность электричества 120 кВт.
Состояние помещения: под чистовую отделку.
Даются ремонтные каникулы.
Рядом БЦ "Нивки-Сити", новый жилой квартал, магазины, ULTRAMARKET, McDonald’s, Lviv Croissants, спорт-клуб "ОЛІМП", зеленая зона и др.
Арендная ставка 9$ за м2. + НДС + эксплуатация + коммунальные.
Видео скину по запросу.
ID: 800050076
Связаться с продавцом
xxx xxx xxx
