Бизнес
Вид объекта: Новостройка
Без комиссии
Этаж: 3
Этажность: 4
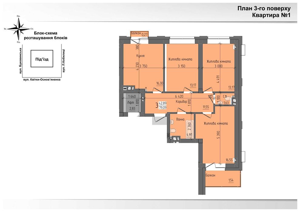
Общая площадь: 79 м²
Тип сделки: От застройщика, Рассрочка от застройщика
Площадь кухни: 17 м²
Тип стен: Кирпичный
Класс жилья: Элит
Количество комнат: 3 комнаты
Планировка: Раздельная
Санузел: Раздельный
Отопление: Индивидуальное газовое
Ремонт: Под чистовую отделку
Меблирование: Нет
Бытовая техника: Без бытовой техники
Мультимедиа: Скоростной интернет
Комфорт: Видеонаблюдение, Балкон, лоджия, Лифт, Подземный паркинг
Коммуникации: Центральная канализация, Электричество, Вывоз отходов, Газ, Центральный водопровод
Инфраструктура (до 500 метров): Центр города, Аптека, Больница, поликлиника, Детский сад, Рынок, Детская площадка, Ресторан, кафе, Школа, Магазин, киоск
Описание
Ця вулиця історично характеризується елітними віллами, в яких мешкала інтелігенція, та є однією з унікальних локацій міста з власною атмосферою.
Наявність житла в даному районі є надійним капіталовкладенням на роки, яке точно не втратить свою цінність, та дозволить мешканцям насолоджуватися всіма перевагами життя в центрі міста, у віддаленні від шумних доріг.
Фасад буде втіленням розкоші та елегантності, оформлений з використанням сучасних матеріалів, що нададуть будинку стильний зовнішній вигляд.
Наш будинок є кращим в даному сегменті, серед переваг варто виділити:
- всього 4 поверхи та 24 квартири
- зовнішні стіни товщиною 55 см
- міжкімнатні перегородки 25 см
- висота стелі 3,15 м
- ліфт
- підземний паркінг
- відеоспостереження
- двір закритого типу
- дитячий майданчик
- дизайнерське облаштування території, під'їздів та терас
- мінімальна кількість сусідів
Крім того, квартири будуть мати виходи на тераси або балкони, де мешканці зможуть насолоджуватися панорамним видом на місто та свіжим повітрям.
Життя в будинку в історичній частині міста - це ідеальний вибір для вимогливих клієнтів, які цінують якість та затишок.
Будівництво активно триває! Можливе розтермінування.
Kromax Bud - будуємо комфорт!
Связаться с продавцом
xxx xxx xxx
ТРИКІМНАТНА квартира в елітній НОВОБУДОВІ (р-н Центр)
102 700 $
Местоположение
Черновцы
Черновицкая область
