Бизнес
Готов сотрудничать с риэлторами
Расстояние до ближайшего города: до 20 км.
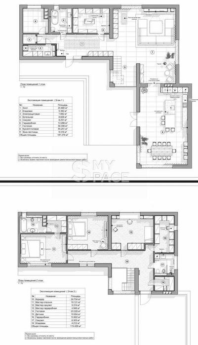
Этажность: 2
Общая площадь: 298 м²
Количество комнат: 5
Площадь участка: 24 соток
Тип дома: Дом
Год постройки / сдачи: После 2015
Тип стен: Газоблок
Санузел: 2 и более
Отопление: Другое
Ремонт: После строителей
Меблирование: Нет
Коммуникации: Асфальтированная дорога, Электричество, Вывоз отходов, Канализация септик
Инфраструктура (до 500 метров): Детский сад, Рынок, Парк, зелёная зона, Детская площадка, Бювет, Остановка транспорта
Ландшафт (до 1 км.): Лес
Описание
Продається будинок у Хотянівці.
Власний вихід у лісництво.
Заповідна зона "Залісся".
Стіни – газоблок 400 мм, перекриття – монолітні плити 20 см на другому поверсі та під дахом.
Фундамент заливався під 5-поверхову будівлю, моноліт. 200 метрів паркану, свердловина. Електрика (3 фази, нічний тариф 12 кВт, можливе збільшення) та інтернет заведені під землею через фундамент. Wi-Fi.
Цоколь 60 кв.м: професійна гідроізоляція, утеплювач, штукатурка.
Фасад 700 кв.м: утеплювач 100 мм (вата), штукатурка, зверху 100% силіконова фарба Caparol (Німеччина). Можна мити за допомогою керхера.
Чотири септики, один окремий під слив, укладено на 3 метри в глибину землі за ГОСТом. Укладено 70 метрів труб.
Два септики з футеровкою поліпропілену 5 мм - це найкращий і довговічний матеріал. Хто знає, той зрозуміє.
12 камер відеоспостереження з датчиками та прожекторами, серверна, кабелі – 10 тис. $. Одна з них — із кутом огляду 360 градусів, із фіксацією осіб та автомобілів, керується з телефону. Усі камери оснащені датчиками руху. У разі відсутності електроенергії камери та інтернет працюють від акумуляторів.
Вікна - 105 кв.м, чорні з легким дзеркальним тонуванням, вхідні двері - алюмінієвий профіль.
Дах скатний, прихований, бітумний черепиця, утеплювач - вата, парапети та підвіконня - цинк.
Дизайн-проект, проект опалення та водопостачання – 12 тис. $.
Терасу на другому поверсі 56 кв.м робив на десятиліття різними шарами гідроізоляції. Гарантія на гідроізоляцію та ПВХ мембрану від фірми підрядника Mastergroup. Коштувала 15 тис. $ , є всі документи та договори.
Є фотографії всіх етапів будівництва.
Власний вихід у лісництво.
Заповідна зона "Залісся".
Стіни – газоблок 400 мм, перекриття – монолітні плити 20 см на другому поверсі та під дахом.
Фундамент заливався під 5-поверхову будівлю, моноліт. 200 метрів паркану, свердловина. Електрика (3 фази, нічний тариф 12 кВт, можливе збільшення) та інтернет заведені під землею через фундамент. Wi-Fi.
Цоколь 60 кв.м: професійна гідроізоляція, утеплювач, штукатурка.
Фасад 700 кв.м: утеплювач 100 мм (вата), штукатурка, зверху 100% силіконова фарба Caparol (Німеччина). Можна мити за допомогою керхера.
Чотири септики, один окремий під слив, укладено на 3 метри в глибину землі за ГОСТом. Укладено 70 метрів труб.
Два септики з футеровкою поліпропілену 5 мм - це найкращий і довговічний матеріал. Хто знає, той зрозуміє.
12 камер відеоспостереження з датчиками та прожекторами, серверна, кабелі – 10 тис. $. Одна з них — із кутом огляду 360 градусів, із фіксацією осіб та автомобілів, керується з телефону. Усі камери оснащені датчиками руху. У разі відсутності електроенергії камери та інтернет працюють від акумуляторів.
Вікна - 105 кв.м, чорні з легким дзеркальним тонуванням, вхідні двері - алюмінієвий профіль.
Дах скатний, прихований, бітумний черепиця, утеплювач - вата, парапети та підвіконня - цинк.
Дизайн-проект, проект опалення та водопостачання – 12 тис. $.
Терасу на другому поверсі 56 кв.м робив на десятиліття різними шарами гідроізоляції. Гарантія на гідроізоляцію та ПВХ мембрану від фірми підрядника Mastergroup. Коштувала 15 тис. $ , є всі документи та договори.
Є фотографії всіх етапів будівництва.
ID: 909047234
Связаться с продавцом
xxx xxx xxx
Опубликовано 11 февраля 2026 г.
Терміново!Продається будинок у Хотянівці.Власний вихід у ліс, Осещина
190 000 $
Местоположение
Хотяновка
Киевская область
