Бизнес
Продажа от застройщика
Без комиссии
Расстояние до ближайшего города: до 5 км.
Этажность: 1
Общая площадь: 62 м²
Количество комнат: 2
Площадь участка: 1.50 соток
Тип дома: Таунхаус
Год постройки / сдачи: После 2015
Тип стен: Кирпичный
Внешнее утепление стен: Пенопласт
Тип кровли: Металлочерепица
Санузел: Смежный
Отопление: Индивидуальное газовое
Ремонт: После строителей
Коммуникации: Центральная канализация, Электричество, Газ, Центральный водопровод
Описание
Продається Таунхаус, побудований із цегли, центральні комунікації
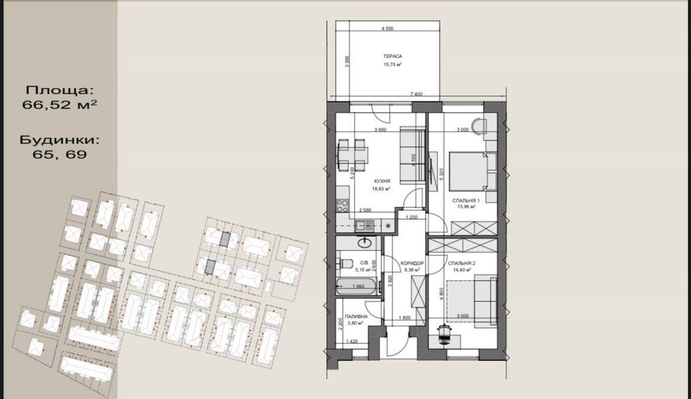
Площа : 61,8 м²
Ділянка: 1,5 сотки
В таунхаусі 2 окремих кімнати
Простора кухня-студія з виходом на терасу
Комунікації:
Вода та каналізація — централізовані
Електропостачання — 7 кВт
Опалення — індивідуальне газове (котел не входить у вартість)
Технічні характеристики:
Зовнішні стіни — повнотіла цегла, товщина 380 мм
Перегородки — цегла 120 мм
Штукатурка — цементно-вапняна
Підлога — лазерна стяжка
Стеля — дерев’яні балки, підшиті дошкою з паробар’єром
Вікна — 6-камерний профіль із двокамерним склопакетом
Фасад:
Утеплення — пінопласт 100 мм
Обробка — фактурна штукатурка типу «Баранчик»
Фарбування — згідно з дизайн-проєктом
Без комісії!
Площа : 61,8 м²
Ділянка: 1,5 сотки
В таунхаусі 2 окремих кімнати
Простора кухня-студія з виходом на терасу
Комунікації:
Вода та каналізація — централізовані
Електропостачання — 7 кВт
Опалення — індивідуальне газове (котел не входить у вартість)
Технічні характеристики:
Зовнішні стіни — повнотіла цегла, товщина 380 мм
Перегородки — цегла 120 мм
Штукатурка — цементно-вапняна
Підлога — лазерна стяжка
Стеля — дерев’яні балки, підшиті дошкою з паробар’єром
Вікна — 6-камерний профіль із двокамерним склопакетом
Фасад:
Утеплення — пінопласт 100 мм
Обробка — фактурна штукатурка типу «Баранчик»
Фарбування — згідно з дизайн-проєктом
Без комісії!
ID: 892418226
Связаться с продавцом
xxx xxx xxx
Опубликовано 30 октября 2025 г.
Таунхаус в передмісті Києва
46 000 $
Местоположение
Ирпень
Киевская область