Бизнес
Продажа от застройщика
Без комиссии
Готов сотрудничать с риэлторами
Расстояние до ближайшего города: В городе
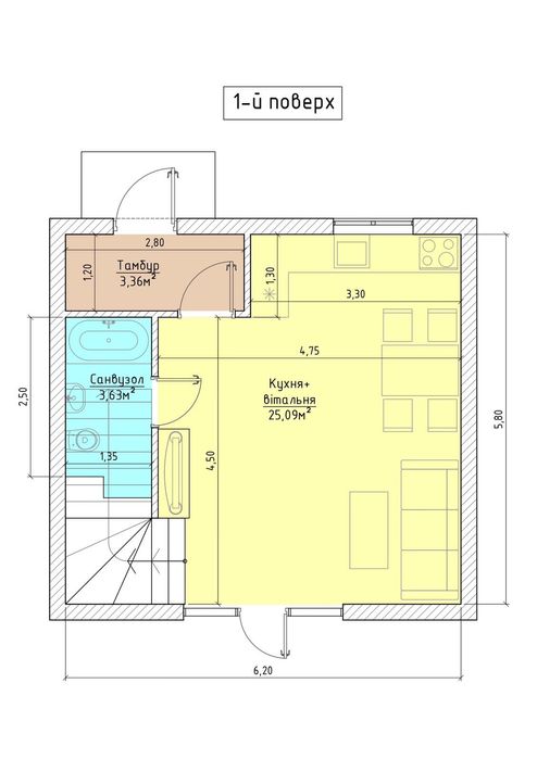
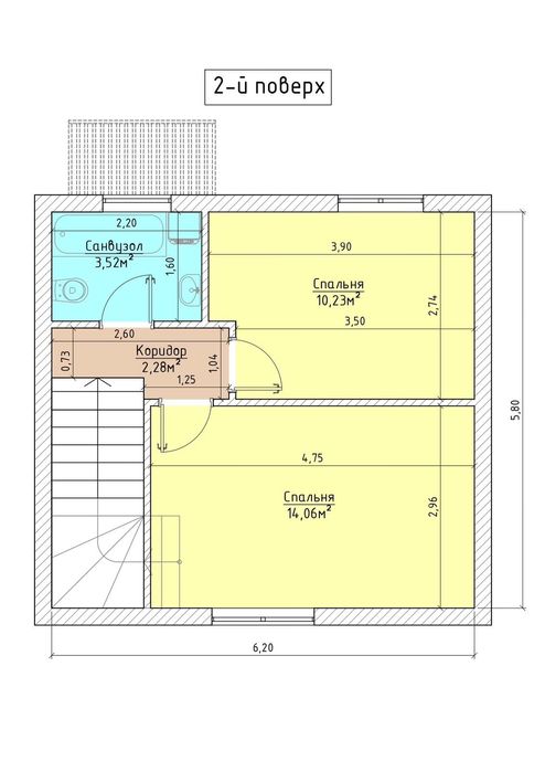
Этажность: 2
Общая площадь: 80 м²
Количество комнат: 3
Площадь участка: 1.50 соток
Тип дома: Таунхаус
Год постройки / сдачи: На этапе строительства
Тип стен: Газоблок
Внешнее утепление стен: Пенопласт
Тип кровли: Металлочерепица
Санузел: Смежный
Отопление: Индивидуальное электро
Ремонт: После строителей
Описание
Площа: 75м2
Поверховість: 2
Кількість кімнат: 2(можна перепланувати на 3)
С/в: 2
Ділянка: 1сот внутрішні та 1,5сот крайні.
У кожного таунхауса розрахована парковка на 2 авто, просторий задній дворик, на якому можна розміщувати дитячу зону, зону барбекю, терасу для відпочинку Технологія будівництва
Стіни: газоблок
Фундамент: лінійно-стрічковий
Перекриття: залізобетонні плити
Висота стелі: 3м
Дах: односхилий, мін.вата 200мм, бітумна черепиця.
Сходи: моноліт
Утеплення фасаду: пінопласт 100мм, декоративна штукатурка
Наповнення: чорнова стяжка підлоги, міжкімнатні перегородки за проектом забудовника, вікна Rehau металопластикові 2-х камерні, вхідні металеві двері з МДФ накладками, введення комунікацій в будинок.
Комунікації
Електрика: введення в будинок 8 кВт
Вода: свердловина на кожен таун.
Каналізація: індивідуальний септик з переливом
Відмінна альтернатива 2-х кімнатній квартирі зі своїм паркомісцем та великим подвір’ям для лазні, барбекю тощо!
Поверховість: 2
Кількість кімнат: 2(можна перепланувати на 3)
С/в: 2
Ділянка: 1сот внутрішні та 1,5сот крайні.
У кожного таунхауса розрахована парковка на 2 авто, просторий задній дворик, на якому можна розміщувати дитячу зону, зону барбекю, терасу для відпочинку Технологія будівництва
Стіни: газоблок
Фундамент: лінійно-стрічковий
Перекриття: залізобетонні плити
Висота стелі: 3м
Дах: односхилий, мін.вата 200мм, бітумна черепиця.
Сходи: моноліт
Утеплення фасаду: пінопласт 100мм, декоративна штукатурка
Наповнення: чорнова стяжка підлоги, міжкімнатні перегородки за проектом забудовника, вікна Rehau металопластикові 2-х камерні, вхідні металеві двері з МДФ накладками, введення комунікацій в будинок.
Комунікації
Електрика: введення в будинок 8 кВт
Вода: свердловина на кожен таун.
Каналізація: індивідуальний септик з переливом
Відмінна альтернатива 2-х кімнатній квартирі зі своїм паркомісцем та великим подвір’ям для лазні, барбекю тощо!
ID: 825863968
Связаться с продавцом
xxx xxx xxx
Опубликовано 16 марта 2026 г.
Таунхаус Ірпінь велика земельна ділянка
47 000 $
Местоположение
Ирпень
Киевская область
