Бизнес
Вид объекта: Новостройка
Без комиссии
Тип дома: Жилой фонд от 2021 р.
Название ЖК: ЖК Соборний
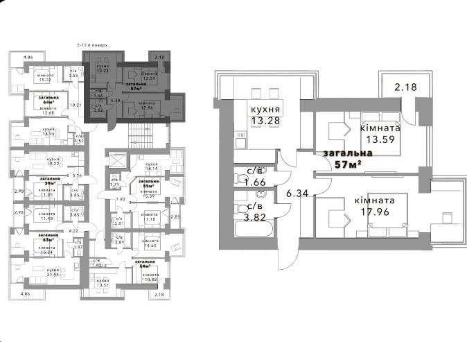
Этаж: 5
Год ввода в эксплуатацию: 2 026
Этажность: 10
Общая площадь: 58.18 м²
Площадь кухни: 13.28 м²
Тип стен: Кирпичный
Класс жилья: Комфорт
Количество комнат: 2 комнаты
Планировка: Раздельная
Санузел: Раздельный
Отопление: Индивидуальное газовое
Ремонт: После строителей
Меблирование: Нет
Бытовая техника: Без бытовой техники
Мультимедиа: Без мультимедиа
Комфорт: Балкон, лоджия, Лифт, Панорамные окна
Коммуникации: Асфальтированная дорога, Центральная канализация, Электричество, Вывоз отходов, Газ, Центральный водопровод
Инфраструктура (до 500 метров): Отделение банка, банкомат, Кинотеатр, театр, Центр города, Аптека, Больница, поликлиника, Детский сад, Рынок, Парк, зелёная зона, Детская площадка, Отделение почты, Ресторан, кафе, Школа, Магазин, киоск, Супермаркет, ТРЦ, Остановка транспорта
Ландшафт (до 1 км.): Лес, Озеро, Парк, Река
Описание
Сучасний комплекс у зеленій частині Гостомеля, поруч із парком «Щасливий».Швидкий виїзд на Київ. Тут по-справжньому легко дихається. Вранці — прогулянка серед дерев, увечері — тиша без міської метушні. І водночас зручний виїзд у напрямку Ірпеня та Києва.
Будинки цегляні, теплі, з продуманими плануваннями та правильними пропорціями кімнат. Ніяких «мертвих» метрів — кожен квадрат працює на комфорт.
2-кімнатна квартира на 5 поверсі. Це той формат, який зараз шукають найчастіше.
Площа 58,18 м2 оптимальний баланс між простором і розумним бюджетом.
Світла кухня, де вистачить місця і для родинних вечерь, і для гостей. Окрема спальня для відпочинку.Друга кімната під дитячу, кабінет або ще одну спальню.
П’ятий поверх — комфортна висота: достатньо світла, гарний огляд, менше пилу й шуму.
Такі планування довго не «висять» у продажу. Вони ліквідні як для життя, так і для інвестиції.
Ціна 52'400$
Без Комісії для покупця
Гнучкі умови ,можливе розтермінування до 2 років з першим внеском 35%
Це варіант для тих, хто хоче переїхати в нову квартиру без переплат, але з відчуттям правильного вибору.
Якщо шукаєте 2-кімнатну квартиру, де площа використана розумно, поверх комфортний, а локація додає цінності — ця пропозиція точно варта уваги.
Связаться с продавцом
xxx xxx xxx

