Бизнес
Без комиссии
Готов сотрудничать с риэлторами
Расстояние до ближайшего города: до 30 км.
Этажность: 1
Общая площадь: 168 м²
Количество комнат: 4
Площадь участка: 10 соток
Тип дома: Дом
Год постройки / сдачи: После 2015
Тип стен: Газоблок
Внешнее утепление стен: Минеральная вата
Тип кровли: Поликарбонатные листы
Санузел: Раздельный
Отопление: Другое
Ремонт: Под чистовую отделку
Меблирование: Нет
Описание
Продається житловий будинок(все як на фото) у мальовничому передмісті Києва .
Вишгородський район, с. Пірнове (за Вищою Дубечнею)
Google Maps . геопозиція
ttps://maps.app.goo.gl/UTumdRxmP4HKqyYC6
Відстань до Києва — 40 км до Оболоні, ~40 хв на авто
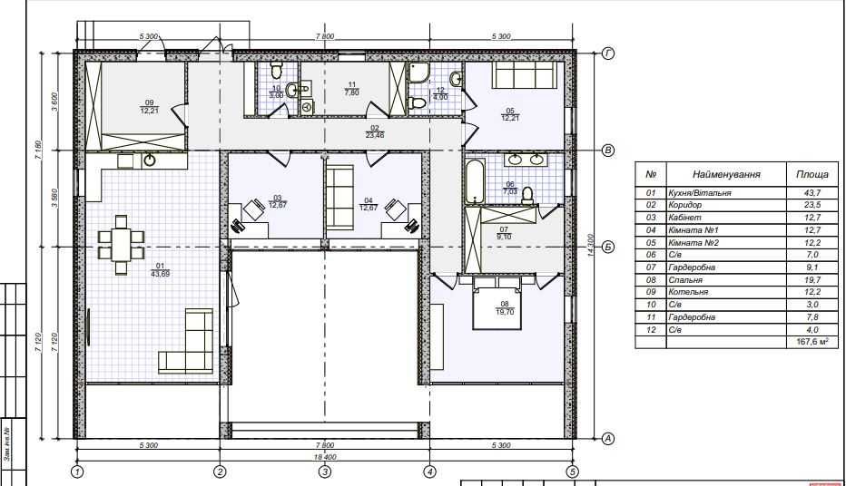
Площа будинку: 168 м²
Ділянка: 10 соток
-Планування:
Простора кухня-вітальня 43,7 м² з виходом на терасу 40 м²,Три окремі спальні (19,7 м², 12,7 м², 12,2 м²).Кабінет — 12,7 м² (або дитяча).Два санвузли, гардеробні, технічне приміщення (котельня).
- Технічні характеристики:
Стіни: газоблок 300 мм + утеплення мін. ватою
(фасад ще не завершений, є прорахунки)
Фундамент: стрічковий із плитою, бетон М350
Покрівля: утеплена мінватою 250 мм (замість 150 мм по проєкту)
Інженерія:
Електрика: не заведена.
Швидке підключення — ~500$/кВт
Через обленерго — дешевше, але повільніше
Вода: свердловина + насос є.
Каналізація: септик вже встановлені
430 м до старого русла Десни,
2,3 км до нового русла через острів
Найближчий пляж — Пірновський
Переваги:
Якісний фундамент і дренаж — підтоплення виключені
Повна проектна документація
Комфортна локація серед соснових лісів
Підійде для постійного життя або дачі
Спокійне місце, але поруч Київ!
Пишіть, якщо хочеш отримати деталі, креслення, прорахунок фасаду чи більше фото.
Код 506811
Вишгородський район, с. Пірнове (за Вищою Дубечнею)
Google Maps . геопозиція
ttps://maps.app.goo.gl/UTumdRxmP4HKqyYC6
Відстань до Києва — 40 км до Оболоні, ~40 хв на авто
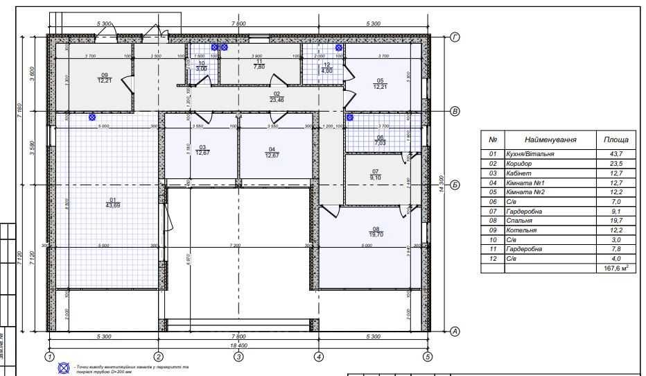
Площа будинку: 168 м²
Ділянка: 10 соток
-Планування:
Простора кухня-вітальня 43,7 м² з виходом на терасу 40 м²,Три окремі спальні (19,7 м², 12,7 м², 12,2 м²).Кабінет — 12,7 м² (або дитяча).Два санвузли, гардеробні, технічне приміщення (котельня).
- Технічні характеристики:
Стіни: газоблок 300 мм + утеплення мін. ватою
(фасад ще не завершений, є прорахунки)
Фундамент: стрічковий із плитою, бетон М350
Покрівля: утеплена мінватою 250 мм (замість 150 мм по проєкту)
Інженерія:
Електрика: не заведена.
Швидке підключення — ~500$/кВт
Через обленерго — дешевше, але повільніше
Вода: свердловина + насос є.
Каналізація: септик вже встановлені
430 м до старого русла Десни,
2,3 км до нового русла через острів
Найближчий пляж — Пірновський
Переваги:
Якісний фундамент і дренаж — підтоплення виключені
Повна проектна документація
Комфортна локація серед соснових лісів
Підійде для постійного життя або дачі
Спокійне місце, але поруч Київ!
Пишіть, якщо хочеш отримати деталі, креслення, прорахунок фасаду чи більше фото.
Код 506811
ID: 887795333
Связаться с продавцом
xxx xxx xxx
Опубликовано 30 сентября 2025 г.
Сучасний недобудований будинок біля Десни Крутий проєкт Вища Дубечня
60 000 $
Местоположение
Высшая Дубечня
Киевская область