Бизнес
Без комиссии
Расстояние до ближайшего города: до 5 км.
Этажность: 1
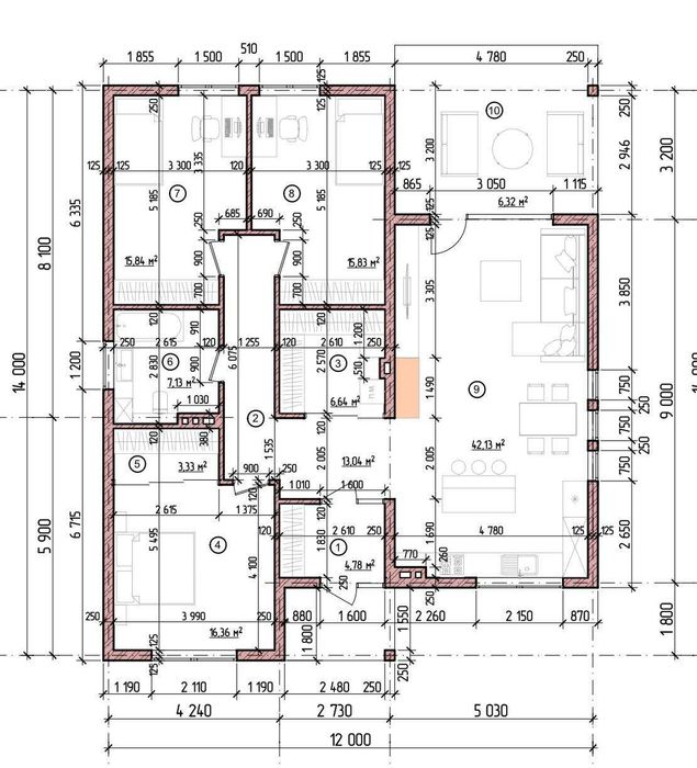
Общая площадь: 120 м²
Количество комнат: 3
Площадь участка: 7 соток
Тип дома: Дом
Тип стен: Кирпичный
Внешнее утепление стен: Пенопласт
Тип кровли: Металлочерепица
Санузел: Смежный
Отопление: Индивидуальное газовое
Ремонт: Под чистовую отделку
Меблирование: Нет
Комфорт: Подогрев пола, Терраса
Коммуникации: Асфальтированная дорога, Электричество, Газ, Канализация септик, Скважина
Описание
Сучасна новобудова в Обарові — заходь і облаштовуй під себе
Обл. Рівне, с. Обарів
110 000 $
Площа: 130 м² | Ділянка: 7 соток
Одноповерховий просторий будинок із якісною комплектацією та сучасним плануванням. Тут уже зроблено все основне — залишилось додати лише вашу атмосферу.
Переваги будинку:
• 3 окремі кімнати + простора кухня-вітальня
• Після забудовника (можна облаштувати на свій смак)
• Автономне газове опалення + тепла підлога по всьому будинку
• Італійський котел Baxi
• Повна стяжка, штукатурка, електрика розведена, мокрі точки готові
• Асфальтований під’їзд, приватизована ділянка
Інфраструктура та додаткові зручності:
• Скважина, септик, газ, світло
• Паркан уже встановлений
• Двір забрукований
Це не просто будинок — це простір, де можна одразу починати новий етап життя.
Телефон: 09*********18, Юлія
АН «Рівненська Оселя»
Обл. Рівне, с. Обарів
110 000 $
Площа: 130 м² | Ділянка: 7 соток
Одноповерховий просторий будинок із якісною комплектацією та сучасним плануванням. Тут уже зроблено все основне — залишилось додати лише вашу атмосферу.
Переваги будинку:
• 3 окремі кімнати + простора кухня-вітальня
• Після забудовника (можна облаштувати на свій смак)
• Автономне газове опалення + тепла підлога по всьому будинку
• Італійський котел Baxi
• Повна стяжка, штукатурка, електрика розведена, мокрі точки готові
• Асфальтований під’їзд, приватизована ділянка
Інфраструктура та додаткові зручності:
• Скважина, септик, газ, світло
• Паркан уже встановлений
• Двір забрукований
Це не просто будинок — це простір, де можна одразу починати новий етап життя.
Телефон: 09*********18, Юлія
АН «Рівненська Оселя»
ID: 908376181
Связаться с продавцом
xxx xxx xxx

