Бизнес
Вид объекта: Новостройка
Без комиссии
Готов сотрудничать с риэлторами
Название ЖК: ЖК Star City
Этаж: 16
Этажность: 25
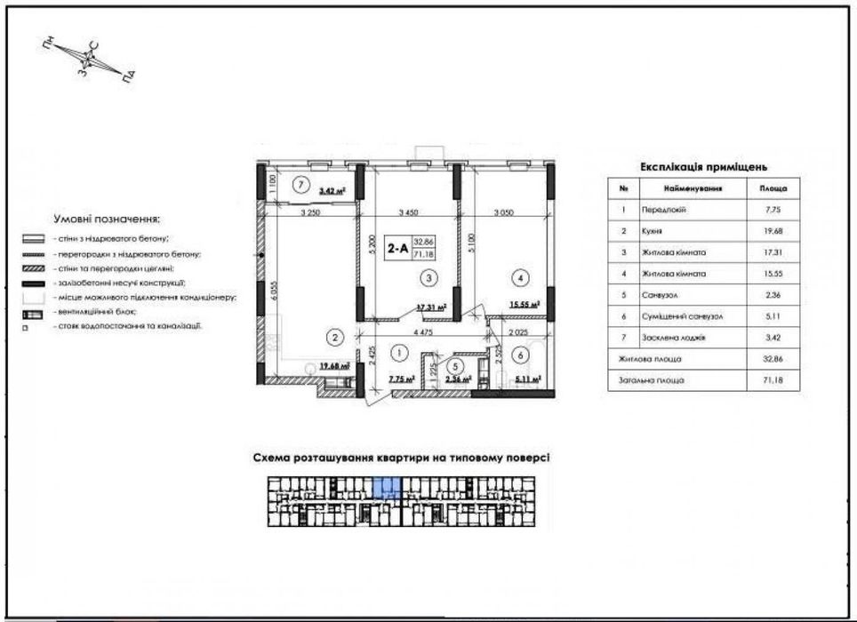
Общая площадь: 71.18 м²
Площадь кухни: 19.70 м²
Тип стен: Монолитный
Класс жилья: Комфорт
Количество комнат: 2 комнаты
Отопление: Централизованное
Ремонт: После строителей
Описание
Доброго дня, Шановний Інвестор/Майбутній Власник ЖК "Star City"
-
-
Почнемо з головного - це звісно ЦІНА. Від 32500грн/кв.м, При 100% оплаті
індивідуальні умови. Але точно буде краща ціна серед ЖК класу комфорт!
ОБГРУНТУВАННЯ ціни у кінці об’яви.
- Розтермінування на 60 місяців ! Перший внесок від 10%
- Хар-ки квартири: Кімнат=2 Поверх=16 / Поверхів=25 Загальна=71.2квм Житлова=33квм Кухня=19.7квм.
- Умови придбання: Нотаріальний договір. Прямий договір із Забудовником чи Перепоступка.
- Очікуваний термін введення в експлуатацію 3-4 квартал 2025.
-
У будівництві ЖК Star City задіяний такий гігант будівельної галузі, як
Bud Capital. А це вже гарантія, що даний ЖК добудується.
-
Короткий опис ЖК "Стар Сіті"
"StarCity" -
це сучасний ЖК "комфорт-класу" з власнийм закритим "простором життя"
площею майже 8Га. ЖК розташований за буд. адресою: Каунаська 27 у
Дніпровському р-ні м.Києва. Поруч з ЖК "Комфорт таун", який вже
сформував, всю необхідну інфраструктуру, а саме: садочки, ліцеї,
спортивні зали, дитячі майданчики, розвиваючі курси, супермаркет
"Novus", ресторани тощо.
-
Пропозиція дійсна поки Інвестори
бажають продати певну кількість об'єктів. Не прогавте, СКОРИСТАЙТЕСЬ
цією АКЦІЄЮ та ПРИДБАЙТЕ можливо найкращу інвестицію у
Нерухомість/власне Майбутнє!
Связаться с продавцом
xxx xxx xxx

